Pronájem bytu 3+kk, Praha - Újezd, Pastevců, 68 m2

Pastevců, Újezd u Průhonic - Praha-Újezd


26 900 Kč /za měsíc
Získejte výhodnou HYPOTÉKU

(vratná jistota, náklady na bydlení 6.000,-Kč, poplatek za podnájem)


Regionální dodavatelé v Praze

Stěhovací služby

Výkup a prodej starého nábytku

Pojištění a finance

Popis

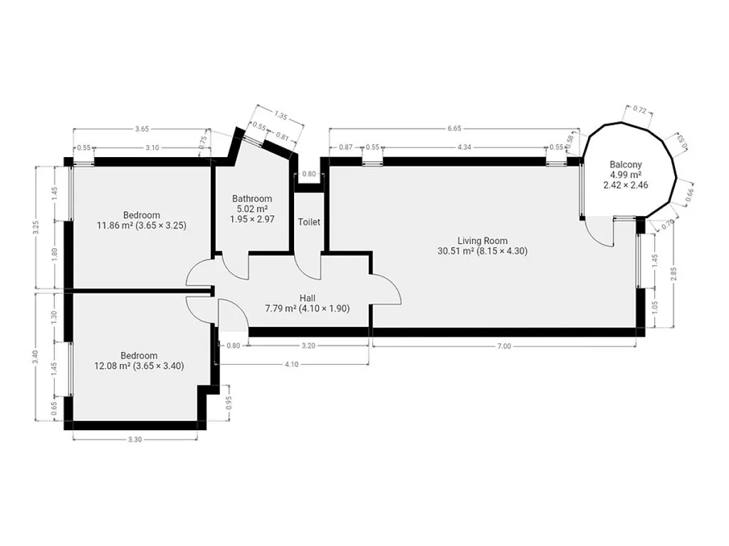
K dlouhodobému podnájmu Vám nabízíme krásný, kompletně zařízený byt o dispozici 3+kk, 68m2 se sklepem a balkonem.

Byt se nachází ve 3. NP cihlového domu ve velmi klidné lokalitě rezidenční čtvrti, nedaleko pražského Chodova.

Skládá se z centrální vstupní chodby, dětského pokoje, ložnice, samostatné koupelny s vanou i sprchovým koutem, pračkou a umyvadlem, toalety a obývacího pokoje společného s kuchyňským koutem a vstupem na prostorný balkon. Velkou výhodou bytu jsou jeho úložné prostory v celkem 2 vestavné šatní skříně a sklep.

Dále se byt nabízí kompletně zařízený tak, jak vidíte na fotografií.

Dům se nachází v klidné části Prahy - lokalita Újezd u Průhonic. V širším okolí najdeme kompletní občanskou vybavenost - základní i mateřské školy, spojení MHD na Chodov nebo Opatov díky autobusové zastávce vzdálené od domu cca 3 minuty chůze. Pro sportovní nebo turistické vyžití můžete využít nedaleký Milíčkovský les. Od domu je výborné napojení na dálnici D1.

Byt je k dispozici k okamžitému, dlouhodobému bydlení.

Zálohové platby již obsahují zálohy na elektřinu a pojištění domácnosti.

Cena
26 900 Kč /za měsíc
Poznámka k ceně
vratná jistota, náklady na bydlení 6.000,-Kč, poplatek za podnájem
Aktualizováno
14. 4. 2026
Adresa
Pastevců, Újezd u Průhonic - Praha-Újezd
ID
N7472
Stavba
Cihlová
Stav objektu
Velmi dobrý
Patro
3. z 3
Vybaveno
Ano
Typ objektu
Patrový
Vlastnictví
Osobní
Užitná plocha
68 m2
Podlahová plocha
68 m2
Třída energetické náročnosti
G - Mimořádně nehospodárná
Elektřina
230V
Topení
Ústřední dálkové
Doprava
Vlak, Dálnice, Silnice, MHD, Autobus
Balkon
Sklep
Výtah

Máte zájem o tuto nemovitost?

Tímto, v souladu s nařízením Evropského parlamentu a Rady (EU) 2016/679, v platném znění, prohlašuji, že mi je alespoň 16 let a uděluji tak svůj souhlas se zpracováním zadaných údajů (jméno, telefon, e-mail, ip adresa) společnosti B3 Technology, s.r.o., IČ: 07330600, se sídlem Novostavby 126/23, 435 11 Lom (správce dat), za účelem předání dotazu z tohoto formuláře Vámi vybranému inzerentovi a zpětného kontaktování mé osoby. Osobní údaje bude správce zpracovávat manuálně i automaticky přímo prostřednictvím svých zaměstnanců. Informace předané tímto formulářem budou uloženy v databázi správce maximálně po dobu 10 let. Odvolání souhlasu s uložením a zpracováním poskytnutých dat lze e-mailem na info@realitymat.cz. V případě podezření na neoprávněné použití Vámi poskytnutých údajů máte právo předat podnět k šetření Úřadu pro ochranu osobních údajů. Více informací
Chystáte se prodat nemovitost?
Pomůžeme Vám!
Theleadway banner

Kontakt

Miloslava Kačerová

Miloslava Kačerová

Přihlášení k odběru

Nenechte si ujít nejnovější nabídky pronájmu bytů 3+kk v Praze.

Podobné nabídky