Soccer reality

Prodej rodinného domu, Brandýs nad Labem-Stará Boleslav - Stará Boleslav, 117 m2

Brandýs nad Labem-Stará Boleslav


11 500 000 Kč /za nemovitost
HYPOTÉKA od 51 398 Kč /měs.

(provizi hradí prodávající)


Regionální dodavatelé v Brandýse nad Labem

Popis

Kolaudace 5/2026 !!
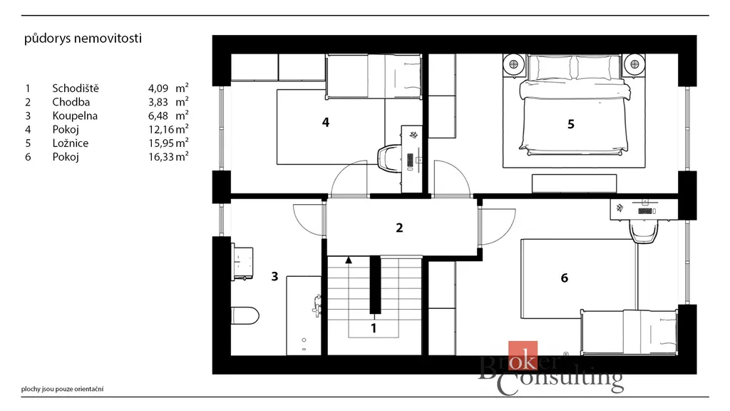
Nabízíme Vám jedinečnou příležitost k pořízení posledního trojdomu v nově vznikající rezidenční lokalitě v ulici Generála Lišky od renomovaného developera HF Stav. Tento dvoupodlažní dům s promyšlenou dispozicí, vlastní zahradou a terasou je ideální volbou pro rodiny, které hledají moderní, úsporné a přitom útulné bydlení v zeleni.

- Dispozice: 4+kk
- Užitná plocha: 117,9 m²
- Zahrada: vlastní soukromý pozemek s možností terasy a grilu
- Parkování: 2 parkovací místa před domem
- Energetická náročnost: B – velmi úsporná
- Dostupnost: skvělá dopravní obslužnost, občanská vybavenost v dosahu

Domy jsou navrženy v čistém a elegantním stylu s důrazem na praktičnost, přírodní světlo a dostatek úložného prostoru. V přízemí se nachází prostorný obývací pokoj s kuchyňským koutem a přímým vstupem na terasu a zahradu, v patře pak ložnice a dětské pokoje s výhledem do zeleně.

Zeleň, soukromí a pohoda – to jsou hlavní výhody tohoto projektu. Každý dům má vlastní oplocenou zahradu s možností relaxace, dětského hřiště nebo pergoly.

Developerská společnost HF Stav je známá důrazem na kvalitní materiály, pečlivé provedení a osobní přístup.

Neváhejte nás kontaktovat pro více informací, termín prohlídky nebo zaslání kompletní dokumentace.

Cena
11 500 000 Kč /za nemovitost Spočítat hypotéku
Poznámka k ceně
provizi hradí prodávající
Aktualizováno
19. 3. 2026
Adresa
Brandýs nad Labem-Stará Boleslav
ID
79624
Stavba
Cihlová
Stav objektu
Ve výstavbě
Patro
1. z 2
Typ objektu
Patrový
Druh objektu
Řadový
Vlastnictví
Osobní
Užitná plocha
117 m2
Plocha pozemku
170 m2
Třída energetické náročnosti
G - Mimořádně nehospodárná

Máte zájem o tuto nemovitost?

Broker Consulting, a.s.

Jiráskovo náměstí 2684/2, Plzeň, Východní Předměstí

Chystáte se prodat nemovitost?
Pomůžeme Vám!
Tímto, v souladu s nařízením Evropského parlamentu a Rady (EU) 2016/679, v platném znění, prohlašuji, že mi je alespoň 16 let a uděluji tak svůj souhlas se zpracováním zadaných údajů (jméno, telefon, e-mail, ip adresa) společnosti B3 Technology, s.r.o., IČ: 07330600, se sídlem Novostavby 126/23, 435 11 Lom (správce dat), za účelem předání dotazu z tohoto formuláře Vámi vybranému inzerentovi a zpětného kontaktování mé osoby. Osobní údaje bude správce zpracovávat manuálně i automaticky přímo prostřednictvím svých zaměstnanců. Informace předané tímto formulářem budou uloženy v databázi správce maximálně po dobu 10 let. Odvolání souhlasu s uložením a zpracováním poskytnutých dat lze e-mailem na info@realitymat.cz. V případě podezření na neoprávněné použití Vámi poskytnutých údajů máte právo předat podnět k šetření Úřadu pro ochranu osobních údajů. Více informací
Chystáte se prodat nemovitost?
Pomůžeme Vám!