Pronájem bytu 3+kk, Liberec, Tálínská, 75 m2

Tálínská, Liberec VIII-Dolní Hanychov


22 500 Kč /za měsíc
Získejte výhodnou HYPOTÉKU

(+ 1.500,- parkovací místo + 5.200,- služby(voda, topení a spol.el.) + 30.tis.kauce + el.na nájemníka + 20.tis.Rk)


Regionální dodavatelé v Liberci

Rekonstrukce

Úklidové služby

Popis

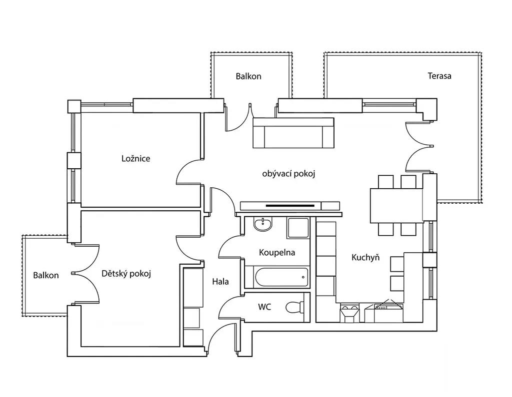
Pronájem dokonalého bytu 3+kk se třemi balkóny, parkovacím místem a výhledem na Ještěd.

Byt v novostavbě ve 4.NP je ideální dlouhodobé bydlení pro rodinu s dětmi.
Velmi pěkná dispozice moderního bytu, u kterého jsou předností balkóny z obývacího pokoje a dětského pokoje.

Dispozice bytu:

• Kuchyň s vestavnými spotřebiči (myčka, lednice, indukční varná deska s troubou)
• Obývací pokoj se vstupem na balkón
• Ložnice
• Dětský pokoj se vstupem na balkón
• Velká koupelna s vanou
• Samostatné WC
• Prostorná předsíň se skříní
• Velký sklep

Byt nabízí komfortní a moderní bydlení s přírodou a sportovním vyžitím na dosah. Okolí domu tvoří rodinné domky, což zajišťuje dostatek soukromí. V domě bydlí převážně mladí lidé a panuje zde příjemná sousedská atmosféra – všichni si vzájemně pomáhají.
V bezprostřední blízkosti se nachází tramvajová zastávka, škola a školky, sportovní areál Ještěd, restaurace Steakhouse, Domov. Tramvaj zajišťuje spojení až do Lidových sadů.
Byt je čistý, vymalovaný a bez zařízení.

Podmínky pronájmu:
• Nájemné: 22.500 Kč
• Parkovaci místo: 1.500 Kč s možností pronájmu i dalšího stání ( u domu jsou pouze placená místa)
• Zálohy na služby (voda, teplo, výtah,úklid společných prostor): 5.200 Kč
• Elektřina: na nájemníka
• Kauce: 30.000 Kč
• Provize RK: 20.000 Kč

Buďte rychlí, ať se stanete novými obyvateli této pohodlné a moderní nemovitosti.

Cena
22 500 Kč /za měsíc
Poznámka k ceně
+ 1.500,- parkovací místo + 5.200,- služby(voda, topení a spol.el.) + 30.tis.kauce + el.na nájemníka + 20.tis.Rk
Aktualizováno
19. 3. 2026
Adresa
Tálínská, Liberec VIII-Dolní Hanychov
ID
00297
Stavba
Cihlová
Stav objektu
Novostavba
Patro
4.
Vybaveno
Částečně
Lokalita objektu
Klidná část obce
Vlastnictví
Osobní
Užitná plocha
75 m2
Třída energetické náročnosti
G - Mimořádně nehospodárná
Elektřina
230V
Odpad
Veřejná kanalizace
Komunikace
Asfaltová
Telekomunikace
Kabelové rozvody
Doprava
Vlak, Dálnice, Silnice, MHD, Autobus
Voda
Vodovod
Topné těleso
Radiátory
Zdroj topení
Ústřední dálkové
Zdroj teplé vody
Centrální dálkový ohřev
Balkon
Sklep
Výtah
Bezbarierový přístup
Parkování

Máte zájem o tuto nemovitost?

Tímto, v souladu s nařízením Evropského parlamentu a Rady (EU) 2016/679, v platném znění, prohlašuji, že mi je alespoň 16 let a uděluji tak svůj souhlas se zpracováním zadaných údajů (jméno, telefon, e-mail, ip adresa) společnosti B3 Technology, s.r.o., IČ: 07330600, se sídlem Novostavby 126/23, 435 11 Lom (správce dat), za účelem předání dotazu z tohoto formuláře Vámi vybranému inzerentovi a zpětného kontaktování mé osoby. Osobní údaje bude správce zpracovávat manuálně i automaticky přímo prostřednictvím svých zaměstnanců. Informace předané tímto formulářem budou uloženy v databázi správce maximálně po dobu 10 let. Odvolání souhlasu s uložením a zpracováním poskytnutých dat lze e-mailem na info@realitymat.cz. V případě podezření na neoprávněné použití Vámi poskytnutých údajů máte právo předat podnět k šetření Úřadu pro ochranu osobních údajů. Více informací
Chystáte se prodat nemovitost?
Pomůžeme Vám!

Kontakt

Zdenka Hájková

Zdenka Hájková

Přihlášení k odběru

Nenechte si ujít nejnovější nabídky pronájmu bytů 3+kk v Liberci.

Podobné nabídky