Prodej rodinného domu, Horní Jelení, Bezová, 104 m2

Bezová, Horní Jelení


10 280 000 Kč /za nemovitost
HYPOTÉKA od 45 945 Kč /měs.

(cena je včetně právního servisu a provize realitní kanceláři)


Regionální dodavatelé v Horním Jelení

Popis

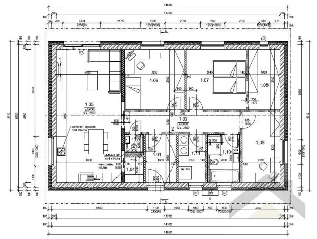
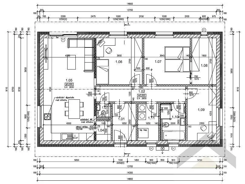
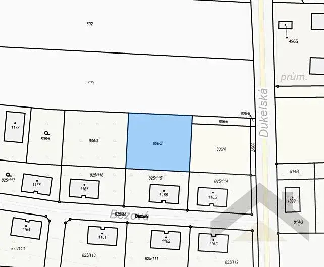
K prodeji je novostavba jednopodlažního rodinného domu ve and #34;městě mezi lesy and #34; - v Horním Jelení. Dům je situován na rovinatém pozemku o výměře 864 m2, v okrajové nově vznikající rezidenční čtvrti, severně od centrální části obce. Rodinný dům je půdorysného tvaru obdélníku s rozměry 14,66 m x 9,11 m. Výška objektu od úrovně 1. NP k hřebenu střechy je 5,5 m. Dům nabízí zastavěnou plochu 133,6 m2, užitnou plochu 104,6 m2 a je dispozičně řešený jako 4+kk. Skrze zádveří je vstup do chodby a následně do obývacího pokoje s kuchyní a jídelnou. Ze vstupní chodby je dále přístupná ložnice s šatnou, pokoj, pracovna, koupelna, technická místnost a WC. Z kuchyně je vstup do spíže. Pozemek bude oplocen. Dům bude předán zkolaudovaný, jeho dokončení je plánováno na červenec 2026. Okna a dveře na terasu jsou plastová s izolačním trojsklem. Střešní krytina je z keramických tašek Tondach. V obytných místnostech budou použity lepené vinylové dílce, v místnostech hygienického zázemí a technické místnosti keramická dlažba. Vnitřní dveře budou dřevěné plné s CPL povrchem osazené do dřevěných obložkových zárubní. Koupelna bude osazena sanitární technikou. Součástí domu při předání nebude kuchyňská linka. Dům je napojen na veřejný vodovod, kanalizaci a elektřinu. Vytápění domu zajistí tepelné čerpadlo vzduch-voda s podlahovým vytápěním. Pozemek je příjemně orientován, v zástavbě nízkopodlažních rodinných domů, s lesem za zády a v obci s dobrou úrovní občanské vybavenosti. Z Horního Jelení jsou skvěle dostupné Holice, Vysoké Mýto, Borohrádek a Choceň. Do 30 min. jste v Hradci Králové. Svou polohou uprostřed lesů láká ke sportu i k procházkám k blízkým rybníkům. Okolní lesy nabízí každoroční bohatou úrodu hub a borůvek.


Cena
10 280 000 Kč /za nemovitost Spočítat hypotéku
Poznámka k ceně
cena je včetně právního servisu a provize realitní kanceláři
Aktualizováno
19. 3. 2026
Adresa
Bezová, Horní Jelení
ID
0628
Stavba
Cihlová
Stav objektu
Novostavba
Druh objektu
Samostatný
Užitná plocha
104 m2
Zastavěná plocha
133 m2
Podlahová plocha
104 m2
Plocha pozemku
864 m2
Plocha zahrady
730 m2
Odpad
Veřejná kanalizace
Doprava
Silnice, Autobus
Voda
Vodovod
Topné těleso
Podlahové vytápění
Zdroj topení
Tepelné čerpadlo
Zdroj teplé vody
Tepelné čerpadlo
Bezbarierový přístup

Máte zájem o tuto nemovitost?

Tímto, v souladu s nařízením Evropského parlamentu a Rady (EU) 2016/679, v platném znění, prohlašuji, že mi je alespoň 16 let a uděluji tak svůj souhlas se zpracováním zadaných údajů (jméno, telefon, e-mail, ip adresa) společnosti B3 Technology, s.r.o., IČ: 07330600, se sídlem Novostavby 126/23, 435 11 Lom (správce dat), za účelem předání dotazu z tohoto formuláře Vámi vybranému inzerentovi a zpětného kontaktování mé osoby. Osobní údaje bude správce zpracovávat manuálně i automaticky přímo prostřednictvím svých zaměstnanců. Informace předané tímto formulářem budou uloženy v databázi správce maximálně po dobu 10 let. Odvolání souhlasu s uložením a zpracováním poskytnutých dat lze e-mailem na info@realitymat.cz. V případě podezření na neoprávněné použití Vámi poskytnutých údajů máte právo předat podnět k šetření Úřadu pro ochranu osobních údajů. Více informací
Chystáte se prodat nemovitost?
Pomůžeme Vám!

Kontakt

Mgr. Monika  Kindlová

Mgr. Monika Kindlová

Přihlášení k odběru

Nenechte si ujít nejnovější nabídky prodeje rodinných domů v Horním Jelení.

Podobné nabídky