Prodej bytu 3+1, Světlá nad Sázavou, Na Sídlišti, 67 m2

Na Sídlišti, Světlá nad Sázavou


4 590 000 Kč /za nemovitost
HYPOTÉKA od 20 515 Kč /měs.
Regionální dodavatelé v Světlé nad Sázavou

Popis

Hledáte byt po kompletní rekonstrukci, kde už stačí jen převzít klíče, nastěhovat se a neřešit žádné další investice? Máme pro vás byt 3+1 ve Světlé nad Sázavou, který se nachází v ulici Na Sídlišti, jen kousek od centra města.

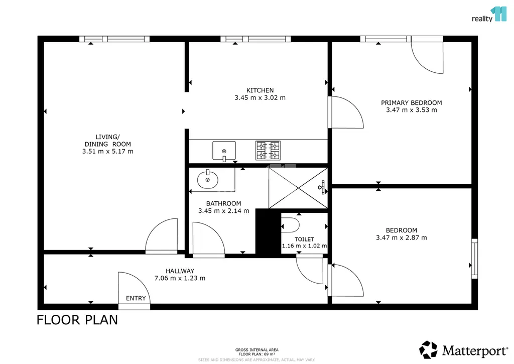
Byt nabízí užitnou plochu 67 m² a bonusem je balkón o velikosti 4 m², ideální místo pro ranní kávu nebo chvíle odpočinku. Praktickým benefitem je také komora o velikosti 2 m² umístěná mimo bytovou jednotku, která poskytuje další prostor pro uskladnění věcí.

Dispozičně je byt řešen jako 3+1 a nabízí obývací pokoj, ložnici, kuchyni, další pokoj, koupelnu, samostatné WC a prostornou chodbu, která poskytuje dostatek prostoru pro umístění úložných prostor.

V rámci rekonstrukce došlo k celkové výměně elektroinstalace a vodovodních rozvodů. Byt má nové omítky a všude byla položena nová podlahová krytina. Díky tomu nabízí bydlení bez nutnosti dalších investic.

Velkou výhodou je také samotná lokalita. Ulice Na Sídlišti ve Světlé nad Sázavou patří mezi vyhledávané části města – v docházkové vzdálenosti najdete obchody, školy, školky i další občanskou vybavenost a zároveň jste jen pár minut chůze od centra.

K bytu je k dispozici také 3D virtuální prohlídka, kterou vám na vyžádání velmi rádi zašleme.

Pokud vás tato nabídka zaujala, neváhejte mě kontaktovat pro více informací nebo domluvení osobní prohlídky. Budu se na vás těšit při společném setkání. Ev. číslo: 28124.

Cena
4 590 000 Kč /za nemovitost Spočítat hypotéku
Aktualizováno
27. 3. 2026
Adresa
Na Sídlišti, Světlá nad Sázavou
ID
28124
Stavba
Panelová
Stav objektu
Velmi dobrý
Patro
2. z 7
Vlastnictví
Osobní
Užitná plocha
67 m2
Podlahová plocha
67 m2
Třída energetické náročnosti
G - Mimořádně nehospodárná
Topení
Ústřední dálkové
Balkon
Sklep

Máte zájem o tuto nemovitost?

Tímto, v souladu s nařízením Evropského parlamentu a Rady (EU) 2016/679, v platném znění, prohlašuji, že mi je alespoň 16 let a uděluji tak svůj souhlas se zpracováním zadaných údajů (jméno, telefon, e-mail, ip adresa) společnosti B3 Technology, s.r.o., IČ: 07330600, se sídlem Novostavby 126/23, 435 11 Lom (správce dat), za účelem předání dotazu z tohoto formuláře Vámi vybranému inzerentovi a zpětného kontaktování mé osoby. Osobní údaje bude správce zpracovávat manuálně i automaticky přímo prostřednictvím svých zaměstnanců. Informace předané tímto formulářem budou uloženy v databázi správce maximálně po dobu 10 let. Odvolání souhlasu s uložením a zpracováním poskytnutých dat lze e-mailem na info@realitymat.cz. V případě podezření na neoprávněné použití Vámi poskytnutých údajů máte právo předat podnět k šetření Úřadu pro ochranu osobních údajů. Více informací
Chystáte se prodat nemovitost?
Pomůžeme Vám!

Kontakt

Bc. Jaroslav Fišer

Bc. Jaroslav Fišer

Přihlášení k odběru

Nenechte si ujít nejnovější nabídky prodeje bytů 3+1 v Světlé nad Sázavou.

Podobné nabídky