Prodej chalupy, Chabeřice - Holšice, 188 m2

Holšice


6 790 000 Kč /za nemovitost
HYPOTÉKA od 30 347 Kč /měs.

(+ pozemek 500.000,-Kč)


Regionální dodavatelé v Chabeřicích

Popis

Na prodej exkluzivní rodinný dům v malebné krajině, na zcela klidném místě, nedaleko Kácova u řeky Sázava. Prodej udržovaného rodinného domu v půvabné krajině Posázaví Holšice, okres Kutná Hora.

Prostorný rodinný dům s velkým zázemím, v klidné vesnici Holšice (Chabeřice). Dům je situován na kraji vesnice s otevřenými výhledy do široké okolní krajiny.

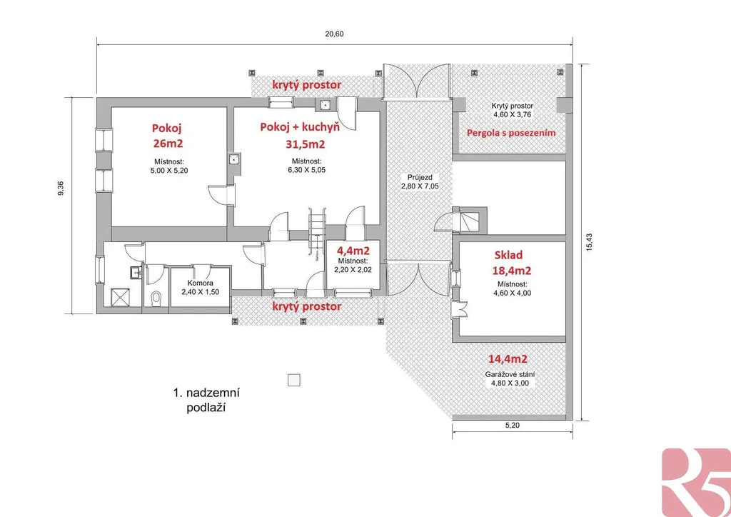
Jedná se o přestavbu původního vesnického stavení s hospodářským zázemím. Celková plocha pozemku 1 002m2, užitná plocha domu činí 188m2. Dům má zánovní střechu Bramac, včetně výměny části krovu, klempířských prvků a dalších stavebních úprav. Je velmi dobře udržován a prošel postupnou rekonstrukcí interiérů i exteriérů.

V 1 NP se nachází vstupní předsíň se vstupem do velkorysé hlavní místnosti s kuchyní a obývací částí. Odtud je možný přímý vstup do krytého venkovního posezení a zahrady. Vstup do dalšího pokoje situovaného do štítu domu a menšího pokoje směrem do dvora. Z předsíně je přístupná část s oddělenou toaletou, koupelnou se sprchovým koutem a komorou.

Podkroví je přístupné schodištěm z předsíně a nachází se v něm tři pokoje, každý s odděleným vstupem.

Dále i vlastní půda s možností úložných prostor. Dům je vytápěn krbovými kamny, a dvěma dalšími kamny na tuhá paliva. Jsou k dispozici přímotopy s dálkovým ovládáním, přes mobilní telefon.

K domu je zahrada o rozloze 2 875m2 jen 30 m od domu, situovaná na hrázi rybníka s malým potůčkem, osázená ovocnými stromy, ideální k chovu zvířat, nebo pěstování zahradních a rostlinných plodin.

Přípojky: elektřina 220, 380 V, obecní vodovod, vlastní studna, septik. (V obci je plánována kanalizace).

Příslušenství tvoří rozlehlá, opravená stodola s krytým parkovacím stáním, dílnou, skladem, hloubeným sklepem a tři krytá venkovní posezení.
Dále objekt bývalé prádelny s vodou a elektřinou (možnost dílny, keramické dílny, sauny atd. )

Zahrada umožňuje nerušené soukromí a velkorysé výhledy do okolní krajiny bez rušivých okolních vlivů. Je osázena vzrostlými ovocnými a jehličnatými stromy, keři a dalšími rostlinami. Přístup je zajištěn obecní asfaltovou komunikací.

Bezprostřední okolí domu tvoří malebná krajina s hezkými výhledy, blízkou řekou Sázavou (koupání 700m), možností výletů pěších, cyklistických i vodáckých. V okolí jsou historická města Kácov, Český Štemberk a Zruč nad Sázavou, Golfový areál, Kácovský pivovar, Zámek, tenisové kurty atd. Veškerá občanská vybavenost vzdálena 4 km (Kácov, Zruč) Výborné spojení s Prahou: dálnice D1 Praha 55km cca 45 min. Dále vlak směr Čerčany a Praha.

Ideální místo pro odpočinek, ale možné i pro trvalé bydlení.

Cena
6 790 000 Kč /za nemovitost Spočítat hypotéku
Poznámka k ceně
+ pozemek 500.000,-Kč
Aktualizováno
17. 3. 2026
Adresa
Holšice
ID
R519558
Stavba
Cihlová
Stav objektu
Dobrý
Vybaveno
Ano
Typ objektu
Přízemní
Druh objektu
Samostatný
Lokalita objektu
Klidná část obce
Užitná plocha
188 m2
Zastavěná plocha
200 m2
Podlahová plocha
188 m2
Plocha pozemku
3877 m2
Plocha zahrady
800 m2
Třída energetické náročnosti
E - Nehospodárná
Elektřina
230V, 400V
Odpad
Veřejná kanalizace
Topení
Lokální tuhá paliva, Lokální elektrické
Voda
Vodovod, Studna
Topné těleso
Přímotop, Krbová kamna
Zdroj topení
Přímotop, Krbová kamna
Garáž
Sklep
Terasa
Bezbarierový přístup
Parkování

Máte zájem o tuto nemovitost?

Tímto, v souladu s nařízením Evropského parlamentu a Rady (EU) 2016/679, v platném znění, prohlašuji, že mi je alespoň 16 let a uděluji tak svůj souhlas se zpracováním zadaných údajů (jméno, telefon, e-mail, ip adresa) společnosti B3 Technology, s.r.o., IČ: 07330600, se sídlem Novostavby 126/23, 435 11 Lom (správce dat), za účelem předání dotazu z tohoto formuláře Vámi vybranému inzerentovi a zpětného kontaktování mé osoby. Osobní údaje bude správce zpracovávat manuálně i automaticky přímo prostřednictvím svých zaměstnanců. Informace předané tímto formulářem budou uloženy v databázi správce maximálně po dobu 10 let. Odvolání souhlasu s uložením a zpracováním poskytnutých dat lze e-mailem na info@realitymat.cz. V případě podezření na neoprávněné použití Vámi poskytnutých údajů máte právo předat podnět k šetření Úřadu pro ochranu osobních údajů. Více informací
Chystáte se prodat nemovitost?
Pomůžeme Vám!

Kontakt

Miloslav Shejbal

Miloslav Shejbal

Přihlášení k odběru

Nenechte si ujít nejnovější nabídky prodeje chalup v Chabeřicích.

Tipy Realitymatu

Podobné nabídky