Prodej rodinného domu, Rudice, 121 m2

Rudice


8 211 000 Kč /za nemovitost
HYPOTÉKA od 36 698 Kč /měs.

(Cena včetně domu na klíč, pozemku, připojení na IS a DPH.)


Regionální dodavatelé v Rudici

Popis

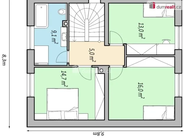
Dumrealit.cz Vám zprostředkuje k prodeji výstavbu rodinného domu na klíč 4+kk o celkové podlahové ploše 121 m² v obci Rudice, okres Uherské Hradiště, se zahradou s ovocnými stromy o celkové výměře 1250m².

Základní informace:
- Lokalita: Rudice, okres Uherské Hradiště
- Typ domu: samostatný, patrový - Konstrukce: cihlová
- Dispozice: 4+kk / 5+kk
- Užitná plocha: 121 m²
- Zastavěná plocha: 81 m²
- Plocha pozemku: 1 250 m²
- Počet bytů v domě: 1
- Stav objektu: nový, dům předán “na klíč”

Vybavení a technické parametry:
- Vytápění: Nízkonákladové teplovodní podlahové topení, tepelné čerpadlo se zásobníkem na teplou vodu 180l.
- Napojení na vodovod - Elektřina: 230 V / 400 V
- Plyn: přípojka na hranici pozemku
- Odpad: ČOV (čistírna odpadních vod) pro celý objekt

Přednosti nabídky:
- Moderní, energeticky úsporná novostavba
- Velký, soukromý pozemek 1 250 m² poskytující možnost rozšíření zahradních úprav nebo volnočasových aktivit
- Klidná lokalita s dobrou dostupností do Uherského Brodu či Bojkovic
- Kompletní technické napojení (voda, elektřina 230/400 V, ČOV), plyn dostupný na hranici pozemku

Díky svému kompaktnímu tvaru dosahuje projekt patrového rodinného domu Benefit125 výraznou energetickou a výstavbovou úsporu. Z boční strany lze jednoduchým způsobem přistavět garáž, nebo přístřešek . Také lze upravit rozložení oken a ostatních stavebních otvorů . Projekt je dostupný také v 5 + kk alternativě a také v alternativě.
Dům moderního vzhledu je typ rodinného domu vhodný do rovinatého, ale i mírně svažitého terénu.

Žádné starosti.
Stavíme na klíč.
Od základové desky až po kolaudaci. Uvedená cena obsahuje základovou desku, projekt, DPH a stavba bude provedena na klíč a předána po kolaudaci k okamžitému užívání. (Součástí ceny není kuchyňská linka a světla – dokážeme za zvýhodněných podmínek zajistit přes naše dodavatele).
Délka výstavby od vydání stavebního povolení 12 měsíců u zděné varianty.
Zaujala vás tato nabídka?
Napište mi zprávu nebo zavolejte a probereme detaily vašeho budoucího domova. Ev. číslo: 655025.

Cena
8 211 000 Kč /za nemovitost Spočítat hypotéku
Poznámka k ceně
Cena včetně domu na klíč, pozemku, připojení na IS a DPH.
Aktualizováno
15. 3. 2026
Adresa
Rudice
ID
655639
Stavba
Cihlová
Stav objektu
Ve výstavbě
Typ objektu
Patrový
Druh objektu
Samostatný
Užitná plocha
121 m2
Zastavěná plocha
81 m2
Podlahová plocha
121 m2
Plocha pozemku
1250 m2
Třída energetické náročnosti
A - Mimořádně úsporná
Ukazatel energetické náročnosti
49 kWh/m2 za rok

Máte zájem o tuto nemovitost?

Tímto, v souladu s nařízením Evropského parlamentu a Rady (EU) 2016/679, v platném znění, prohlašuji, že mi je alespoň 16 let a uděluji tak svůj souhlas se zpracováním zadaných údajů (jméno, telefon, e-mail, ip adresa) společnosti B3 Technology, s.r.o., IČ: 07330600, se sídlem Novostavby 126/23, 435 11 Lom (správce dat), za účelem předání dotazu z tohoto formuláře Vámi vybranému inzerentovi a zpětného kontaktování mé osoby. Osobní údaje bude správce zpracovávat manuálně i automaticky přímo prostřednictvím svých zaměstnanců. Informace předané tímto formulářem budou uloženy v databázi správce maximálně po dobu 10 let. Odvolání souhlasu s uložením a zpracováním poskytnutých dat lze e-mailem na info@realitymat.cz. V případě podezření na neoprávněné použití Vámi poskytnutých údajů máte právo předat podnět k šetření Úřadu pro ochranu osobních údajů. Více informací
Chystáte se prodat nemovitost?
Pomůžeme Vám!

Kontakt

Pavel Vrána - Člen Realitní komory ČR

Pavel Vrána - Člen Realitní komory ČR

Přihlášení k odběru

Nenechte si ujít nejnovější nabídky prodeje rodinných domů v Rudici (okr. Uherské Hradiště).

Podobné nabídky