Prodej pozemku pro bydlení, Kamenice, 671 m2 (ID: 2101377)

Kamenice, Řehořov


1 996 000 Kč /za nemovitost
HYPOTÉKA od 8 921 Kč /měs.
Regionální dodavatelé v Kamenici

Popis

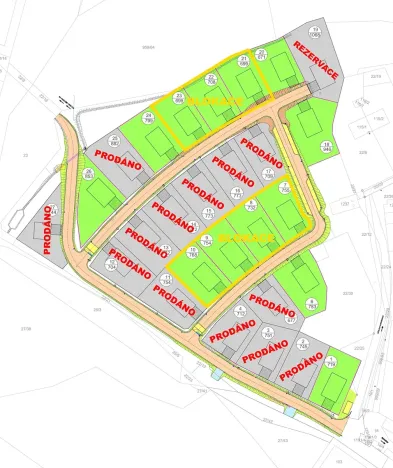
Naše společnost LANDWEALTH CZ s.r.o. vybudovala v Řehořově (Městys Kamenice) 27 jihovýchodně orientovaných stavebních pozemků pro výstavbu rodinných domů s krásným výhledem na Řehořov a okolní krajinu. Na pozemky je přivedena elektřina (400 V), optická síť internetu a přípojky obecního vodovodu a splaškové i dešťové kanalizace. K pozemkům vede nová asfaltová komunikace s veřejným osvětlením.
Jedním z nabízených pozemků je pozemek č. 20 o výměře 671 m2.
Výstavba není časově omezena! Máte dost času na to, abyste si postavili dům podle svých představ (zástavba do max. 1 nadzemního podlaží + obyvatelné podkroví, zastavitelná plocha do 50 %).

Velkým plusem Řehořova je dopravní dostupnost. Dobré spojení je autem i autobusem do Jihlavy (17 km) i do Brna (70 km). Nájezdy na dálnici jsou v obou směrech dosažitelné do 5 minut.
V Řehořově se nachází obchod, pošta, kulturní dům, hřiště na malou kopanou a volný čas, workautové i dětské hřiště.

K nákupu nemovitosti můžete využít výhodnou hypotéku na bydlení od našeho obchodního partnera, který nabízí jednu z nejlepších sazeb na trhu, hypotéku až do 90 % hodnoty nemovitosti, jednoduché a expresní vyřízení. A navíc za Vás uhradíme některé poplatky.

Více informací Vám sdělíme telefonicky, elektronicky či v kanceláři naší společnosti.

Cena
1 996 000 Kč /za nemovitost Spočítat hypotéku
Aktualizováno
12. 3. 2026
Adresa
Kamenice, Řehořov
Lokalita objektu
Okraj obce
Plocha pozemku
671 m2
Elektřina
400V
Odpad
Veřejná kanalizace
Komunikace
Asfaltová
Telekomunikace
Internet
Doprava
Dálnice, Silnice, Autobus
Voda
Vodovod

Máte zájem o tuto nemovitost?

Tímto, v souladu s nařízením Evropského parlamentu a Rady (EU) 2016/679, v platném znění, prohlašuji, že mi je alespoň 16 let a uděluji tak svůj souhlas se zpracováním zadaných údajů (jméno, telefon, e-mail, ip adresa) společnosti B3 Technology, s.r.o., IČ: 07330600, se sídlem Novostavby 126/23, 435 11 Lom (správce dat), za účelem předání dotazu z tohoto formuláře Vámi vybranému inzerentovi a zpětného kontaktování mé osoby. Osobní údaje bude správce zpracovávat manuálně i automaticky přímo prostřednictvím svých zaměstnanců. Informace předané tímto formulářem budou uloženy v databázi správce maximálně po dobu 10 let. Odvolání souhlasu s uložením a zpracováním poskytnutých dat lze e-mailem na info@realitymat.cz. V případě podezření na neoprávněné použití Vámi poskytnutých údajů máte právo předat podnět k šetření Úřadu pro ochranu osobních údajů. Více informací
Chystáte se prodat nemovitost?
Pomůžeme Vám!

Kontakt

Pavlína Zábranská

Pavlína Zábranská

Přihlášení k odběru

Nenechte si ujít nejnovější nabídky prodeje pozemků pro bydlení v Kamenici (okr. Jihlava).

Podobné nabídky