Prodej bytu 2+kk, Třešť, Nádražní, 51 m2 (ID: 2099417)

Nádražní, Třešť


3 690 000 Kč /za nemovitost
HYPOTÉKA od 16 492 Kč /měs.
Regionální dodavatelé v Třešti

Popis

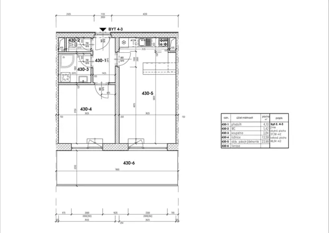
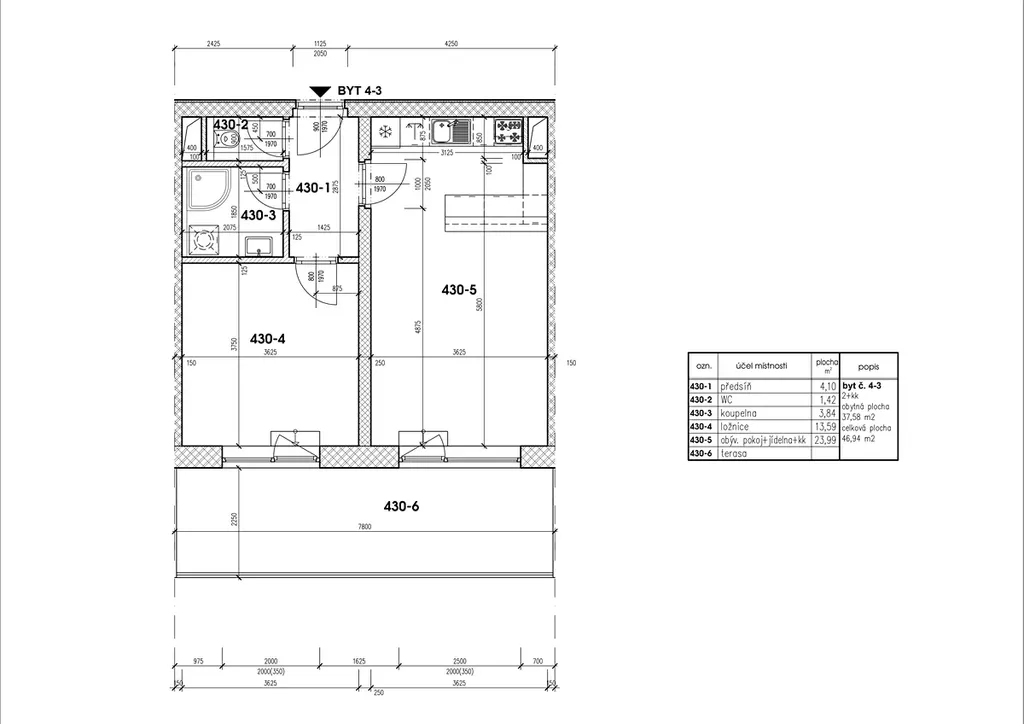
Prodej nadstandardního bytu 2+kk s terasou 14m² v Třešti u Jihlavy. Přímo od developera bez provize RK.

Hledáte moderní bydlení s pocitem soukromí a komfortem rodinného domu?
Máme pro vás jedinečnou příležitost: nový byt 2+kk v nejvyšším podlaží s pěknou terasou, odkud si vychutnáte slunce i klidné výhledy do zeleně.


Byt 2+kk disponuje podlahovou plochou 50,6m² a terasou 14m².

Z obývacího pokoje můžete vstoupit na prostornou terasu, která zastoupí zahradu či pergolu rodinném domě ale bez práce a fin. nákladů na údržbu. Je prostor pro relax, grilování, rodinné oslavy a setkání.

V současné době probíhají v bytech dokončovací práce.
Kolaudace se plánuje na březen r. 2026, k nastěhování během dubna 26.

Byt bude předán novému majiteli s kompletním vybavením koupelny, WC, v pokojích bude položená vinylová podlaha, interiérové dveře s obložkami. V ceně není kuch. linka. Tu si zajistí kupující podle svého vkusu a fin. možností.

Parkovat je možné zdarma před domem nebo lze koupit parkovací stání ve vnitrobloku za 190tis.Kč.

Třešť je město, které kombinuje pohodlí většího města s klidem menší obce.
Autem se dostanete do Jihlavy pohodovou jízdou za 20–25 min, do Telče za 15min.
V Třešti je kompletní občanská vybavenost – škola, školka, poliklinika, obchody, restaurace, kavárny, kino, knihovna...


Proč právě tento byt?

✔ terasa 14m² s výhledem do okolní zeleně
✔ dostupná cena
✔ klidná lokalita s perfektní dostupností

Domluvte si nezávaznou prohlídku a přijďte se podívat, jak může vypadat váš nový domov v Třešti.

Cena
3 690 000 Kč /za nemovitost Spočítat hypotéku
Aktualizováno
11. 3. 2026
Adresa
Nádražní, Třešť
Stavba
Cihlová
Stav objektu
Novostavba
Patro
4. z 4
Vlastnictví
Osobní
Užitná plocha
51 m2
Třída energetické náročnosti
E - Nehospodárná
Elektřina
230V
Odpad
Veřejná kanalizace
Komunikace
Dlážděná
Telekomunikace
Internet
Doprava
Vlak, Autobus
Voda
Vodovod
Topné těleso
Infrapanel
Zdroj topení
Infrapanel
Zdroj teplé vody
Bojler - elektro
Terasa
Výtah

Máte zájem o tuto nemovitost?

Tímto, v souladu s nařízením Evropského parlamentu a Rady (EU) 2016/679, v platném znění, prohlašuji, že mi je alespoň 16 let a uděluji tak svůj souhlas se zpracováním zadaných údajů (jméno, telefon, e-mail, ip adresa) společnosti B3 Technology, s.r.o., IČ: 07330600, se sídlem Novostavby 126/23, 435 11 Lom (správce dat), za účelem předání dotazu z tohoto formuláře Vámi vybranému inzerentovi a zpětného kontaktování mé osoby. Osobní údaje bude správce zpracovávat manuálně i automaticky přímo prostřednictvím svých zaměstnanců. Informace předané tímto formulářem budou uloženy v databázi správce maximálně po dobu 10 let. Odvolání souhlasu s uložením a zpracováním poskytnutých dat lze e-mailem na info@realitymat.cz. V případě podezření na neoprávněné použití Vámi poskytnutých údajů máte právo předat podnět k šetření Úřadu pro ochranu osobních údajů. Více informací
Chystáte se prodat nemovitost?
Pomůžeme Vám!

Kontakt

Pavla Semrádová

Pavla Semrádová

Přihlášení k odběru

Nenechte si ujít nejnovější nabídky prodeje bytů 2+kk v Třešti.

Podobné nabídky