Pronájem bytu 1+kk, Ostrava - Vítkovice, Tržní, 25 m2

Tržní, Ostrava, Vítkovice


7 000 Kč /za měsíc
Získejte výhodnou HYPOTÉKU

(Kauce 14000,-Kč, záloha na teplo a vodu ( paušální platba ) 1500,-Kč, elektřina 1000,-Kč měsíčně ( vlastní elektroměr, vyúčtování 1x ročně) Provize RK 11000,-Kč)


Regionální dodavatelé v Ostravě

Popis

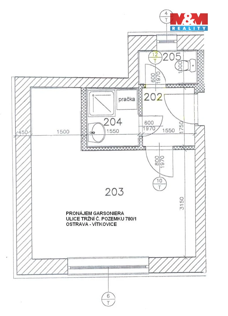
Nabízíme k pronájmu 1+kk, o velikosti 25 m² v samém srdci Ostravy Vítkovic. Byt je ideální pro jednu až 2 osoby. Díky praktické dispozici je vhodný také jako menší kancelář či pracovní prostor.
Po vstupu do bytu se nachází předsíň, ze které je vlevo vstup do pokoje s kuchyňským koutem. Vpravo je samostatné WC a naproti vstupním dveřím koupelna se sprchovým koutem a místem pro pračku. Byt je nevybavený, takže si jej můžete zařídit přesně podle vlastních představ. K dispozici je kuchyňský kout s indukční plotýnkou, lednicí a základním nádobím. Podlahy tvoří lino a dlažba, okna mají moderní rolety. Byt se nachází v 1. NP cihlového domu, plastová okna jsou orientována na severozápad. Vytápění je plynové, elektřina má samostatný elektroměr. Velkou výhodou je výborná lokalita – parkování přímo před domem a veškerá občanská vybavenost v docházkové vzdálenosti do 150 m (MHD, obchody, škola, školka, pošta i nemocnice). Byt je volný od 1 dubna. v případě zájmu mne neváhejte kontaktovat.

Cena
7 000 Kč /za měsíc
Poznámka k ceně
Kauce 14000,-Kč, záloha na teplo a vodu ( paušální platba ) 1500,-Kč, elektřina 1000,-Kč měsíčně ( vlastní elektroměr, vyúčtování 1x ročně) Provize RK 11000,-Kč
Aktualizováno
5. 3. 2026
Adresa
Tržní, Ostrava, Vítkovice
ID
935341
Stavba
Cihlová
Stav objektu
Velmi dobrý
Vybaveno
Částečně
Lokalita objektu
Centrum obce
Vlastnictví
Osobní
Užitná plocha
25 m2

Máte zájem o tuto nemovitost?

Tímto, v souladu s nařízením Evropského parlamentu a Rady (EU) 2016/679, v platném znění, prohlašuji, že mi je alespoň 16 let a uděluji tak svůj souhlas se zpracováním zadaných údajů (jméno, telefon, e-mail, ip adresa) společnosti B3 Technology, s.r.o., IČ: 07330600, se sídlem Novostavby 126/23, 435 11 Lom (správce dat), za účelem předání dotazu z tohoto formuláře Vámi vybranému inzerentovi a zpětného kontaktování mé osoby. Osobní údaje bude správce zpracovávat manuálně i automaticky přímo prostřednictvím svých zaměstnanců. Informace předané tímto formulářem budou uloženy v databázi správce maximálně po dobu 10 let. Odvolání souhlasu s uložením a zpracováním poskytnutých dat lze e-mailem na info@realitymat.cz. V případě podezření na neoprávněné použití Vámi poskytnutých údajů máte právo předat podnět k šetření Úřadu pro ochranu osobních údajů. Více informací
Chystáte se prodat nemovitost?
Pomůžeme Vám!

Kontakt

Pavel Mrázek

Pavel Mrázek

Přihlášení k odběru

Nenechte si ujít nejnovější nabídky pronájmu bytů 1+kk v Ostravě.

Podobné nabídky