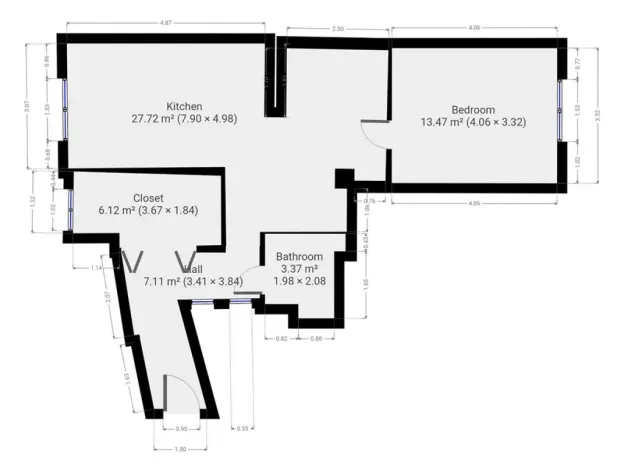
Pronájem bytu 3+kk, Praha - Braník, Branická, 62 m2

Branická, Braník - Praha 4


27 000 Kč /za měsíc
Získejte výhodnou HYPOTÉKU

(vratná jistota, náklady na bydlení 4500, poplatek za podnájem)


Regionální dodavatelé v Praze 4

Stěhovací služby

Výkup a prodej starého nábytku

Popis

K dlouhodobému podnájmu nabízíme krásný byt o dispozici 3+kk v klidné části Prahy - Braník. Byt o celkové výměře 62 m2 se nachází ve třetím patře cihlového domu.

Byt je po rekonstrukci, s dřevěnými podlahami a nabízí se částečně vybavený. Kuchyně disponuje troubou, sklokeramickou varnou deskou, digestoří, lednicí, myčkou a mikrovlnnou troubou. Ostatní pokoje jsou nevybavené. V koupelně se nachází sprcha, umyvadlo se zrcadlem, police a toaleta.

V okolí veškerá občanská dostupnost - restaurace, lékař, základní škola. Byt se nachází v blízkosti Žlutých lázní a cyklostezky, která vede podél Vltavy.

Byt je volný k nastěhování od 01.05.2026 Majitel preferuje zájemce bez domácích mazlíčků.

Uvedena energetická kategorie G, jelikož nemáme k dispozici PENB.

Byt pronajímá Ideální nájemce - služba, se kterou budete bydlet bezstarostně a za férových podmínek. Když se něco přihodí, k dispozici jsou správci, kteří s vámi vše vyřeší. Pomůžeme s veškerou administrativou, s nastavením plateb a zajistíme vám speciální pojištění. Pojďte bydlet s námi!
_____________

Najděte bydlení bezkontaktně díky virtuální prohlídce a elektronickým podpisům.

Zavázali jsme se, že budeme z pronajímání dělat bezstarostnou záležitost, a svému slibu chceme dostát i v této nelehké situaci. Proto vám nabízíme možnost najít dlouhodobý pronájem bezpečně a bezkontaktně. Osobní či virtuální prohlídku bytu si u nás zarezervujete online a všechny dokumenty podepíšeme elektronicky. S jakýmkoliv dotazem vám pomůže naše posílené oddělení klientské podpory.

Cena
27 000 Kč /za měsíc
Poznámka k ceně
vratná jistota, náklady na bydlení 4500, poplatek za podnájem
Aktualizováno
31. 3. 2026
Adresa
Branická, Braník - Praha 4
ID
N2849
Stavba
Cihlová
Stav objektu
Velmi dobrý
Patro
3. z 6
Vybaveno
Částečně
Typ objektu
Patrový
Lokalita objektu
Klidná část obce
Vlastnictví
Osobní
Užitná plocha
62 m2
Podlahová plocha
62 m2
Elektřina
230V
Topení
Lokální plynové
Výtah

Máte zájem o tuto nemovitost?

Tímto, v souladu s nařízením Evropského parlamentu a Rady (EU) 2016/679, v platném znění, prohlašuji, že mi je alespoň 16 let a uděluji tak svůj souhlas se zpracováním zadaných údajů (jméno, telefon, e-mail, ip adresa) společnosti B3 Technology, s.r.o., IČ: 07330600, se sídlem Novostavby 126/23, 435 11 Lom (správce dat), za účelem předání dotazu z tohoto formuláře Vámi vybranému inzerentovi a zpětného kontaktování mé osoby. Osobní údaje bude správce zpracovávat manuálně i automaticky přímo prostřednictvím svých zaměstnanců. Informace předané tímto formulářem budou uloženy v databázi správce maximálně po dobu 10 let. Odvolání souhlasu s uložením a zpracováním poskytnutých dat lze e-mailem na info@realitymat.cz. V případě podezření na neoprávněné použití Vámi poskytnutých údajů máte právo předat podnět k šetření Úřadu pro ochranu osobních údajů. Více informací
Chystáte se prodat nemovitost?
Pomůžeme Vám!

Kontakt

Miloslava Kačerová

Miloslava Kačerová

Přihlášení k odběru

Nenechte si ujít nejnovější nabídky pronájmu bytů 3+kk v Praze 4.

Podobné nabídky