Pronájem bytu 3+kk, Srubec - Stará Pohůrka, Dolní, 135 m2 (ID: 2083047)

Dolní, Srubec - Stará Pohůrka, okres České Budějovice


26 000 Kč /za měsíc
Získejte výhodnou HYPOTÉKU

(+ 5.000, Kč zálohy na služby včetně EI pro byt)


Regionální dodavatelé v Srubci

Výkup a prodej starého nábytku

Popis

Luxus s výhledem na celé město. Západy slunce se sklenkou vína pozorované z pohodlí terasy bytu 3+kk, který nabízí 135 m² užitné plochy. Pokud máte rádi prostor a moderní bydlení jste tady správně.

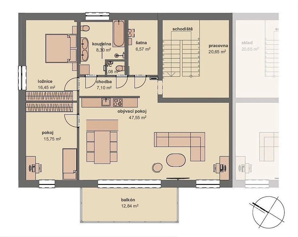
Nabízíme k pronájmu byt 3+kk o celkové ploše 135 m², který se nachází ve 3. NP novostavby bytového domu na Staré Pohůrce v Českých Budějovicích.

• pronájem bytu 3+kk s terasou o celkové ploše 135 m²
• luxusní bydlení s výhledem na celé město
• částečně vybavený interiér
• design a technologie
• dvě vyhrazená parkovací stání
• výborná dopravní dostupnost
Jen obytný prostor nabízí 48 m² podlahové plochy, takže máte takový běžný byt 2+kk jen v obýváku. Tady se prostě mačkat nebudete.
Přístup k hlavnímu vchodu bytového domu je řešen ze zadní zahrádky. Dále po krátkém vnitřním schodišti ke vstupním dveřím bytu. Vstupujeme do otevřené galerie s pracovnou (20,65 m²). Navazující chodba zajištuje vstup do již zmíněného obytného prostoru s kuchyňským koutem (47,55 m²) a přímým vstupem na terasu (13 m²). Kuchyně je vybavena moderní kuchyňskou linou, barovým pultem a v obytném prostoru se nachází sedací souprava a další vybavení. Z obytného prostoru je přístupný pokoj (15,75 m²). Z chodby je vstup do koupelny (8,30 m²), samostatné WC místnosti, šatny (6,57 m²) a ložnice (16,45 m²). Koupelna je vybavena vanou, sprchovým koutem s WalkIn zástěnou, umyvadlem, toaletou a pračkou. V ložnici i v pokoji se nachází dvoulůžkové postele a skříně.
Byt je vytápěn vlastním plynovým kotlem a nechybí řízené větrání s rekuperací tepla. Dvě parkovací stání k bytu jsou vyhrazena na přilehlém parkovišti.
Lokalita samotná je klidným místem v zástavbě rodinných domů. V docházkové vzdálenosti se nachází obchod a zastávky MHD. V okolí jsou mateřské a základní školy. Autem jste za dvě minuty na nájezdu D3, ale díky tunelu Pohůrka nemáte o dálnici ani ponětí.
Výše měsíčního nájemného činní 26.000, Kč, zálohy na služby 5.000, Kč. Vratná kauce ve výši dvou čistých měsíčních nájmů. Odměna za zprostředkování 26.000, Kč plus DPH 21%.

Cena
26 000 Kč /za měsíc
Poznámka k ceně
+ 5.000, Kč zálohy na služby včetně EI pro byt
Aktualizováno
20. 2. 2026
Adresa
Dolní, Srubec - Stará Pohůrka, okres České Budějovice
ID
974917
Stavba
Cihlová
Stav objektu
Novostavba
Vybaveno
Částečně
Vlastnictví
Osobní
Užitná plocha
135 m2
Třída energetické náročnosti
B - Velmi úsporná
Ukazatel energetické náročnosti
84 kWh/m2 za rok

Máte zájem o tuto nemovitost?

Tímto, v souladu s nařízením Evropského parlamentu a Rady (EU) 2016/679, v platném znění, prohlašuji, že mi je alespoň 16 let a uděluji tak svůj souhlas se zpracováním zadaných údajů (jméno, telefon, e-mail, ip adresa) společnosti B3 Technology, s.r.o., IČ: 07330600, se sídlem Novostavby 126/23, 435 11 Lom (správce dat), za účelem předání dotazu z tohoto formuláře Vámi vybranému inzerentovi a zpětného kontaktování mé osoby. Osobní údaje bude správce zpracovávat manuálně i automaticky přímo prostřednictvím svých zaměstnanců. Informace předané tímto formulářem budou uloženy v databázi správce maximálně po dobu 10 let. Odvolání souhlasu s uložením a zpracováním poskytnutých dat lze e-mailem na info@realitymat.cz. V případě podezření na neoprávněné použití Vámi poskytnutých údajů máte právo předat podnět k šetření Úřadu pro ochranu osobních údajů. Více informací
Chystáte se prodat nemovitost?
Pomůžeme Vám!

Kontakt

Aleš Facon

Aleš Facon

Přihlášení k odběru

Nenechte si ujít nejnovější nabídky pronájmu bytů 3+kk v Srubci.

Podobné nabídky