Pronájem bytu 3+kk, Praha - Holešovice, Dělnická, 99 m2 (ID: 2079814)

Dělnická, Praha, Holešovice


33 000 Kč /za měsíc
Získejte výhodnou HYPOTÉKU

(Kauce je ve výší dvouměsíčního nájmu vč. poplatků (67.312,-Kč) Elektřina a plyn budou převedené na nájemce)


Regionální dodavatelé v Praze 7

Stěhovací služby

Výkup a prodej starého nábytku

Popis

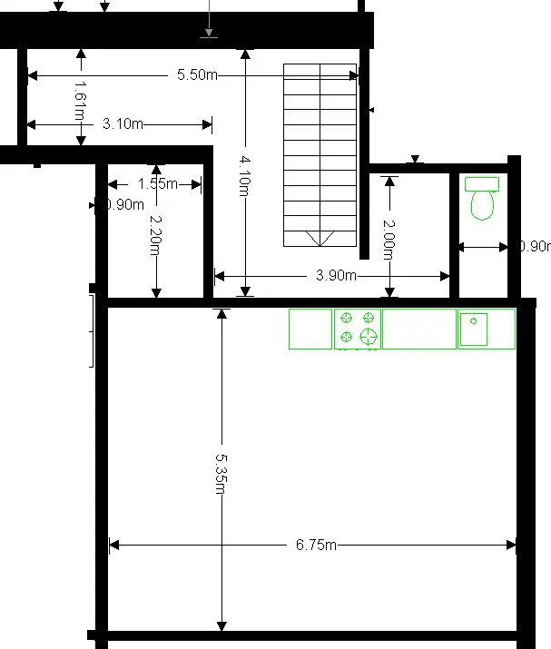
Nabízíme k pronájmu ateliér určený k bydlení o velikosti 3+kk, o celkové podlahové ploše 99,43 m2, umístěný v 6. nadzemním podlaží (5.patře) v domě v ul. Dělnická – Praha 7. V první podláží bytu je přístupné samostatné WC a komora, dále je z předsíně možný vstup do obývacího pokoje s kuchyňským koutem, schodištěm možný vstup do druhého podlaží. V druhém patře se nachází koupelna s vanou, samostatné WC, šatna a dva neprůchozí pokoje. V obou podlažích jsou balkony orientované do vnitrobloku objektu. Byt není vybaven lednicí ani pračkou. Okna v bytě jsou orientována směrem do vnitrobloku objektu (severní strana), v patře jsou střešní okna. Na podlahách je plovoucí podlaha a dlažba. Dům se a nachází se v docházkové vzdálenosti (100m) zastávky tram Dělnická (tram č. 6, 12, 14, 24), stanice metra Nádraží Holešovice cca 15 min pěšky, centrum vozem 10 min, MHD 15 minut. Veškerá občanská vybavenost v blízkém okolí domu. Byt je k nastěhování od 1.2.2026, prohlídky jsou možné dle domluvy. Kauce ve výši dvou měsíčních nájmu vč. služeb. NEPLATÍTE ZDE PROVIZI. Pro bližší informace kontaktujte makléře.

Cena
33 000 Kč /za měsíc
Poznámka k ceně
Kauce je ve výší dvouměsíčního nájmu vč. poplatků (67.312,-Kč) Elektřina a plyn budou převedené na nájemce
Náklady na bydlení
656,- Kč/osoba
Aktualizováno
17. 2. 2026
Adresa
Dělnická, Praha, Holešovice
Stavba
Kamenná
Stav objektu
Dobrý
Patro
6.
Vlastnictví
Osobní
Užitná plocha
99 m2
Balkon
Parkování

Máte zájem o tuto nemovitost?

Tímto, v souladu s nařízením Evropského parlamentu a Rady (EU) 2016/679, v platném znění, prohlašuji, že mi je alespoň 16 let a uděluji tak svůj souhlas se zpracováním zadaných údajů (jméno, telefon, e-mail, ip adresa) společnosti B3 Technology, s.r.o., IČ: 07330600, se sídlem Novostavby 126/23, 435 11 Lom (správce dat), za účelem předání dotazu z tohoto formuláře Vámi vybranému inzerentovi a zpětného kontaktování mé osoby. Osobní údaje bude správce zpracovávat manuálně i automaticky přímo prostřednictvím svých zaměstnanců. Informace předané tímto formulářem budou uloženy v databázi správce maximálně po dobu 10 let. Odvolání souhlasu s uložením a zpracováním poskytnutých dat lze e-mailem na info@realitymat.cz. V případě podezření na neoprávněné použití Vámi poskytnutých údajů máte právo předat podnět k šetření Úřadu pro ochranu osobních údajů. Více informací
Chystáte se prodat nemovitost?
Pomůžeme Vám!

Kontakt

Ing. Ksenie Efimová

Ing. Ksenie Efimová

Přihlášení k odběru

Nenechte si ujít nejnovější nabídky pronájmu bytů 3+kk v Praze 7.

Podobné nabídky