Pronájem bytu 3+kk, Nymburk, K Lesu, 88 m2

K Lesu, Nymburk


25 000 Kč /za měsíc
Získejte výhodnou HYPOTÉKU

(Cena je uvedena bez poplatků a bez provize RK)


Regionální dodavatelé v Nymburku

Popis

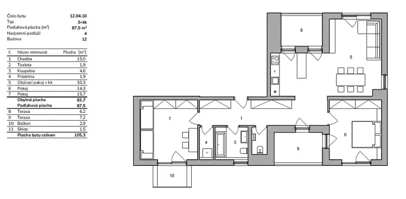
Velkorysý byt 3+kk se dvěma terasami, balkónem a sklepní kójí v posledním patře nového bytového domu s výtahem v Rezidenci Babín v moderní rezidenční lokalitě v jedné z nejatraktivnějších částí města Nymburk.

Nový byt 3+kk je umístěn ve 4. NP a nájemci nabízí vstupní halu, prostorný obývací pokoj s terasou a kompletně vybaveným kuchyňským koutem, dvě ložnice, jedna se vstupem na balkon a jedna se vstupem na terasu, koupelnu s toaletou a vanou, samostatnou toaletu a šatnu s místem pro pračku/sušičku.

K vysokému standardu vybavení patří kvalitní vinylové a keramické podlahy, podlahové vytápění v celém bytě, v koupelně doplněno otopným žebříkem, okna s izolačními trojskly, bílé interiérové bezfalcové dveře s nadstandardní výškou 2,1 m, koupelna je vybavena zařizovacími prvky značek Laufen, Grohe, Kaldewei aj.

Okolí rezidence Babín nabízí krásnou přírodu, břeh řeky Labe s mezinárodní cyklostezkou, kompletní občanskou vybavenost, výběr vzdělávacích zařízení pro děti od mateřské školky až po gymnázium a v neposlední řadě také výbornou dopravní dostupností jak v rámci města Nymburk, tak i do Prahy po dálnici D 11 nebo vlakem přímo do centra.

Nájemné 25 000 Kč / měsíc
Poplatky ca. 5.500 Kč / měsíc
Vratná kauce 50 000 Kč
Provize RK 25 000 Kč + DPH
Elektřina bude převedena na nájemce.

Plocha bytu 87,5 m2, terasa č.1 6,2 m2, terasa č.2 7,2 m2, balkon 2,9 m2, sklep 1,5 m2

Cena
25 000 Kč /za měsíc
Poznámka k ceně
Cena je uvedena bez poplatků a bez provize RK
Aktualizováno
16. 2. 2026
Adresa
K Lesu, Nymburk
Stavba
Cihlová
Stav objektu
Novostavba
Patro
4. z 4
Lokalita objektu
Klidná část obce
Vlastnictví
Osobní
Užitná plocha
88 m2
Třída energetické náročnosti
B - Velmi úsporná
Elektřina
230V
Odpad
Veřejná kanalizace
Telekomunikace
Internet
Voda
Vodovod
Topné těleso
Podlahové vytápění
Zdroj topení
Centrální dálkové
Zdroj teplé vody
Centrální dálkový ohřev
Balkon
Sklep
Terasa
Výtah
Bezbarierový přístup

Máte zájem o tuto nemovitost?

Tímto, v souladu s nařízením Evropského parlamentu a Rady (EU) 2016/679, v platném znění, prohlašuji, že mi je alespoň 16 let a uděluji tak svůj souhlas se zpracováním zadaných údajů (jméno, telefon, e-mail, ip adresa) společnosti B3 Technology, s.r.o., IČ: 07330600, se sídlem Novostavby 126/23, 435 11 Lom (správce dat), za účelem předání dotazu z tohoto formuláře Vámi vybranému inzerentovi a zpětného kontaktování mé osoby. Osobní údaje bude správce zpracovávat manuálně i automaticky přímo prostřednictvím svých zaměstnanců. Informace předané tímto formulářem budou uloženy v databázi správce maximálně po dobu 10 let. Odvolání souhlasu s uložením a zpracováním poskytnutých dat lze e-mailem na info@realitymat.cz. V případě podezření na neoprávněné použití Vámi poskytnutých údajů máte právo předat podnět k šetření Úřadu pro ochranu osobních údajů. Více informací
Chystáte se prodat nemovitost?
Pomůžeme Vám!

Kontakt

Mgr. Jan Vanický

Mgr. Jan Vanický

Přihlášení k odběru

Nenechte si ujít nejnovější nabídky pronájmu bytů 3+kk v Nymburku.

Podobné nabídky