Prodej rodinného domu, Chrášťany, 105 m2 (ID: 2077399)

Chrášťany, Chotouň


3 700 000 Kč /za nemovitost
HYPOTÉKA od 16 537 Kč /měs.

(včetně DPH, včetně poplatků, včetně provize, včetně právního servisu)


Regionální dodavatelé v Chrášťanech

Popis

Jedinečný dům s historickým kouzlem a schváleným projektem rekonstrukce – Chotouň, okr. Kolín

Představujeme dům, který v sobě spojuje autentickou historii, atmosféru venkova a obrovský potenciál pro nový začátek. Tento objekt, stojící na pozemku o velikosti 293 m² (zastavěná plocha 147 m²), je součástí bývalé zemědělské usedlosti v malebné obci Chotouň. Součástí prodeje je již schválený projekt a stavební povolení na kompletní obnovu domu – ideální příležitost pro ty, kteří chtějí tvořit bez zdlouhavého vyřizování.

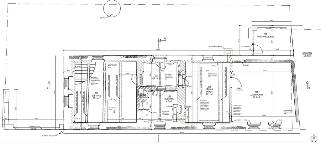
Stavba s tradičním obdélným půdorysem a sedlovou střechou je orientována západ–východ a zachovává si původní venkovský ráz. Ačkoliv vyžaduje rekonstrukci, nevykazuje zásadní statické poruchy, což z ní činí skvělý základ pro budoucí domov, ateliér či podnikatelský záměr.
Současný interiér zahrnuje vstupní chodbu, kuchyň, tři pokoje a přístavek.
Interiér zdobí kamenné zdi s obložením z nepálených cihel, které dodávají prostoru rustikální atmosféru, a dřevěné trámové stropy, jež podtrhují historický charakter domu.
Kompletní projekt rekonstrukce i stavební povolení ráda zašlu vážným zájemcům.

Chotouň – místo s duší a výbornou dostupností, je známá svou bohatou historií – podle legend je rodištěm sv. Prokopa. Obec si dodnes uchovává klidnou atmosféru, přátelské sousedství a krásné okolí plné přírody a památek.

Dopravní dostupnost je jedním z hlavních benefitů:
-Praha autem cca 25 minut
-Autobusová zastávka přímo u domu – spojení do Českého Brodu a Říčan
-Vlakové stanice Klučov a Poříčany – cca 8 km

Občanská vybavenost v okolí:
-MŠ Chrášťany (2 km)
-ZŠ Bylany (4 km)
-Kompletní služby v Českém Brodě – obchody, lékaři, restaurace, sportoviště, kultura
- Okolí nabízí také množství výletních cílů – zámek Konopiště, zámek Jemniště, hrad Český Šternberk a další.

Hledáte místo, kde můžete vytvořit rodinný domov, stylový venkovský ateliér, dílnu, kavárnu nebo komunitní prostor? Tento dům nabízí neomezené možnosti a díky schválenému projektu můžete začít téměř okamžitě.

Ráda vám nemovitost osobně představím a poskytnu veškeré podklady.
Neváhejte mě kontaktovat – možná právě tady začíná váš nový příběh.


Uvedené výměry jsou orientační. V případě více zájemců bude nemovitost prodána nejlepší nabídce a majitel si vyhrazuje právo vybrat kupujícího na základě jim zvolených kritérií. Veškeré zveřejněné údaje obsažené v tomto inzerátu mají pouze informativní charakter a nejsou nabídkou ve smyslu §1731 nebo §1732 občanského zákoníku, ani se nejedná o veřejný příslib dle §1733 občanského zákoníku.

Cena
3 700 000 Kč /za nemovitost Spočítat hypotéku
Poznámka k ceně
včetně DPH, včetně poplatků, včetně provize, včetně právního servisu
Aktualizováno
14. 2. 2026
Adresa
Chrášťany, Chotouň
ID
29663
Stavba
Cihlová
Stav objektu
Před rekonstrukcí
Druh objektu
V bloku
Lokalita objektu
Klidná část obce
Užitná plocha
105 m2
Zastavěná plocha
147 m2
Plocha pozemku
293 m2
Třída energetické náročnosti
G - Mimořádně nehospodárná
Elektřina
230V
Komunikace
Asfaltová
Doprava
Dálnice, Silnice, Autobus
Voda
Studna

Máte zájem o tuto nemovitost?

Tímto, v souladu s nařízením Evropského parlamentu a Rady (EU) 2016/679, v platném znění, prohlašuji, že mi je alespoň 16 let a uděluji tak svůj souhlas se zpracováním zadaných údajů (jméno, telefon, e-mail, ip adresa) společnosti B3 Technology, s.r.o., IČ: 07330600, se sídlem Novostavby 126/23, 435 11 Lom (správce dat), za účelem předání dotazu z tohoto formuláře Vámi vybranému inzerentovi a zpětného kontaktování mé osoby. Osobní údaje bude správce zpracovávat manuálně i automaticky přímo prostřednictvím svých zaměstnanců. Informace předané tímto formulářem budou uloženy v databázi správce maximálně po dobu 10 let. Odvolání souhlasu s uložením a zpracováním poskytnutých dat lze e-mailem na info@realitymat.cz. V případě podezření na neoprávněné použití Vámi poskytnutých údajů máte právo předat podnět k šetření Úřadu pro ochranu osobních údajů. Více informací
Chystáte se prodat nemovitost?
Pomůžeme Vám!

Kontakt

Maria Čerkašina

Maria Čerkašina

Přihlášení k odběru

Nenechte si ujít nejnovější nabídky prodeje rodinných domů v Chrášťanech (okr. Kolín).

Podobné nabídky