Pronájem vily, Praha - Nebušice, Nebušická, 255 m2 (ID: 2076590)

Nebušická, Praha, Nebušice


110 000 Kč /za měsíc
Získejte výhodnou HYPOTÉKU
Regionální dodavatelé v Praze

Stěhovací služby

Výkup a prodej starého nábytku

Popis

ID zakázky: V3555-3

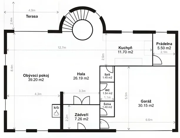
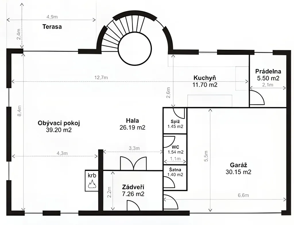
Stylová samostatně stojící vila se nachází v prestižním uzavřeném areálu v pražských Nebušicích. Nabízí obytnou plochu 243 m², dvojgaráž a terasu o rozloze 12 m². K vile náleží soukromá zahrada, jejíž součástí je vyhřívaný bazén o rozměrech 5 x 3,1 x 1,5 m.

V prestižním rezidenčním areálu Villas Šárka o rozloze 5 500 m² je umístěno celkem sedm moderních rodinných vil, z nichž každá nabízí obytnou plochu 243 m², dvougaráž a terasu o velikosti 12 m². Součástí každé vily je i soukromá zahrada s vyhřívaným bazénem, ideální pro odpočinek i aktivní relaxaci.

Vily se čtyřmi ložnicemi jsou navrženy s důrazem na pohodlí a moderní standardy bydlení – nechybí podlahové vytápění ani klimatizace. Vysoký standard bydlení doplňují tři elegantní koupelny a tři toalety, z nichž dvě jsou samostatné.

Plně zařízená kuchyně je vybavena sklokeramickou varnou deskou, horkovzdušnou troubou, myčkou, lednicí s mrazákem a digestoří. Otevřený koncept propojuje kuchyň s prostorným obývacím pokojem, jehož dominantou je krb a přímý vstup na zahradu.

Rezidenční projekt „Villas Šárka“ se nachází v bezprostřední blízkosti prestižní mezinárodní školy The International School of Prague. V okolí je k dispozici kompletní občanská vybavenost – základní a mateřská škola, zdravotní středisko, obchody, sportovní hala, tenisové kurty a golfový klub. Milovníky přírody potěší blízkost chráněné krajinné oblasti Divoká Šárka. Kompletní městskou infrastrukturu nabízí nedaleké centrum Dejvic.

Nájemné je ve výši 110.000,- Kč
K nastěhovaní ihned.

Jelikož není známa energetická třída PENB, v souladu s novelou zákona 406/2000 uvádíme energetickou třídu G.

Pro více informací a sjednání prohlídky kontaktujte prosím realitního makléře.

Cena
110 000 Kč /za měsíc
Aktualizováno
13. 2. 2026
Adresa
Nebušická, Praha, Nebušice
ID
V3555-3
Stavba
Cihlová
Stav objektu
Velmi dobrý
Typ objektu
Patrový
Druh objektu
Samostatný
Užitná plocha
255 m2
Plocha pozemku
780 m2
Třída energetické náročnosti
G - Mimořádně nehospodárná
Garáž
Terasa
Bazén

Máte zájem o tuto nemovitost?

Tímto, v souladu s nařízením Evropského parlamentu a Rady (EU) 2016/679, v platném znění, prohlašuji, že mi je alespoň 16 let a uděluji tak svůj souhlas se zpracováním zadaných údajů (jméno, telefon, e-mail, ip adresa) společnosti B3 Technology, s.r.o., IČ: 07330600, se sídlem Novostavby 126/23, 435 11 Lom (správce dat), za účelem předání dotazu z tohoto formuláře Vámi vybranému inzerentovi a zpětného kontaktování mé osoby. Osobní údaje bude správce zpracovávat manuálně i automaticky přímo prostřednictvím svých zaměstnanců. Informace předané tímto formulářem budou uloženy v databázi správce maximálně po dobu 10 let. Odvolání souhlasu s uložením a zpracováním poskytnutých dat lze e-mailem na info@realitymat.cz. V případě podezření na neoprávněné použití Vámi poskytnutých údajů máte právo předat podnět k šetření Úřadu pro ochranu osobních údajů. Více informací
Chystáte se prodat nemovitost?
Pomůžeme Vám!

Kontakt

Makers Reality

Makers Reality

Přihlášení k odběru

Nenechte si ujít nejnovější nabídky pronájmu vil v Praze.

Podobné nabídky