Prodej bytu 4+1, Znojmo, Jana Palacha, 130 m2

Jana Palacha, Znojmo


7 490 000 Kč /za nemovitost
HYPOTÉKA od 33 476 Kč /měs.

(- včetně právního servisu, provize realitní kanceláři i DPH)


Regionální dodavatelé v Znojmu

Popis

V případě prodeje do konce dubna, je majitel ochoten ještě jednat o ceně!

K prodeji nabízme cihlový byt 4+1, po nákladné rekonstrukci, o celkové ploše 130m2, na ulici Jana Palacha ve Znojmě.

Hlavní benefity bytové jednotky:
- 2025 se budovala nová koupelna se sprchovým koutem, přípojkou na pračku a sušičku a bojlerem
- 2025 se budovalo nové wc s umyvadlem
- 2023 se budovala zcela nová kuchyňská linka do tvaru U se všemi spotřebiči i americkou lednicí
- velká bytová plocha 130m2
- kondenzační plynový kotel
- rekonstruované sklepy, kde si majitel ze svého udělal krásný vinařský koutek

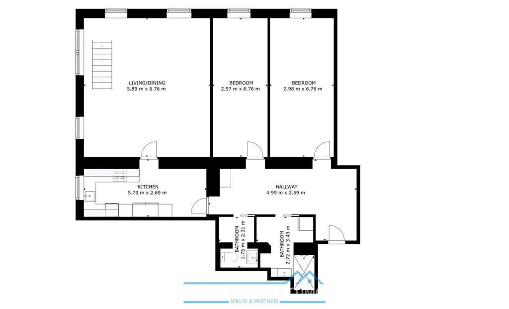
Dispozice bytu sestává z:
a.) prostorná předsíň
b.) pokoj č. 1
c.) pokoj č. 2
d.) koupelna se sprchovým koutem, přípojkou na pračku a sušičku, bojlerem a prostorem pro vestavěnou skříň
e.) nové wc, s umyvadlem
f.) kuchyně s novou kuchyňskou linkou do tvaru U, se všemi spotřebiči
g.) prosvětlený obývací pokoj s jídelním prostorem
h.) pokoj č. 3 - ložnice v patře nad obývacím pokojem

K bytu náleží rekonstruovaný sklep, kde má majitel vinařský koutek.
A dále se s bytem kupuje i podíl na celém bytovém domě, včetně dvora.
Parkování je možné na ulici Jana Palacha.

Pro více informací či termíny prohlídek, kontaktujte pana Ing. Miklíka, volat můžete kdykoliv, včetně víkendů a svátků.

Cena
7 490 000 Kč /za nemovitost Spočítat hypotéku
Poznámka k ceně
- včetně právního servisu, provize realitní kanceláři i DPH
Aktualizováno
24. 3. 2026
Adresa
Jana Palacha, Znojmo
ID
376
Stavba
Cihlová
Stav objektu
Velmi dobrý
Patro
2. z 4
Typ objektu
Patrový
Vlastnictví
Osobní
Užitná plocha
130 m2
Podlahová plocha
130 m2
Elektřina
230V
Plyn
Plynovod
Odpad
Veřejná kanalizace
Topení
Lokální plynové
Komunikace
Asfaltová
Telekomunikace
Internet
Doprava
Silnice, MHD
Voda
Vodovod
Topné těleso
Podlahové vytápění, Radiátory
Zdroj topení
Plynový kondenzační kotel
Sklep
Bezbarierový přístup

Máte zájem o tuto nemovitost?

Tímto, v souladu s nařízením Evropského parlamentu a Rady (EU) 2016/679, v platném znění, prohlašuji, že mi je alespoň 16 let a uděluji tak svůj souhlas se zpracováním zadaných údajů (jméno, telefon, e-mail, ip adresa) společnosti B3 Technology, s.r.o., IČ: 07330600, se sídlem Novostavby 126/23, 435 11 Lom (správce dat), za účelem předání dotazu z tohoto formuláře Vámi vybranému inzerentovi a zpětného kontaktování mé osoby. Osobní údaje bude správce zpracovávat manuálně i automaticky přímo prostřednictvím svých zaměstnanců. Informace předané tímto formulářem budou uloženy v databázi správce maximálně po dobu 10 let. Odvolání souhlasu s uložením a zpracováním poskytnutých dat lze e-mailem na info@realitymat.cz. V případě podezření na neoprávněné použití Vámi poskytnutých údajů máte právo předat podnět k šetření Úřadu pro ochranu osobních údajů. Více informací
Chystáte se prodat nemovitost?
Pomůžeme Vám!

Kontakt

Ing. Mgr. Gabriel  Miklík, MBA, MSc.

Ing. Mgr. Gabriel Miklík, MBA, MSc.

Přihlášení k odběru

Nenechte si ujít nejnovější nabídky prodeje bytů 4+1 v Znojmu.

Podobné nabídky