Prodej bytu 3+1, Přerov, Sušilova, 95 m2

Sušilova, Přerov I-Město


4 600 000 Kč /za nemovitost
HYPOTÉKA od 20 559 Kč /měs.
Regionální dodavatelé v Přerově

Popis

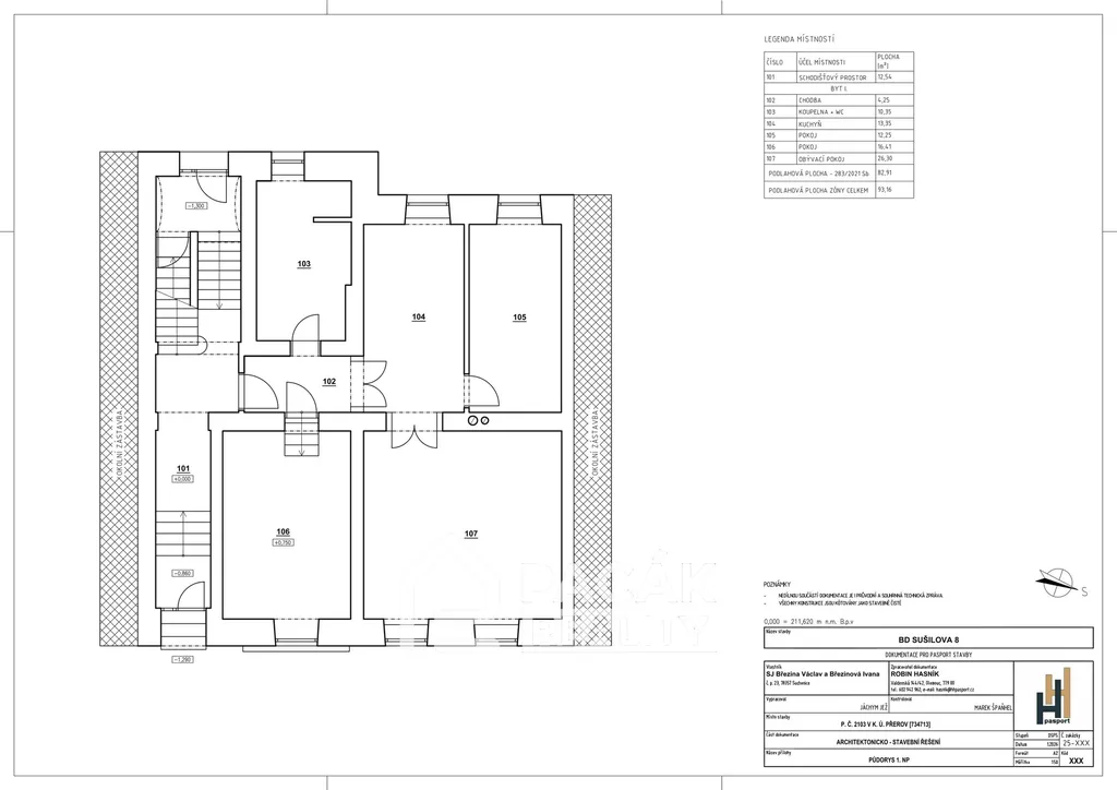
Nabízíme k prodeji krásně a nadstandardně zrekonstruovaný cihlový byt o dispozici 3+1, o celkové výměře 95m2. Bytová jednotka 83m2, sklep 12m2. Byt je situován v oblíbené a žádané části Přerova, na ulici Sušilova, kousek od centra města. Bytová jednotka je umístěna ve zvýšeném přízemí nízkopodlažního domu o čtyřech jednotkách bez výtahu. Jedná se o nadstandardně prostorný, čistý a světlý byt po rekonstrukci, která bylo dokončena v roce 2018. V rámci rekonstrukce byly v celém bytu rozvedeny elektrické rozvody, v celém bytu nové omítky, na zemi plovoucí podlaha. Kuchyňská linka včetně vestavěných spotřebičů - myčka, trouba, digestoř. Moderní koupelna s vanou a sprchovým koutem. V koupelně oceníte především v zimě podlahové topení. Byt působní prostorným a vzdušným dojmem, mj. z důvodu vysokých stropů a křídlových dveří. V suterénu k dispozici společná kolárna a vlastní zděný sklep. Velkou devízou společný pozemek se zastřešeným altánem s posezením za domem, na který navazuje ke každé jednotce vlastní pozemek o výměře cca 70m2 ve výlučném užívání. Na pozemku se můžete realizovat dle svých představ. Veškerá občanská vybavenost v dosahu. Vytápění zánovním plynovým kondenzačním kotlem. Doporučujeme! Pro více informací a domluvení prohlídky nás kontaktujte. Moc neváhejte, jelikož zrekonstruované a prostorné byty se sklepem, vlastní zahradou a navíc v centru města se v nabídce dlouho neohřejí.

Cena
4 600 000 Kč /za nemovitost Spočítat hypotéku
Aktualizováno
11. 2. 2026
Adresa
Sušilova, Přerov I-Město
ID
00766
Stavba
Cihlová
Stav objektu
Po rekonstrukci
Patro
1. z 3
Druh objektu
Řadový
Vlastnictví
Osobní
Užitná plocha
95 m2
Třída energetické náročnosti
G - Mimořádně nehospodárná
Elektřina
230V
Plyn
Plynovod
Odpad
Veřejná kanalizace
Topení
Ústřední plynové
Komunikace
Asfaltová
Telekomunikace
Internet
Doprava
MHD
Voda
Vodovod
Sklep

Máte zájem o tuto nemovitost?

Tímto, v souladu s nařízením Evropského parlamentu a Rady (EU) 2016/679, v platném znění, prohlašuji, že mi je alespoň 16 let a uděluji tak svůj souhlas se zpracováním zadaných údajů (jméno, telefon, e-mail, ip adresa) společnosti B3 Technology, s.r.o., IČ: 07330600, se sídlem Novostavby 126/23, 435 11 Lom (správce dat), za účelem předání dotazu z tohoto formuláře Vámi vybranému inzerentovi a zpětného kontaktování mé osoby. Osobní údaje bude správce zpracovávat manuálně i automaticky přímo prostřednictvím svých zaměstnanců. Informace předané tímto formulářem budou uloženy v databázi správce maximálně po dobu 10 let. Odvolání souhlasu s uložením a zpracováním poskytnutých dat lze e-mailem na info@realitymat.cz. V případě podezření na neoprávněné použití Vámi poskytnutých údajů máte právo předat podnět k šetření Úřadu pro ochranu osobních údajů. Více informací
Chystáte se prodat nemovitost?
Pomůžeme Vám!

Kontakt

Ing. Jiří Pacák

Ing. Jiří Pacák

Přihlášení k odběru

Nenechte si ujít nejnovější nabídky prodeje bytů 3+1 v Přerově.

Tipy Realitymatu

Podobné nabídky