Prodej rodinného domu, Sadov, 160 m2

Sadov


11 500 000 Kč /za nemovitost
HYPOTÉKA od 51 398 Kč /měs.
Regionální dodavatelé v Sadově

Pojištění a finance

Popis

Nabízíme k prodeji moderní novostavbu bungalovu 4+kk, který situován v klidné obytné lokalitě v blízkosti lesa a 7 minut do Karlových Varů, jenž poskytuje ideální možnosti pro rodinné bydlení. Pozemek o velikosti 690 m2 nabízí dost prostoru pro realizaci vysněné zahrady.
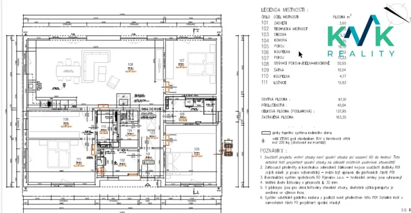
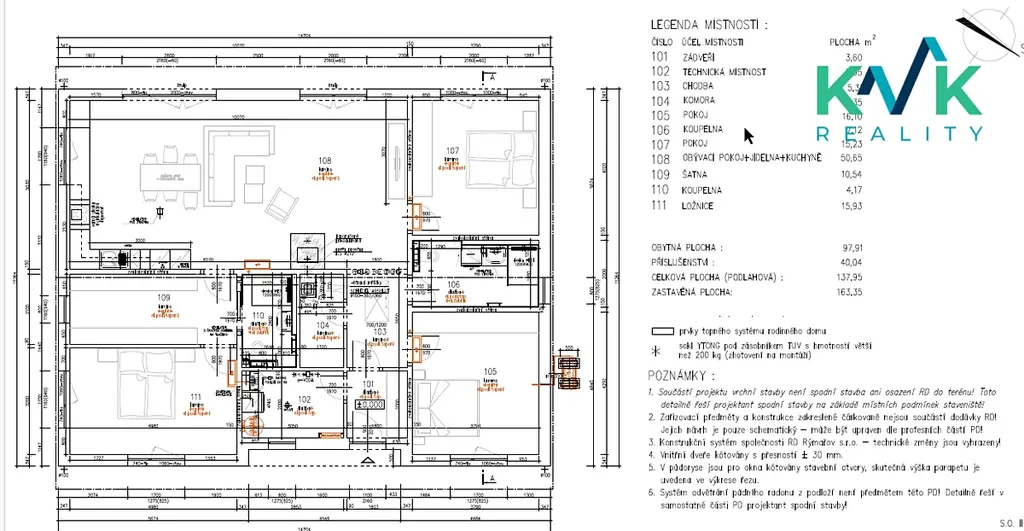
Dům 4kk s užitnou plochou 160 m2 je řešen prakticky, vybaven kvalitními materiály a moderními technologiemi. Splňuje nároky na energetickou úspornost s certifikací A. Dispozice této nemovitosti je řešená velmi intuitivně. Z předsíně se po pravé straně nachází technická místnost, kde je srdce domu se zabudovanou fotovoltaikou jako zdroj tepla a také bojler. Vedle se nachází spíž pro uložení potravin. Naproti je první pokoj, který sousedí s koupenou. Dále po pravé straně poskytuje pohodlí s výhledem do zahrady druhý pokoj. Společenská místnost s krbovými kamny (výkon 12-14 kW), klimatizací a prostorem pro kuchyňskou linku je situovaná na jižní stranu. Celý tento prostor má dva vstupy na zahradu. Podlahy ve společenské místnosti jsou pokryté vinylem o tloušťce 1 cm, v ložnicích se projdeme po laminátu o tloušťce 1 cm a v technických místnostech se nachází dlažba. V celém domě je položeno pro podlahové topení (folie a kabel) a zabudované termostaty ovládané přes Wi-Fi, jenž zajišťuje příjemné teplo v každém ročním období. Topení je doplněno klimatizací, která nabízí jak chlazení, tak vytápění, což přispívá k maximálnímu komfortu bydlení.
K ohřevu vody slouží elektrický bojler o objemu 250 litrů, což zajišťuje dostatek teplé vody pro celou rodinu. V obývací části se nacházejí krbová kamna, která dodávají domu příjemnou atmosféru a dodatečné teplo během chladnějších měsíců.
Dům je osazen solárními panely o výkonu 8 kW se záložní baterií na 12 kW k uložení nebo na prodej, které umožňují využívat sluneční energii a tím snižovat náklady na elektrickou energii. Bezpečnostní systém zahrnuje alarm ovládaný též dálkově.
V pěší vzdálenosti se nachází obecní úřad, kulturní dům, MŠ, ZŠ 1.st., obchod s potravinami, pošta.
Tato nemovitost je ideálním místem pro ty, kteří hledají komfortní a moderní bydlení v přírodě a zároveň pár minut do města s vysoce efektivním provozem.
V případě zájmu o prohlídku nás neváhejte kontaktovat.

Cena
11 500 000 Kč /za nemovitost Spočítat hypotéku
Aktualizováno
25. 3. 2026
Adresa
Sadov
ID
0399
Stavba
Montovaná
Stav objektu
Velmi dobrý
Vybaveno
Ne
Druh objektu
Samostatný
Lokalita objektu
Klidná část obce
Užitná plocha
160 m2
Zastavěná plocha
163 m2
Podlahová plocha
160 m2
Plocha pozemku
690 m2
Plocha zahrady
527 m2
Třída energetické náročnosti
A - Mimořádně úsporná
Elektřina
230V
Plyn
Plynovod
Odpad
Veřejná kanalizace
Komunikace
Asfaltová
Telekomunikace
Internet, Kabelové rozvody
Doprava
Vlak, Silnice, MHD, Autobus
Voda
Vodovod
Topné těleso
Podlahové vytápění, Krbová kamna
Zdroj topení
Krbová kamna, Jiné
Zdroj teplé vody
Bojler - elektro
Parkování

Máte zájem o tuto nemovitost?

Tímto, v souladu s nařízením Evropského parlamentu a Rady (EU) 2016/679, v platném znění, prohlašuji, že mi je alespoň 16 let a uděluji tak svůj souhlas se zpracováním zadaných údajů (jméno, telefon, e-mail, ip adresa) společnosti B3 Technology, s.r.o., IČ: 07330600, se sídlem Novostavby 126/23, 435 11 Lom (správce dat), za účelem předání dotazu z tohoto formuláře Vámi vybranému inzerentovi a zpětného kontaktování mé osoby. Osobní údaje bude správce zpracovávat manuálně i automaticky přímo prostřednictvím svých zaměstnanců. Informace předané tímto formulářem budou uloženy v databázi správce maximálně po dobu 10 let. Odvolání souhlasu s uložením a zpracováním poskytnutých dat lze e-mailem na info@realitymat.cz. V případě podezření na neoprávněné použití Vámi poskytnutých údajů máte právo předat podnět k šetření Úřadu pro ochranu osobních údajů. Více informací
Chystáte se prodat nemovitost?
Pomůžeme Vám!
Theleadway banner

Kontakt

Bc. Petra Vajnerová

Bc. Petra Vajnerová

Přihlášení k odběru

Nenechte si ujít nejnovější nabídky prodeje rodinných domů v Sadově.

Podobné nabídky