Pronájem bytu 2+1, Praha - Nové Město, Pod Slovany, 59 m2

Pod Slovany, Praha 2


22 000 Kč /za měsíc
Získejte výhodnou HYPOTÉKU

(+popl. 4795, převod elektřiny a plynu na nájemce, + provize RK)


Regionální dodavatelé v Praze 2

Stěhovací služby

Výkup a prodej starého nábytku

Popis

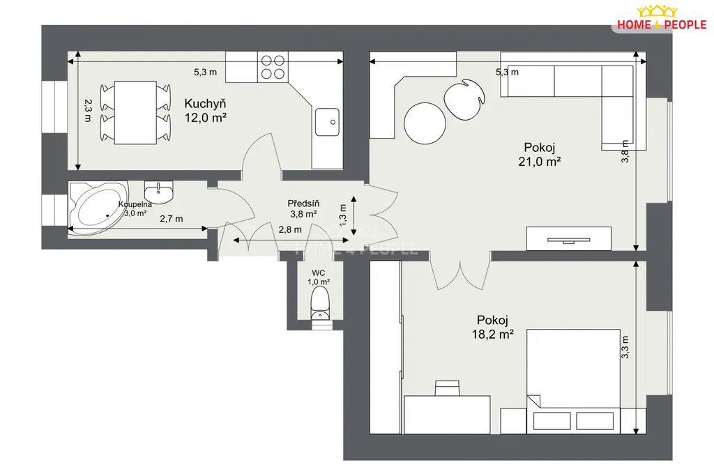
Zprostředkujeme Vám ve výhradním zastoupení majitele dlouhodobý pronájem prostorného bytu 2+1 o velikosti 59m². Byt se nachází ve druhém patře v historického činžovního domu bez výtahu. Kuchyňská linka je vybavena pouze plynovým sporákem. Možnost zabudování myčky. Obývací pokoj a ložnice jsou bez vybavení. V koupelně je prostorná rohová vana, WC je zvlášť. Vytápění je zajištěno novým plynovým kotlem Bosch. Orientace bytu je na západ – ložnice a obývací pokoj, kuchyň je na východ.
V okolí je občanská vybavenost. Klidná ulice pár kroků od Pražské náplavky na nábřeží.
V blízkosti domu je zastávka TRAM na Rašínově Nábřeží, 5.minut pěšky metro Palackého Náměstí.
V této tradiční rezidenční lokalitě najdete také síť obchodů a služeb, mateřskou i základní školu i zdravotnické zařízení.
Neváhejte mě kontaktovat pro více informací nebo prohlídku. Byt je volný ihned k nastěhování. Poplatky za energie – převod na nájemce (elektřina cca 1500,-Kč a plyn cca 2500,-kč), voda, popelnice, úklid 795,-Kč/ 1 osoba. Pronajímatel si vyhrazuje právo vybrat zájemce na základě jím zvolených kritérií. Byt je vhodný pro jednu osobu či pár. Preferujeme nekuřáky. Na všechny emaily bude odpovězeno, prosím kontrolu složky spam. Budu se těšit na prohlídce. Ev. číslo: 32094.

Cena
22 000 Kč /za měsíc
Poznámka k ceně
+popl. 4795, převod elektřiny a plynu na nájemce, + provize RK
Aktualizováno
30. 1. 2026
Adresa
Pod Slovany, Praha 2
ID
32094
Stavba
Cihlová
Stav objektu
Dobrý
Patro
2. z 4
Vlastnictví
Družstevní
Užitná plocha
59 m2
Podlahová plocha
59 m2
Třída energetické náročnosti
G - Mimořádně nehospodárná
Ukazatel energetické náročnosti
1 kWh/m2 za rok

Máte zájem o tuto nemovitost?

Tímto, v souladu s nařízením Evropského parlamentu a Rady (EU) 2016/679, v platném znění, prohlašuji, že mi je alespoň 16 let a uděluji tak svůj souhlas se zpracováním zadaných údajů (jméno, telefon, e-mail, ip adresa) společnosti B3 Technology, s.r.o., IČ: 07330600, se sídlem Novostavby 126/23, 435 11 Lom (správce dat), za účelem předání dotazu z tohoto formuláře Vámi vybranému inzerentovi a zpětného kontaktování mé osoby. Osobní údaje bude správce zpracovávat manuálně i automaticky přímo prostřednictvím svých zaměstnanců. Informace předané tímto formulářem budou uloženy v databázi správce maximálně po dobu 10 let. Odvolání souhlasu s uložením a zpracováním poskytnutých dat lze e-mailem na info@realitymat.cz. V případě podezření na neoprávněné použití Vámi poskytnutých údajů máte právo předat podnět k šetření Úřadu pro ochranu osobních údajů. Více informací
Chystáte se prodat nemovitost?
Pomůžeme Vám!

Kontakt

Martina Novotná (Voslářová)

Martina Novotná (Voslářová)

Přihlášení k odběru

Nenechte si ujít nejnovější nabídky pronájmu bytů 2+1 v Praze 2.

Podobné nabídky