Prodej bytu 5+1, Teplice, Jungmannova, 164 m2

Jungmannova, Teplice


5 850 000 Kč /za nemovitost
HYPOTÉKA od 26 146 Kč /měs.
Regionální dodavatelé v Teplicích

Okna a dveře

Rekonstrukce

Popis

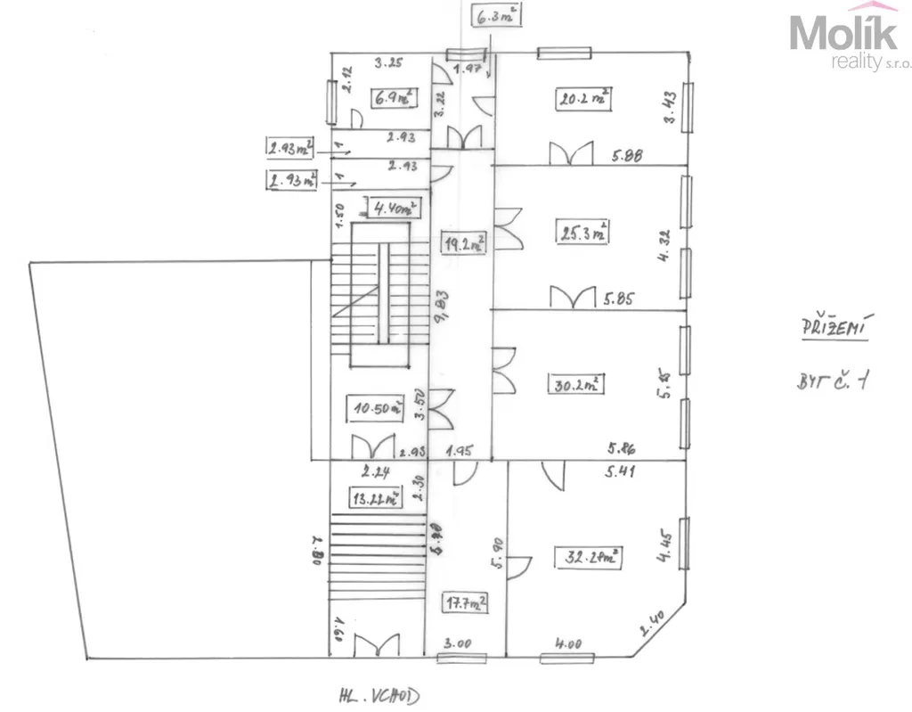
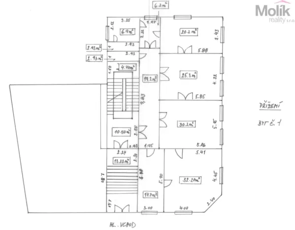
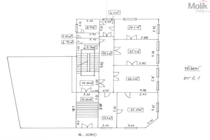
Nabízíme na prodej byt 5+1 v osobním vlastnictví.
Byt se nachází v přízemí (1.NP) historického bytového domu v lázeňské části Teplic, ul. Jungmannova o výměře 164 m2.
Byt je v původním stavu. Určený k rekonstrukci.
Dům prochází rozsáhlou rekonstrukcí, včetně nové fasády, která bude dokončena do 6 měsíců (viz vizualizace). Veškeré náklady na rekonstrukci jsou již zahrnuty v ceně a hradí je současný majitel, nový majitel se na nich finančně nepodílí.
Nastěhování je možné ihned.
V tomto domě je k prodeji více bytových jednotek.
Veškerá občanská vybavenost v blízkosti.
Možno financovat jinou nemovitostí na protiúčet (dům, byt, zahrada, garáž).
Více informací u uvedeného makléře 7 dní v týdnu.

Cena
5 850 000 Kč /za nemovitost Spočítat hypotéku
Aktualizováno
30. 1. 2026
Adresa
Jungmannova, Teplice
ID
MR14724
Stavba
Cihlová
Stav objektu
Dobrý
Patro
1. z 4
Typ objektu
Patrový
Vlastnictví
Osobní
Užitná plocha
164 m2
Podlahová plocha
164 m2
Bezbarierový přístup

Máte zájem o tuto nemovitost?

Tímto, v souladu s nařízením Evropského parlamentu a Rady (EU) 2016/679, v platném znění, prohlašuji, že mi je alespoň 16 let a uděluji tak svůj souhlas se zpracováním zadaných údajů (jméno, telefon, e-mail, ip adresa) společnosti B3 Technology, s.r.o., IČ: 07330600, se sídlem Novostavby 126/23, 435 11 Lom (správce dat), za účelem předání dotazu z tohoto formuláře Vámi vybranému inzerentovi a zpětného kontaktování mé osoby. Osobní údaje bude správce zpracovávat manuálně i automaticky přímo prostřednictvím svých zaměstnanců. Informace předané tímto formulářem budou uloženy v databázi správce maximálně po dobu 10 let. Odvolání souhlasu s uložením a zpracováním poskytnutých dat lze e-mailem na info@realitymat.cz. V případě podezření na neoprávněné použití Vámi poskytnutých údajů máte právo předat podnět k šetření Úřadu pro ochranu osobních údajů. Více informací
Chystáte se prodat nemovitost?
Pomůžeme Vám!

Kontakt

Radek  Molík

Radek Molík

Přihlášení k odběru

Nenechte si ujít nejnovější nabídky prodeje bytů 5+1 v Teplicích.

Podobné nabídky