Remax Monarcha

Prodej bytu 2+kk, Olomouc, Masarykova třída, 51 m2

Masarykova třída, Olomouc, Hodolany


4 220 000 Kč /za nemovitost
HYPOTÉKA od 18 861 Kč /měs.
Regionální dodavatelé v Olomouci

Popis

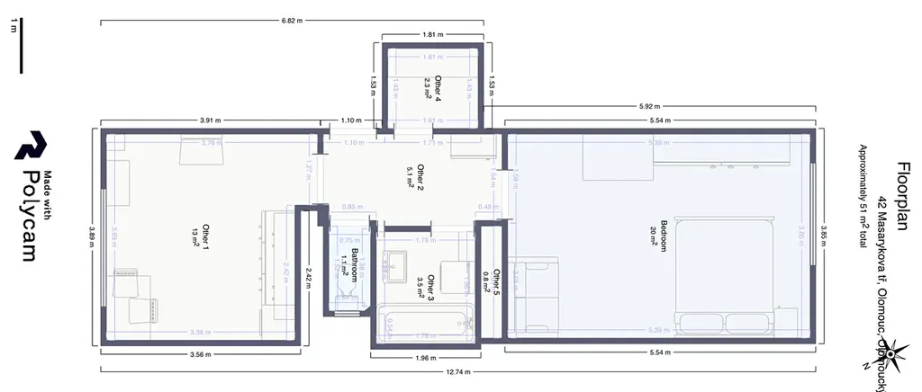
Prodej bytu 2kk 51m2 v Olomouci na ul. Masarykova!

Nabízíme k prodeji prostorný byt o dispozici 1+1 s možností snadné přestavby na 2KK díky velkorysé výměře 51 m. Byt se nachází ve druhém patře cihlového domu na prestižní adrese Masarykova 42.

Klíčové vlastnosti:

Lokalita: Perfektní dostupnost do centra Olomouce, na Hlavní nádraží , obchody a restaurace na dosah ruky .
Doprava: Skvělá dopravní dostupnost v blízkosti se nachází zastávky tramvají a autobusů .
Investiční příležitost: Byt je ideální jak pro vlastní bydlení, tak jako investice k pronájmu.
Lokalita: V této vyhledávané lokalitě je na prodej velmi málo bytů, což zvyšuje atraktivitu této nabídky.
Náklady na bydlení: voda, fond , úklid + osvětlení společ. prostor 2200,- Kč, elektřina 2000,- Kč, plyn 1200,- Kč
Tento byt představuje jedinečnou příležitost pro ty, kteří hledají klidné bydlení s rychlým přístupem do centra města. Nezmeškejte tuto šanci a domluvte si prohlídku ještě dnes!

Pro více informací nás neváhejte kontaktovat.

Cena
4 220 000 Kč /za nemovitost Spočítat hypotéku
Aktualizováno
28. 1. 2026
Adresa
Masarykova třída, Olomouc, Hodolany
ID
127
Stavba
Cihlová
Stav objektu
Dobrý
Patro
2. z 5
Vlastnictví
Osobní
Užitná plocha
51 m2
Podlahová plocha
51 m2
Elektřina
230V
Plyn
Plynovod
Odpad
Veřejná kanalizace
Topení
Ústřední plynové
Komunikace
Asfaltová
Doprava
Vlak, Silnice, Autobus
Voda
Vodovod
Topné těleso
WAW
Bezbarierový přístup

Máte zájem o tuto nemovitost?

Tímto, v souladu s nařízením Evropského parlamentu a Rady (EU) 2016/679, v platném znění, prohlašuji, že mi je alespoň 16 let a uděluji tak svůj souhlas se zpracováním zadaných údajů (jméno, telefon, e-mail, ip adresa) společnosti B3 Technology, s.r.o., IČ: 07330600, se sídlem Novostavby 126/23, 435 11 Lom (správce dat), za účelem předání dotazu z tohoto formuláře Vámi vybranému inzerentovi a zpětného kontaktování mé osoby. Osobní údaje bude správce zpracovávat manuálně i automaticky přímo prostřednictvím svých zaměstnanců. Informace předané tímto formulářem budou uloženy v databázi správce maximálně po dobu 10 let. Odvolání souhlasu s uložením a zpracováním poskytnutých dat lze e-mailem na info@realitymat.cz. V případě podezření na neoprávněné použití Vámi poskytnutých údajů máte právo předat podnět k šetření Úřadu pro ochranu osobních údajů. Více informací
Chystáte se prodat nemovitost?
Pomůžeme Vám!

Kontakt

Roman Láner

Roman Láner

Přihlášení k odběru

Nenechte si ujít nejnovější nabídky prodeje bytů 2+kk v Olomouci.

Podobné nabídky