Pronájem bytu 2+1, Ústí nad Labem, U Nemocnice, 90 m2

U Nemocnice, Ústí nad Labem-centrum


16 000 Kč /za měsíc
Získejte výhodnou HYPOTÉKU

(Zálohy na vodu 1 400 Kč pro dvě osoby, plyn (topení a ohřev TUV) a elektřina se přepisují na nájemce.)


Regionální dodavatelé v Ústí nad Labem

Okna a dveře

Rekonstrukce

Popis

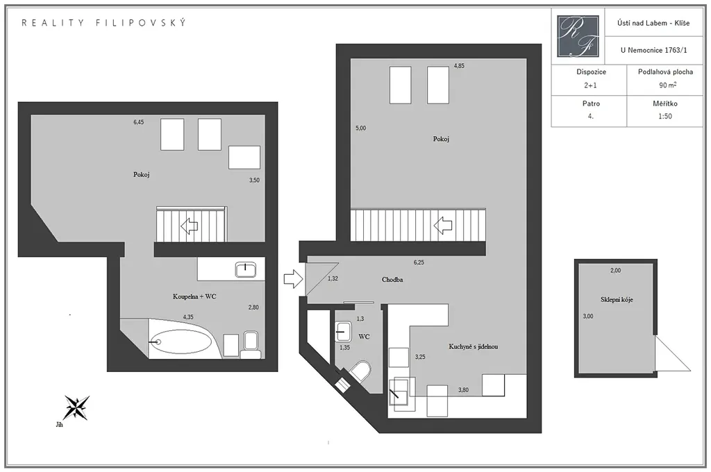
Dovoluji si Vám nabídnout výjimečný mezonetový byt 2+1 (2x WC) s podlahovou plochou 90 m2, který se nachází v nejžádanější ústecké lokalitě na rozhraní čtvrtí Klíše a Ústí nad Labem-centrum, v těsném sousedství oblíbeného městského parku s rozlohou téměř 65 000 m2.

Bytová jednotka vznikla zdařilou adaptací části půdního prostoru s přiznáním jeho konstrukčních prvků, které poskytují tomuto bydlení zcela jedinečný charakter. Stávající dispoziční řešení klade důraz na pocit vzdušnosti celého interiéru, což se mu dokonale daří. Nedávno byl v bytě instalován nový plynový kotel s chytrou regulací.

Byt je vybaven kuchyňskou linkou se spotřebiči a koupelnovým vybavením. Volně stojící nábytek není součástí nájmu.

Nájemné činí 16 000 Kč/měs. Zálohy na vodu 1 200 Kč pro dvě osoby, plyn (topení a ohřev TUV) a elektřina se přepisují na nájemce. Kauce 25 000 Kč, provize RK 10 000 Kč.

Budu se těšit na setkání s Vámi.

PENB připravujeme, proto je dočasně uvedena třída G.

Cena
16 000 Kč /za měsíc
Poznámka k ceně
Zálohy na vodu 1 400 Kč pro dvě osoby, plyn (topení a ohřev TUV) a elektřina se přepisují na nájemce.
Aktualizováno
22. 1. 2026
Adresa
U Nemocnice, Ústí nad Labem-centrum
ID
629
Stavba
Cihlová
Stav objektu
Velmi dobrý
Patro
5.
Vybaveno
Částečně
Vlastnictví
Osobní
Užitná plocha
90 m2
Třída energetické náročnosti
G - Mimořádně nehospodárná
Elektřina
230V
Plyn
Plynovod
Odpad
Veřejná kanalizace
Voda
Vodovod
Topné těleso
Radiátory
Zdroj topení
Plynový kondenzační kotel
Zdroj teplé vody
Plynový kondenzační kotel
Sklep
Výtah
Bezbarierový přístup

Máte zájem o tuto nemovitost?

Tímto, v souladu s nařízením Evropského parlamentu a Rady (EU) 2016/679, v platném znění, prohlašuji, že mi je alespoň 16 let a uděluji tak svůj souhlas se zpracováním zadaných údajů (jméno, telefon, e-mail, ip adresa) společnosti B3 Technology, s.r.o., IČ: 07330600, se sídlem Novostavby 126/23, 435 11 Lom (správce dat), za účelem předání dotazu z tohoto formuláře Vámi vybranému inzerentovi a zpětného kontaktování mé osoby. Osobní údaje bude správce zpracovávat manuálně i automaticky přímo prostřednictvím svých zaměstnanců. Informace předané tímto formulářem budou uloženy v databázi správce maximálně po dobu 10 let. Odvolání souhlasu s uložením a zpracováním poskytnutých dat lze e-mailem na info@realitymat.cz. V případě podezření na neoprávněné použití Vámi poskytnutých údajů máte právo předat podnět k šetření Úřadu pro ochranu osobních údajů. Více informací
Chystáte se prodat nemovitost?
Pomůžeme Vám!

Kontakt

Marek Filipovský - certifikovaný obchodník s nemovitostmi

Marek Filipovský - certifikovaný obchodník s nemovitostmi

Přihlášení k odběru

Nenechte si ujít nejnovější nabídky pronájmu bytů 2+1 v Ústí nad Labem.

Podobné nabídky