Pronájem bytu 3+kk, Hradec Králové, Přemyslova, 53 m2

Přemyslova, Nový Hradec Králové


18 800 Kč /za měsíc
Získejte výhodnou HYPOTÉKU
Regionální dodavatelé v Hradci Králové

Popis

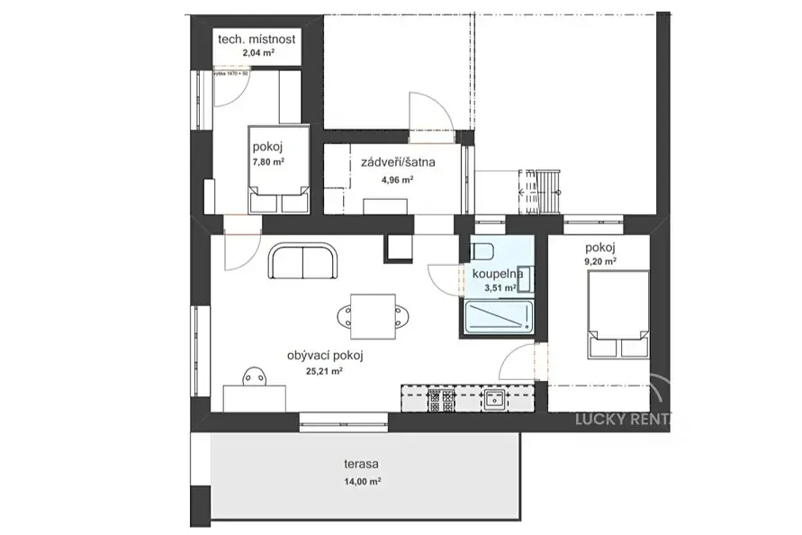
Máme pro Vás jedinečnou nabídku pronájmu rodinného domu na Novém Hradci. Skvělá adresa, naprostý klid, a to vše kousek od centra města. Bydlení je také vhodné pro studenty. Pokud Vás tato nabídka zaujala, čtěte dále.
Rodinný dům prošel kompletní rekonstrukcí. Vytápění domu je řešeno pomocí moderního tepelného čerpadla.

Vybavení nemovitosti:
Kuchyňská linka včetně spotřebičů (lednice s mrazákem, myčka nádobí, varná deska, elektrická trouba a digestoř). V kuchyňské lince je navíc zabudována pračka v jedné ze spodních skříněk.
Obývací pokoj s psacím stolem, jídelním stolem a židlemi, pohovka.
Ložnice 1 s vestavěnou skříní a dvojlůžkem.
Ložnice 2 s komodou, knihovnou a dvojlůžkem (možnost zúžení na jednolůžko).
Obývací pokoj s psacím stolem, jídelním stolem a židlemi.
Koupelna s moderním walk-in sprchovým koutem, umyvadlem a závěsnou toaletou.
K domu náleží menší terasa orientovaná na jižní stranu vhodná pro umístění venkovního posezení.
Parkování možné na ulici.

Lokalita:
Nový Hradec Králové patří mezi nejžádanější rezidenční lokality ve městě a nabízí ideální spojení klidného bydlení, zeleně a výborné dostupnosti do centra. V okolí najdete kompletní občanskou vybavenost, školy, školky, obchody i možnosti sportovního a rekreačního vyžití, přičemž lokalita si zachovává příjemnou a klidnou atmosféru. Blízkost přírody, dobré dopravní spojení a dlouhodobě stabilní charakter čtvrti z ní dělají místo, kde se pohodlně bydlí a které má hodnotu i do budoucna.

Podmínky:
Měsíční nájemné činí 18 800 Kč.
Měsíční paušální poplatky činí 5 000 Kč (teplo, studená voda, teplá voda, elektřina, odpad, internet, odpad, internet)
Vratná kauce: 50 000 Kč.
Provize: 18 800 Kč + 21 % DPH.

Hledáme spolehlivého nájemníka, který bude k bytu přistupovat s respektem a péčí, jako by šlo o jeho vlastní domov, a bude usilovat o zachování jeho současného stavu nejen kvůli majitelům, ale i sobě pro příjemné bydlení.
Majitel na oplátku nabízí férový, vstřícný a korektní přístup.
K nastěhování ihned.

Dávají Vám uvedené informace, adresa, 3D prohlídka a fotografie smysl? Pokud ano, kontaktujte realitního makléře a domluvte si osobní prohlídku.

Cena
18 800 Kč /za měsíc
Aktualizováno
10. 3. 2026
Adresa
Přemyslova, Nový Hradec Králové
ID
A02105
Stavba
Cihlová
Stav objektu
Velmi dobrý
Patro
1.
Vybaveno
Ano
Lokalita objektu
Klidná část obce
Vlastnictví
Osobní
Užitná plocha
53 m2
Podlahová plocha
67 m2
Topení
Podlahové
Zdroj topení
Tepelné čerpadlo
Terasa
Výtah

Máte zájem o tuto nemovitost?

Tímto, v souladu s nařízením Evropského parlamentu a Rady (EU) 2016/679, v platném znění, prohlašuji, že mi je alespoň 16 let a uděluji tak svůj souhlas se zpracováním zadaných údajů (jméno, telefon, e-mail, ip adresa) společnosti B3 Technology, s.r.o., IČ: 07330600, se sídlem Novostavby 126/23, 435 11 Lom (správce dat), za účelem předání dotazu z tohoto formuláře Vámi vybranému inzerentovi a zpětného kontaktování mé osoby. Osobní údaje bude správce zpracovávat manuálně i automaticky přímo prostřednictvím svých zaměstnanců. Informace předané tímto formulářem budou uloženy v databázi správce maximálně po dobu 10 let. Odvolání souhlasu s uložením a zpracováním poskytnutých dat lze e-mailem na info@realitymat.cz. V případě podezření na neoprávněné použití Vámi poskytnutých údajů máte právo předat podnět k šetření Úřadu pro ochranu osobních údajů. Více informací
Chystáte se prodat nemovitost?
Pomůžeme Vám!

Kontakt

Martina Vlčková

Martina Vlčková

Přihlášení k odběru

Nenechte si ujít nejnovější nabídky pronájmu bytů 3+kk v Hradci Králové.

Podobné nabídky