Prodej bytu 2+kk, Nučice, U zastávky, 60 m2 (ID: 2056567)

U zastávky, Nučice


8 680 000 Kč /za nemovitost
HYPOTÉKA od 38 794 Kč /měs.

(vč. provize RK)


Regionální dodavatelé v Nučicích

Popis

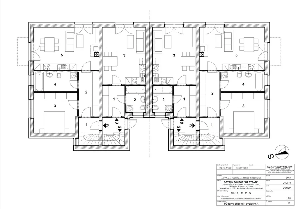
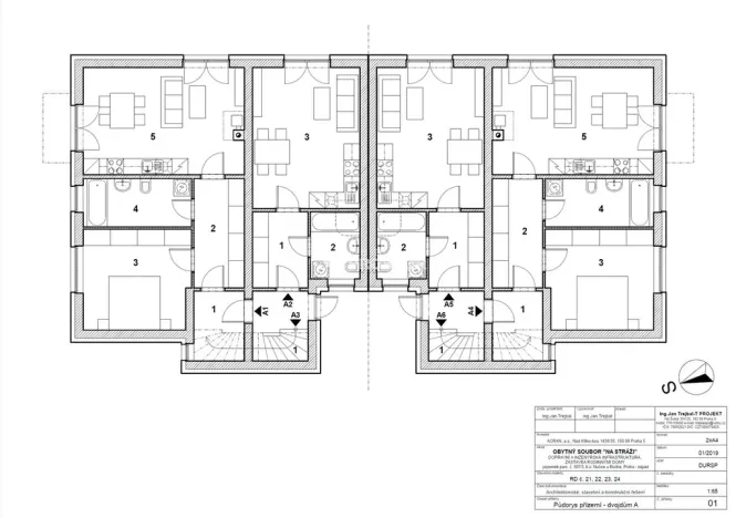
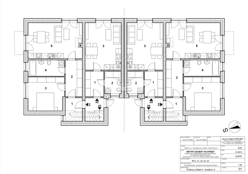
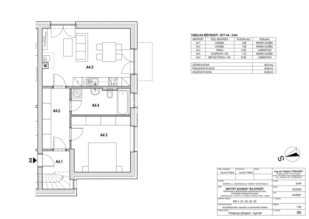
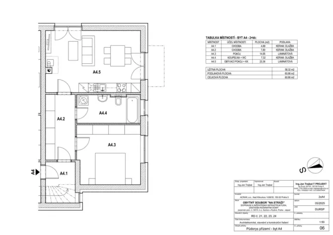
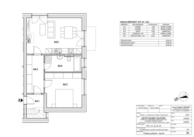
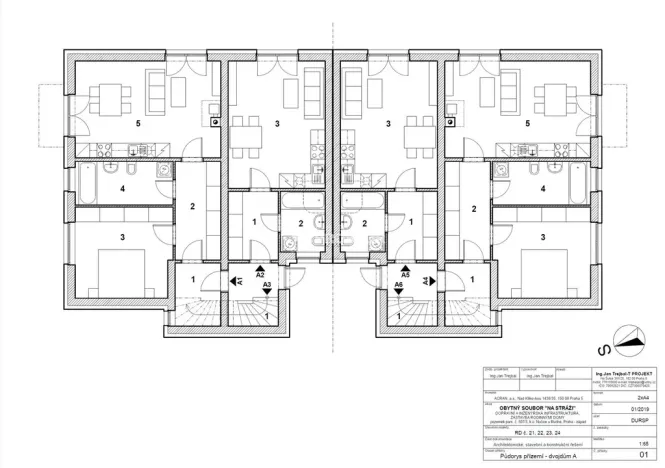
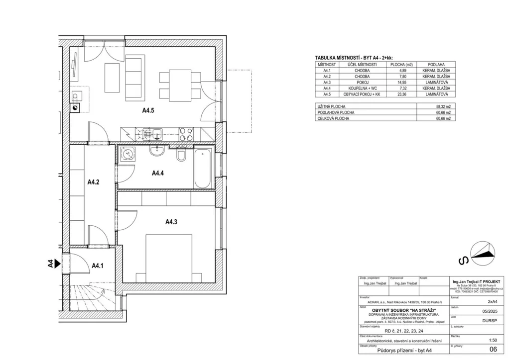
Exkluzivně nabízíme prodej bytu 2+kk, 60,66m2 v krásné lokalitě u lesa, ul. Na Stráži, Nučice u Rudné, v nově rostoucí rezidenční lokalitě "Na Stráži". Tento přízemní byt 2+kk, 60,66m2 s vlastní předzahrádkou cca 150m2 a vyhrazeným parkováním před domem svou velkorysou dispozicí nabízí světlý obývací pokoj s kuchyňským koutem o velikosti 23,36m2, ložnici 14,95m2, koupelna s WC 7,32m2, a ostatním zázemím. Dokončení 4Q/2026.
Dům ve kterém se bytová jednotka nachází je v krásné lokalitě Na Stráži, Nučice, je to nově vznikající rezidenční čtvrt s vlastním zázemím, s převažující zástavbou rodinnými domy, kde je kladený velký důraz na komfort a klidné bydlení u lesa.
Nučice u Rudné (Praha – západ) se díky své poloze se staly velice žádanou lokalitou, a to nejen pro svou výbornou dopravní dostupnost, ale také bohatou občanskou vybavenost. Nučice a nedaleké město Rudná nabízejí bydlení v krásné přírodě, přesto však s veškerým komfortem a splněnými požadavky na aktivní život v této moderní době. Najdete zde mateřskou a základní školu, zdravotní středisko, zubní ordinaci, sportovní centra (moderní jízdárnu, kuželková dráha, areál pro frisbee, dva fotbalové stadiony, squash, tenis, plážový volejbal, minigolf, fitness, solárium, masáže atd.), poštu, obchody, restaurace a mnoho dalších služeb. Nučice jsou zároveň vstupní branou do kouzelných lesů Berounska, které lákají k vyjížďkám na kole po okolních cyklostezkách, nebo na rodinné výlety a pěší turistiku po krásných okolních místech jako je např. přírodní park Povodí Kačáku. Nedaleko se nachází i zatopený lom Amerika, hrad Karlštejn nebo romantické údolí řeky Berounky. Nučice a jejich okolí je místem jako stvořeným pro klidné bydlení, tak i výchovu Vašich dětí, nebo sport či relaxaci. K velkým nákupům můžete z Nučic vyrazit do blízkého komplexu, kterým je obchodní a zábavní centrum Zličín.
Doporučuji prohlídku vzorového domu, kde Vám rádi poskytneme veškeré další informace a možnosti.

Cena
8 680 000 Kč /za nemovitost Spočítat hypotéku
Poznámka k ceně
vč. provize RK
Aktualizováno
29. 3. 2026
Adresa
U zastávky, Nučice
ID
11626
Stavba
Cihlová
Stav objektu
Novostavba
Patro
1. z 2
Lokalita objektu
Klidná část obce
Vlastnictví
Osobní
Užitná plocha
60 m2
Podlahová plocha
61 m2
Třída energetické náročnosti
B - Velmi úsporná

Máte zájem o tuto nemovitost?

Tímto, v souladu s nařízením Evropského parlamentu a Rady (EU) 2016/679, v platném znění, prohlašuji, že mi je alespoň 16 let a uděluji tak svůj souhlas se zpracováním zadaných údajů (jméno, telefon, e-mail, ip adresa) společnosti B3 Technology, s.r.o., IČ: 07330600, se sídlem Novostavby 126/23, 435 11 Lom (správce dat), za účelem předání dotazu z tohoto formuláře Vámi vybranému inzerentovi a zpětného kontaktování mé osoby. Osobní údaje bude správce zpracovávat manuálně i automaticky přímo prostřednictvím svých zaměstnanců. Informace předané tímto formulářem budou uloženy v databázi správce maximálně po dobu 10 let. Odvolání souhlasu s uložením a zpracováním poskytnutých dat lze e-mailem na info@realitymat.cz. V případě podezření na neoprávněné použití Vámi poskytnutých údajů máte právo předat podnět k šetření Úřadu pro ochranu osobních údajů. Více informací
Chystáte se prodat nemovitost?
Pomůžeme Vám!

Kontakt

Iveta Krušinová

Iveta Krušinová

Přihlášení k odběru

Nenechte si ujít nejnovější nabídky prodeje bytů 2+kk v Nučicích (okr. Praha-západ).

Tipy Realitymatu

Podobné nabídky