Prodej bytu 2+kk, Praha - Ruzyně, Stočesova, 57 m2

Stočesova, Praha, Ruzyně


5 400 000 Kč /za nemovitost
HYPOTÉKA od 24 135 Kč /měs.

(včetně provize, včetně právního servisu)


Regionální dodavatelé v Praze

Stěhovací služby

Výkup a prodej starého nábytku

Popis

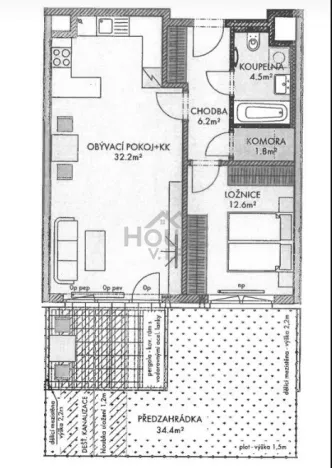
Nabízíme Vám postoupení družstevního bytu 2+KK o výměře 57,3 m2 s předzahrádkou 34,4 m2 ve 1. nadzemním podlaží cihlové novostavby moderní Rezidenci U Šárky, Stočesova ul., Praha 6 - Ruzyně.

K bytu náleží garážové stání a sklep nacházející se v suterénu domu.

Částka za postoupení je 5.400.000,- Kč. Zbývající anuita je ve výši 6.000.000,- Kč. Celková cena 11.400.000,- Kč.

Vzhledem k tomu, že se jedná o družstevní byt, cenu splácíte formou nájmu. Neprokazujete výši příjmu, nepotřebujete hypoteční úvěr a byt je možné převést do osobního vlastnictví kdykoli v průběhu splacení anuity. Anuitu můžete samozřejmě také kdykoli doplatit a byt si převést do osobního vlastnictví.

Vzhledem k aktuálnímu navýšení úrokových sazeb na hypotečním trhu, nabízí anuitní splácení nemovitosti výhodnější financování. (Sazba je 4,5% s fixací na 5 let).

Byt je v současné době lukrativně pronajat.

Byt je orientovaný na východ s výhledem do zeleně.

V docházkové vzdálenosti je mnoho možností k relaxaci a sportu - přírodní rezervace Divoká Šárka a Obora Hvězda. Výborné dopravní spojení do města, 3 min. na MHD, 12 min. metro "A", zast. Nádraží Veleslavín, na Letiště Václava Havla Praha jen 9 min.

Atraktivní bydlení doplňuje skvělá poloha domu, v přímé blízkosti se nachází veškerá občanská vybavenost včetně škol, školek, lékařů, obchodů a restaurací - jen 5 min, v blízké vzdálenosti je OC Šestka.

Doporučujeme.

Cena
5 400 000 Kč /za nemovitost Spočítat hypotéku
Poznámka k ceně
včetně provize, včetně právního servisu
Aktualizováno
13. 1. 2026
Adresa
Stočesova, Praha, Ruzyně
ID
01202
Stavba
Smíšená
Stav objektu
Novostavba
Patro
1. z 5
Vybaveno
Částečně
Druh objektu
Samostatný
Lokalita objektu
Klidná část obce
Vlastnictví
Družstevní
Užitná plocha
57 m2
Podlahová plocha
92 m2
Plocha zahrady
34 m2
Třída energetické náročnosti
G - Mimořádně nehospodárná
Elektřina
230V
Doprava
Silnice, MHD, Autobus
Voda
Vodovod
Garáž
Sklep
Terasa
Výtah
Převod do OV

Máte zájem o tuto nemovitost?

Tímto, v souladu s nařízením Evropského parlamentu a Rady (EU) 2016/679, v platném znění, prohlašuji, že mi je alespoň 16 let a uděluji tak svůj souhlas se zpracováním zadaných údajů (jméno, telefon, e-mail, ip adresa) společnosti B3 Technology, s.r.o., IČ: 07330600, se sídlem Novostavby 126/23, 435 11 Lom (správce dat), za účelem předání dotazu z tohoto formuláře Vámi vybranému inzerentovi a zpětného kontaktování mé osoby. Osobní údaje bude správce zpracovávat manuálně i automaticky přímo prostřednictvím svých zaměstnanců. Informace předané tímto formulářem budou uloženy v databázi správce maximálně po dobu 10 let. Odvolání souhlasu s uložením a zpracováním poskytnutých dat lze e-mailem na info@realitymat.cz. V případě podezření na neoprávněné použití Vámi poskytnutých údajů máte právo předat podnět k šetření Úřadu pro ochranu osobních údajů. Více informací
Chystáte se prodat nemovitost?
Pomůžeme Vám!

Kontakt

Jana Skvirsky

Jana Skvirsky

Přihlášení k odběru

Nenechte si ujít nejnovější nabídky prodeje bytů 2+kk v Praze.

Podobné nabídky