Prodej pozemku pro bydlení, Veverské Knínice, 1507 m2

Veverské Knínice


5 990 000 Kč /za nemovitost
HYPOTÉKA od 26 772 Kč /měs.
Regionální dodavatelé v Veverských Knínicích

Popis

Zprostředkujeme Vám prodej pěkného stavebního pozemku o velikosti 1.507 m2 v obci Veverské Knínice, který nabízíme k prodeji ve výhradním zastoupení majitele. Pozemek se nachází na kraji obce ve velmi klidné části. Stavební šířka pozemku je cca 15,5 m a délka cca 97,2 m. Vjezd na pozemek vede z obecní cesty. Inženýrské sítě jsou vzdálené několik metrů.
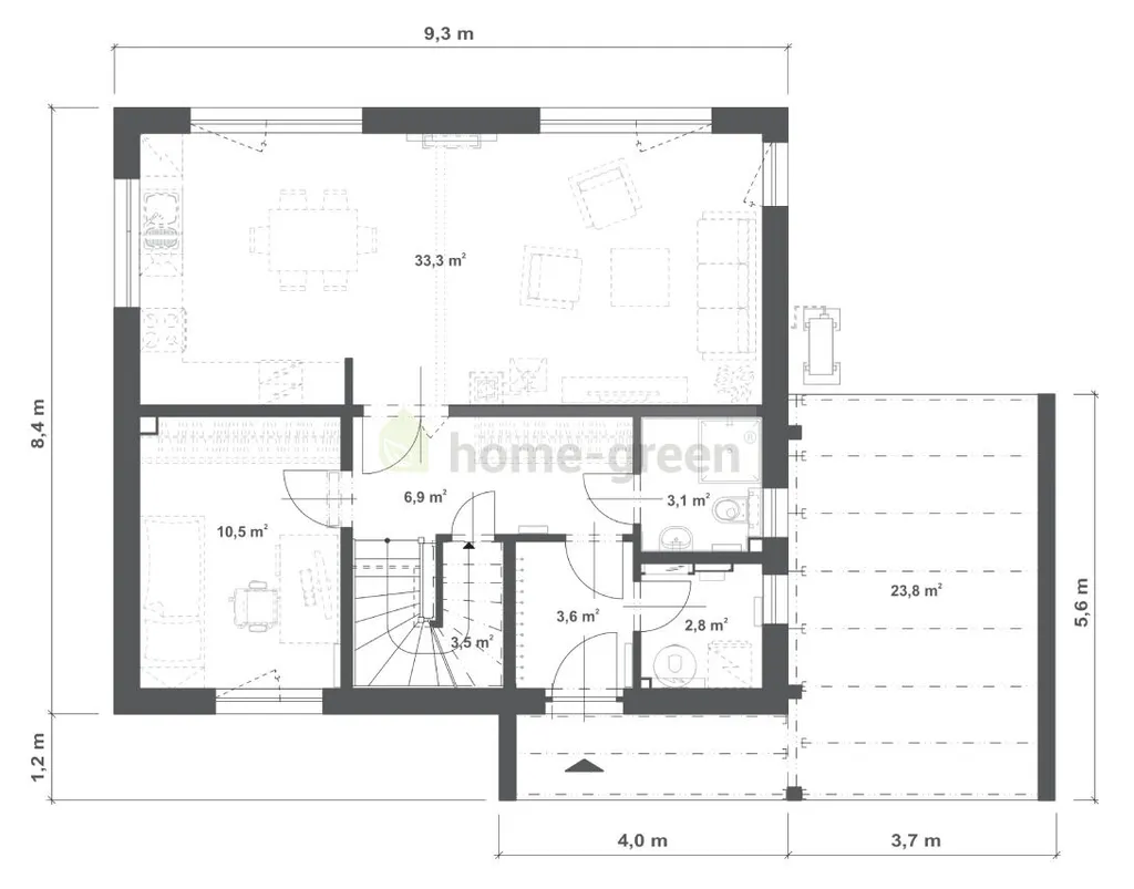
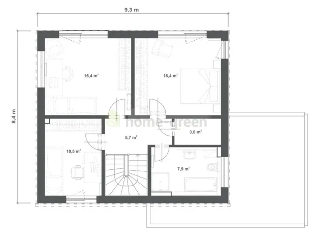
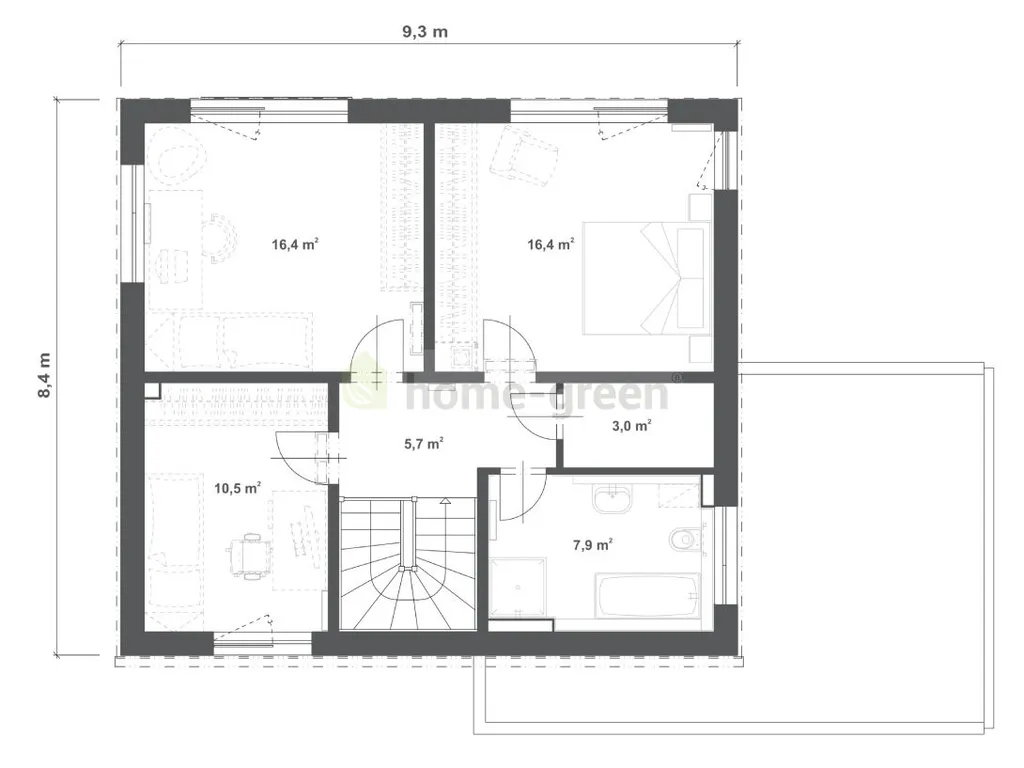
Doporučujeme na tomto pozemku postavit rodinný patrový kompaktní 5-pokojový dům KUBIS 121, který je častým požadavkem našich zákazníků. Tento rodinný dům má plnohodnotnou ložnici/pracovnu v přízemí a další 3 velké pokoje v patře. Pultová střecha a velká okna podtrhávají jeho moderní vzhled. Čtvercový půdorys a zastavěná plocha necelých sto metrů čtverečních jsou ideální i na menší pozemky. Přesto se vám bude v tomto typovém domě pohodlně bydlet, protože poskytuje 121 m2 obytné plochy. Garážové stání formou zastřešené pergoly a krytý vstup do domu zvyšují jeho komfort a oblíbenost. Proč si vybrat dům od RD Rýmařov? Tepelné čerpadlo v ceně domu, čerpadlo vzduch - vzduch v zimě dům vyhřeje, v létě zase ochladí v ceně domu, fotovoltaická elektrárna v ceně domu - systém ON GRID s akumulací do zásobníku TUV: využívá sluneční energii pro ohřev užitkové vody v 200 litrovém zásobníku. Základová deska je v ceně domu - ušetříte, a navíc vám odpadne spousta starostí.
Provedení domu 5 + kk
Užitná plocha 121 m2
Zastavěná plocha vč. stání 104 m2
Rozměry domu 9.1 x 8.4 m
Veverské Knínice jsou obec v okrese Brno-venkov v Jihomoravském kraji. Leží na rozhraní Boskovické brázdy a Křižanovské vrchoviny. Krásná příroda v okolí obce poskytuje velké možnosti pro volnočasovou aktivitu v blízkosti Brněnské přehrady a hradu Veveří. Ve Veverských Knínicích můžete navštívit kapličku sv. Ludmily s kamenem z Araratu, případně zrekonstruovanou sokolovnu. Pro výlety do okolí se hodí Podkomorské lesy s památníkem Helenky z Pohádky máje, nebo se můžete vydat na nedalekou vyhlídku Trůn. Mezi další blízké cíle patří Jarošův mlýn ve Veverské Bítýšce , hrad Veveří nebo Auto-motodrom Brno v Ostrovačicích. Obec je součástí dobrovolného svazku obcí Panství hradu veverského. V současné době je v obci 332 domů a žije tu přibližně 954 obyvatel. Obec je vzdálená cca 10 km od města Rosice a cca 20 Km západně od města Brno. Sjezd z dálnice D1 je v blízkosti 3 km u obce Ostrovačice a v centru Brna lze být autem za 15 minut. Vizualizace RD k výstavbě je pouze ilustrativní. Nabídku doporučujeme a se zajištěním financování Vám rádi pomůžeme.
Energetický štítek: B - Úsporná dle vyhlášky č. 264/2020 Sb.

Cena
5 990 000 Kč /za nemovitost Spočítat hypotéku
Aktualizováno
19. 3. 2026
Adresa
Veverské Knínice
ID
N00014
Lokalita objektu
Okraj obce
Zastavěná plocha
271 m2
Podlahová plocha
1507 m2
Plocha pozemku
1507 m2
Elektřina
230V, 400V
Odpad
Veřejná kanalizace
Komunikace
Neupravená
Telekomunikace
Kabelové rozvody
Doprava
Dálnice, Autobus
Voda
Vodovod

Máte zájem o tuto nemovitost?

Tímto, v souladu s nařízením Evropského parlamentu a Rady (EU) 2016/679, v platném znění, prohlašuji, že mi je alespoň 16 let a uděluji tak svůj souhlas se zpracováním zadaných údajů (jméno, telefon, e-mail, ip adresa) společnosti B3 Technology, s.r.o., IČ: 07330600, se sídlem Novostavby 126/23, 435 11 Lom (správce dat), za účelem předání dotazu z tohoto formuláře Vámi vybranému inzerentovi a zpětného kontaktování mé osoby. Osobní údaje bude správce zpracovávat manuálně i automaticky přímo prostřednictvím svých zaměstnanců. Informace předané tímto formulářem budou uloženy v databázi správce maximálně po dobu 10 let. Odvolání souhlasu s uložením a zpracováním poskytnutých dat lze e-mailem na info@realitymat.cz. V případě podezření na neoprávněné použití Vámi poskytnutých údajů máte právo předat podnět k šetření Úřadu pro ochranu osobních údajů. Více informací
Chystáte se prodat nemovitost?
Pomůžeme Vám!

Kontakt

Ing. Hana Vaculíková

Ing. Hana Vaculíková

Přihlášení k odběru

Nenechte si ujít nejnovější nabídky prodeje pozemků pro bydlení v Veverských Knínicích.

Tipy Realitymatu

Podobné nabídky