Prodej rodinného domu, Veverské Knínice, 99 m2 (ID: 2044643)

Veverské Knínice


7 990 000 Kč /za nemovitost
HYPOTÉKA od 35 710 Kč /měs.
Regionální dodavatelé v Veverských Knínicích

Popis

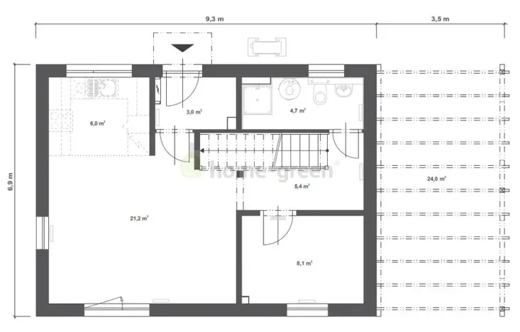
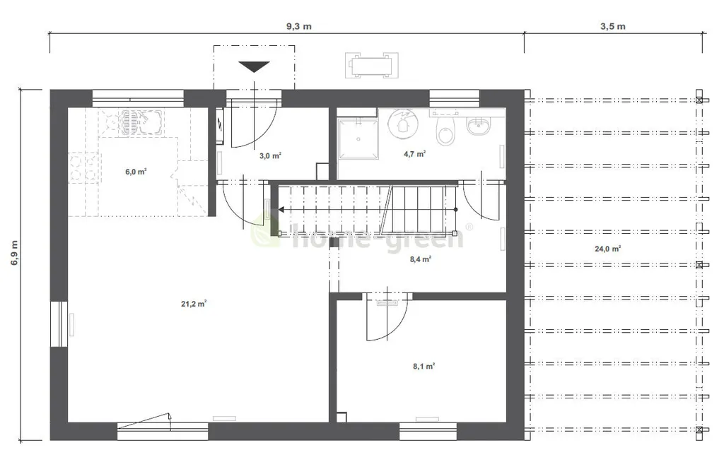
Zprostředkujeme Vám prodej pozemku o velikosti 629 m2 v obci Veverské Knínice, který nabízíme ve výhradním zastoupení majitele, k výstavbě pěkného rodinného patrového domu KUBIS 99 s dispozicí 4+KK a užitnou plochou 99 m2. Nabídková cena je včetně ceny pozemku, vodovodní a kanalizační přípojky a katalogové ceny domu od stavební společnosti RD Rýmařov, která tento dům na klíč nabízí včetně základové desky, tepelného čerpadla a fotovoltaické elektrárny s ohřevem vody. Pozemek se nachází na kraji obce ve velmi klidné části. Stavební šířka pozemku je cca 11 m a délka cca 57,18 m. Vjezd na pozemek vede z obecní cesty. Zastavěná plocha této dřevostavby je 65 m2.
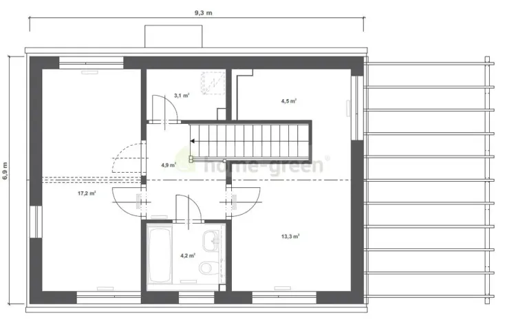
KUBIS 99 je revolučním domem na trhu s dřevostavbami. Je to moderní rodinný dům o dispozicích 4+kk, ideální dům pro rodiny s dětmi, s možností jednoduchého rozšíření na 5+kk. V přízemí se nachází kuchyňský kout spojený s obývacím pokojem, který umožní přímý vstup na slunnou terasu. Nechybí tu ani samostatný pokoj a koupelna. V podkroví se pak nachází další 3 prostorné pokoje a praktická technická místnost. Samozřejmostí je i druhá koupelna. Půdorys o rozměru 9,34 × 6,91 m vám v tomto patrovém rodinném domě poskytne téměř 100 m2 podlahových ploch. Navíc vám KUBIS 99 nabízí možnost rozšíření z dispozice 4+kk na 5+kk. Vedle domu se skvěle hodí i dřevěná pergola, která poslouží jako stání pro auto. V ceně domu je garážové stání formou nezastřešené pergoly.
Veverské Knínice jsou obec v okrese Brno-venkov v Jihomoravském kraji. Leží na rozhraní Boskovické brázdy a Křižanovské vrchoviny. Krásná příroda v okolí obce poskytuje velké možnosti pro volnočasovou aktivitu v blízkosti Brněnské přehrady a hradu Veveří. Ve Veverských Knínicích můžete navštívit kapličku sv. Ludmily s kamenem z Araratu, případně zrekonstruovanou sokolovnu. Pro výlety do okolí se hodí Podkomorské lesy s památníkem Helenky z Pohádky máje, nebo se můžete vydat na nedalekou vyhlídku Trůn. Mezi další blízké cíle patří Jarošův mlýn ve Veverské Bítýšce , hrad Veveří nebo Auto-motodrom Brno v Ostrovačicích. Obec je součástí dobrovolného svazku obcí Panství hradu veverského. V současné době je v obci 332 domů a žije tu přibližně 954 obyvatel. Obec je vzdálená cca 10 km od města Rosice a cca 20 Km západně od města Brno. Sjezd z dálnice D1 je v blízkosti 3 km u obce Ostrovačice a v centru Brna lze být autem za 15 minut. Vizualizace RD k výstavbě jsou pouze ilustrativní. Nabídku doporučujeme všem, kteří chtějí bydlet v RD se zahradou za cenu bytu a se zajištěním financování Vám rádi pomůžeme.

Cena
7 990 000 Kč /za nemovitost Spočítat hypotéku
Aktualizováno
8. 3. 2026
Adresa
Veverské Knínice
ID
N00015
Stavba
Dřevěná
Stav objektu
Projekt
Vybaveno
Ne
Typ objektu
Patrový
Druh objektu
Samostatný
Lokalita objektu
Okraj obce
Vlastnictví
Osobní
Užitná plocha
99 m2
Zastavěná plocha
65 m2
Plocha pozemku
629 m2
Třída energetické náročnosti
B - Velmi úsporná
Ukazatel energetické náročnosti
0.16 kWh/m2 za rok
Elektřina
230V, 400V
Odpad
Veřejná kanalizace
Telekomunikace
Kabelové rozvody
Doprava
Autobus
Voda
Vodovod
Parkování

Máte zájem o tuto nemovitost?

Tímto, v souladu s nařízením Evropského parlamentu a Rady (EU) 2016/679, v platném znění, prohlašuji, že mi je alespoň 16 let a uděluji tak svůj souhlas se zpracováním zadaných údajů (jméno, telefon, e-mail, ip adresa) společnosti B3 Technology, s.r.o., IČ: 07330600, se sídlem Novostavby 126/23, 435 11 Lom (správce dat), za účelem předání dotazu z tohoto formuláře Vámi vybranému inzerentovi a zpětného kontaktování mé osoby. Osobní údaje bude správce zpracovávat manuálně i automaticky přímo prostřednictvím svých zaměstnanců. Informace předané tímto formulářem budou uloženy v databázi správce maximálně po dobu 10 let. Odvolání souhlasu s uložením a zpracováním poskytnutých dat lze e-mailem na info@realitymat.cz. V případě podezření na neoprávněné použití Vámi poskytnutých údajů máte právo předat podnět k šetření Úřadu pro ochranu osobních údajů. Více informací
Chystáte se prodat nemovitost?
Pomůžeme Vám!

Kontakt

Ing. Hana Vaculíková

Ing. Hana Vaculíková

Přihlášení k odběru

Nenechte si ujít nejnovější nabídky prodeje rodinných domů v Veverských Knínicích.

Podobné nabídky