Prodej bytu 3+kk, Ivančice, 51 m2 (ID: 2038219)

Ivančice


5 715 000 Kč /za nemovitost
HYPOTÉKA od 25 543 Kč /měs.

(včetně DPH, včetně provize, včetně právního servisu)


Regionální dodavatelé v Ivančicích

Popis

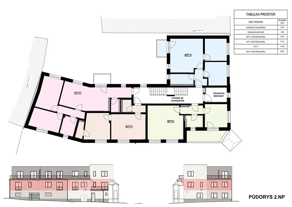
Nabízíme k prodeji byt 3+kk s balkónem v novostavbě bytového domu o 10 jednotkách v bezprostředním centru města Ivančic, na nároží ulic Kounická a Jana Fibicha.
Bytová jednotka o dispozici 3+kk a podlahové ploše 51,39 m² se nachází ve 2. nadzemním podlaží nízkoenergetického bytového domu situovaného v klidné části města Ivančice. Součástí bytu je také balkón o výměře 3,75 m², který poskytuje příjemný prostor pro odpočinek. Součástí ceny bytu je sklepní kóje a nekryté parkovací stání.

Dispozice bytu:
– hala: 3,42 m²
– koupelna s WC: 5,27 m²
– obývací pokoj s kuchyňským koutem: 22,30 m²
– ložnice: 10,03 m²
– pokoj: 10,37 m²
– balkon: 3,75 m²

Byt je součástí novostavby bytového domu o pouhých 10 jednotkách, což zajišťuje klidné a komfortní bydlení bez anonymního prostředí rozsáhlých rezidenčních komplexů.

K bytu náleží sklepní kóje (cca 1,8 m²) a kryté parkovací stání, které poskytuje pohodlí a ochranu vozidla po celý rok. Dům se nachází v atraktivní lokalitě s výbornou dostupností do centra města a kompletní občanskou vybaveností – v okolí najdete školy, školky, obchody, zdravotnická zařízení, sportoviště i zastávky MHD.

Vybavení bytu:
– kvalitní vinylové podlahy a dlažba
– příprava na kuchyňskou linku
– plastová okna s izolačními trojskly
– předokenní žaluzie u oken orientovaných do ulice (jižní/západní strana)
– moderní sanitární vybavení

Bytový dům je aktuálně ve fázi dokončovacích prací, probíhá realizace koupelen a pokládka podlah, instalují se zařizovací předměty. Předpokládaný termín k nastěhování je 01/2026.

Pro více informací, půdorysy nebo sjednání prohlídky nás neváhejte kontaktovat.
Prodej přímo od investora – neplatíte provizi.

Cena
5 715 000 Kč /za nemovitost Spočítat hypotéku
Poznámka k ceně
včetně DPH, včetně provize, včetně právního servisu
Aktualizováno
31. 12. 2025
Adresa
Ivančice
ID
10248
Stavba
Cihlová
Stav objektu
Ve výstavbě
Patro
2. z 3
Vybaveno
Ne
Lokalita objektu
Centrum obce
Vlastnictví
Osobní
Užitná plocha
51 m2
Třída energetické náročnosti
B - Velmi úsporná
Ukazatel energetické náročnosti
118 kWh/m2 za rok
Balkon
Sklep
Výtah
Bezbarierový přístup
Parkování

Máte zájem o tuto nemovitost?

Tímto, v souladu s nařízením Evropského parlamentu a Rady (EU) 2016/679, v platném znění, prohlašuji, že mi je alespoň 16 let a uděluji tak svůj souhlas se zpracováním zadaných údajů (jméno, telefon, e-mail, ip adresa) společnosti B3 Technology, s.r.o., IČ: 07330600, se sídlem Novostavby 126/23, 435 11 Lom (správce dat), za účelem předání dotazu z tohoto formuláře Vámi vybranému inzerentovi a zpětného kontaktování mé osoby. Osobní údaje bude správce zpracovávat manuálně i automaticky přímo prostřednictvím svých zaměstnanců. Informace předané tímto formulářem budou uloženy v databázi správce maximálně po dobu 10 let. Odvolání souhlasu s uložením a zpracováním poskytnutých dat lze e-mailem na info@realitymat.cz. V případě podezření na neoprávněné použití Vámi poskytnutých údajů máte právo předat podnět k šetření Úřadu pro ochranu osobních údajů. Více informací
Chystáte se prodat nemovitost?
Pomůžeme Vám!

Kontakt

Bc. Lucie Hajdová, MBA. DiS.

Bc. Lucie Hajdová, MBA. DiS.

Přihlášení k odběru

Nenechte si ujít nejnovější nabídky prodeje bytů 3+kk v Ivančicích.

Podobné nabídky