Prodej bytu 3+kk, Přísnotice, Žabčická, 75 m2

Žabčická, Přísnotice


6 800 000 Kč /za nemovitost
HYPOTÉKA od 30 392 Kč /měs.

(včetně provize, včetně právního servisu)


Regionální dodavatelé v Přísnoticích

Popis

Rádi Vám představujeme moderní projekt Přísnotický dvůr, který nabízí tři ojedinělé bytové jednotky v malebné a tradiční vinařské obci Přísnotice. Dům s pouhými třemi byty se nachází v centru obce, při ulici Žabčická – Přibická. Projekt tvoří bytové jednotky nesoucí jména inspirovaná historií obce – Bartoloměj, Florián a Urban. Přísnotice, obec s přibližně 886 obyvateli, se vyznačují klidnou atmosférou, komunitním životem a výbornou dostupností do Brna i Židlochovic.

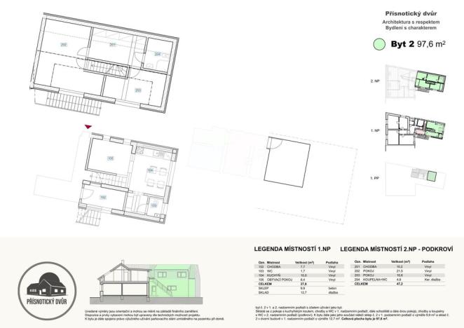
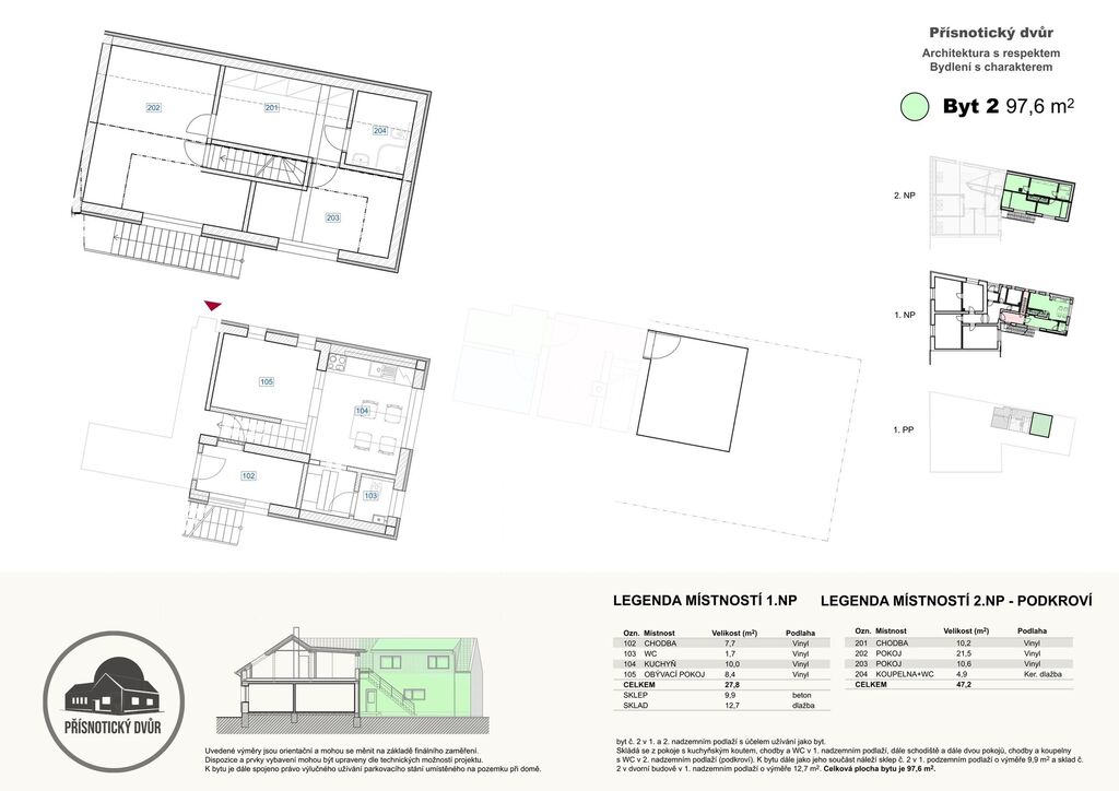
Nabízená bytová jednotka 3+KK Bartoloměj disponuje užitnou plochou 75 m², rozvrženou do dvou podlaží – přízemí a podkroví. K bytu náleží sklep 9,9 m² a venkovní sklad 12,7 m², vhodný na pneumatiky, nosiče, sportovní vybavení i motorku. Celková plocha činí 97,6 m² + parkovací místo ve výlučném užívání. Mezonetové uspořádání působí jako „rodinné bydlení v bytě“, nabízí přirozené oddělení denní a noční části i vyšší míru soukromí.

Spodní podlaží tvoří obývací pokoj s kuchyní (JV) a jídelní částí, prostorné zádveří a toaletu. Horní podlaží tvoří klidová část s dvěma samostatnými vstupy do pokojů orientovanými na severozápad, což poskytuje příjemné světlo bez přehřívání v létě. Koupelna se sprchovým koutem, WC a šatna s prostorem pro pračku či sušičku. K vyššímu komfortu přispívají dvě vnitřní klimatizační jednotky doplněné venkovní jednotkou. Výhodou je i samostatný vstup ze zadní části budovy.

Projekt je realizován s důrazem na kvalitu, energetickou úspornost a akustický komfort. Stropní konstrukce mezi podlažími mají skladbu téměř 0,5 m, příčkové konstrukce v podkroví jsou doplněny hustou izolační výplní a využita je stříkaná izolace s výbornými tepelnými i akustickými vlastnostmi oproti běžné skelné vatě. Střešní okna VELUX s izolačními trojskly zajišťují stabilní teplotní i zvukový komfort.

Hlavní přednosti bytu Bartoloměj:
• Mezonetové řešení – pocit bydlení v RD
• 2 toalety v bytě
• 2 klimatizační jednotky + venkovní jednotka
• Prostorné zádveří
• Pokoje orientované na SZ i JV
• Izolační střešní okna - trojskla VELUX
• Stříkaná izolace s H2 FOAM LITE
• Elektrické podlahové vytápění
• Energetická třída B
• SPC podlahy v dekoru dřeva
• Rakouské Dveře DANA 2100 mm již ve Standardu
• Kovové brány na míru, příprava na žaluzie

Přísnotice jsou skvělou volbou pro rodiny. Obec nabízí MŠ i ZŠ, knihovnu, kulturní akce a aktivní spolky – fotbal, lehkou atletiku, zahrádkáře, dobrovolné hasiče či Klub Lhéta. Širší občanskou vybavenost zajišťují nedaleké Židlochovice.

Dopravní spojení je výborné: vlaková linka S3 ze stanice Žabčice směřuje na Brno (20–30 min), autobusová linka IDS JMK 520 spojuje Přísnotice s okolními obcemi.

Stavba je dokončena z 85 %. Financování můžete řešit hypotečním úvěrem se zástavou s postupným čerpáním: 20 % (záloha) / 30 % (po omítky) / 30 % (hotové povrchy) / 20 % (po kolaudaci). Podmínky lze individuálně upravit.

Byt Bartoloměj nabízí klidné a komfortní mezonetové bydlení s příjemnou atmosférou domova. Rádi Vám jej představíme osobně.

Cena
6 800 000 Kč /za nemovitost Spočítat hypotéku
Poznámka k ceně
včetně provize, včetně právního servisu
Aktualizováno
25. 11. 2025
Adresa
Žabčická, Přísnotice
ID
202534
Stavba
Cihlová
Stav objektu
Novostavba
Patro
1. z 2
Druh objektu
Rohový
Lokalita objektu
Centrum obce
Vlastnictví
Osobní
Užitná plocha
75 m2
Podlahová plocha
98 m2
Třída energetické náročnosti
B - Velmi úsporná
Ukazatel energetické náročnosti
61.5 kWh/m2 za rok
Elektřina
230V, 400V
Odpad
Veřejná kanalizace
Topení
Jiné
Komunikace
Dlážděná, Asfaltová
Telekomunikace
Telefon, Internet, Kabelová televize
Doprava
Vlak, Dálnice, Silnice, MHD, Autobus
Voda
Vodovod
Sklep
Parkování
Nízkoenergetický

Máte zájem o tuto nemovitost?

Tímto, v souladu s nařízením Evropského parlamentu a Rady (EU) 2016/679, v platném znění, prohlašuji, že mi je alespoň 16 let a uděluji tak svůj souhlas se zpracováním zadaných údajů (jméno, telefon, e-mail, ip adresa) společnosti B3 Technology, s.r.o., IČ: 07330600, se sídlem Novostavby 126/23, 435 11 Lom (správce dat), za účelem předání dotazu z tohoto formuláře Vámi vybranému inzerentovi a zpětného kontaktování mé osoby. Osobní údaje bude správce zpracovávat manuálně i automaticky přímo prostřednictvím svých zaměstnanců. Informace předané tímto formulářem budou uloženy v databázi správce maximálně po dobu 10 let. Odvolání souhlasu s uložením a zpracováním poskytnutých dat lze e-mailem na info@realitymat.cz. V případě podezření na neoprávněné použití Vámi poskytnutých údajů máte právo předat podnět k šetření Úřadu pro ochranu osobních údajů. Více informací
Chystáte se prodat nemovitost?
Pomůžeme Vám!

Kontakt

Boris Tonev

Boris Tonev

Přihlášení k odběru

Nenechte si ujít nejnovější nabídky prodeje bytů 3+kk v Přísnoticích.

Podobné nabídky