Prodej bytu 2+1, Praha - Libeň, Na stráži, 48 m2

Na stráži, Libeň - Praha 8


7 599 000 Kč /za nemovitost
HYPOTÉKA od 33 963 Kč /měs.

(Provize 1 % + DPH)


Regionální dodavatelé v Praze 8

Stěhovací služby

Výkup a prodej starého nábytku

Popis

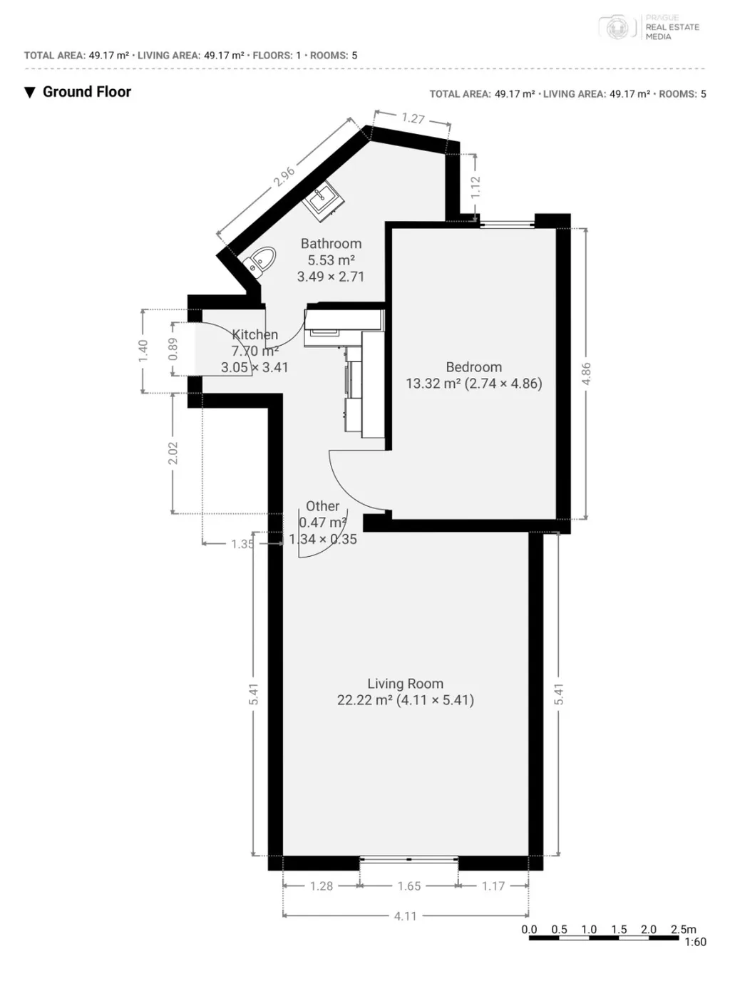
Nabízíme na prodej byt o dispozici 2+1 a velikosti 48 m² na Praze 8 - Libeň. Byt je součástí cihlového domu, prošel kompletní rekonstrukcí a nabízí moderní a komfortní bydlení

Dispozice bytu tvoří předsíň, samostatný kuchyňský kout, koupelna s WC, ložnice orientovaná do vnitrobloku a obývací pokoj s okny do ulice. Dům má udržované společné prostory a menší vnitřní dvůr, který je k dispozici pro obyvatele domu.

Rekonstrukce zahrnuje:
• kompletní výměnu elektroinstalace
• novou kuchyňskou linku se spotřebiči
• kompletní rekonstrukci koupelny a samostatného WC
• nový bojler na ohřev vody
• nové dřevěné podlahy

Možná výměna za Váš byt v Praze a okolí.

Součástí prodeje je také možnost uzavření management contractu – zajišťujeme kompletní rental management pro klienty, kteří hledají investiční nemovitost a chtějí dosáhnout co nejvyššího výnosu z pronájmu.

Pokud vás byt zaujal, neváhejte nás kontaktovat, nejlépe telefonicky!

Cena
7 599 000 Kč /za nemovitost Spočítat hypotéku
Poznámka k ceně
Provize 1 % + DPH
Aktualizováno
27. 3. 2026
Adresa
Na stráži, Libeň - Praha 8
ID
N447
Stavba
Cihlová
Stav objektu
Po rekonstrukci
Patro
1. z 4
Typ objektu
Patrový
Vlastnictví
Osobní
Užitná plocha
48 m2
Podlahová plocha
48 m2
Třída energetické náročnosti
E - Nehospodárná
Telekomunikace
Telefon, Internet
Doprava
MHD, Autobus

Máte zájem o tuto nemovitost?

Tímto, v souladu s nařízením Evropského parlamentu a Rady (EU) 2016/679, v platném znění, prohlašuji, že mi je alespoň 16 let a uděluji tak svůj souhlas se zpracováním zadaných údajů (jméno, telefon, e-mail, ip adresa) společnosti B3 Technology, s.r.o., IČ: 07330600, se sídlem Novostavby 126/23, 435 11 Lom (správce dat), za účelem předání dotazu z tohoto formuláře Vámi vybranému inzerentovi a zpětného kontaktování mé osoby. Osobní údaje bude správce zpracovávat manuálně i automaticky přímo prostřednictvím svých zaměstnanců. Informace předané tímto formulářem budou uloženy v databázi správce maximálně po dobu 10 let. Odvolání souhlasu s uložením a zpracováním poskytnutých dat lze e-mailem na info@realitymat.cz. V případě podezření na neoprávněné použití Vámi poskytnutých údajů máte právo předat podnět k šetření Úřadu pro ochranu osobních údajů. Více informací
Chystáte se prodat nemovitost?
Pomůžeme Vám!

Kontakt

Call Centrum CAPITAL Trust, a.s

Call Centrum CAPITAL Trust, a.s

Přihlášení k odběru

Nenechte si ujít nejnovější nabídky prodeje bytů 2+1 v Praze 8.

Podobné nabídky