Pronájem bytu 1+kk, Praha - Modřany, Vrátnická, 38 m2

Vrátnická, Modřany - Praha 12


18 500 Kč /za měsíc
Získejte výhodnou HYPOTÉKU

(vratná jistota, náklady na bydlení 4.679 Kč, poplatek za podnájem)


Regionální dodavatelé v Praze 4

Stěhovací služby

Výkup a prodej starého nábytku

Popis

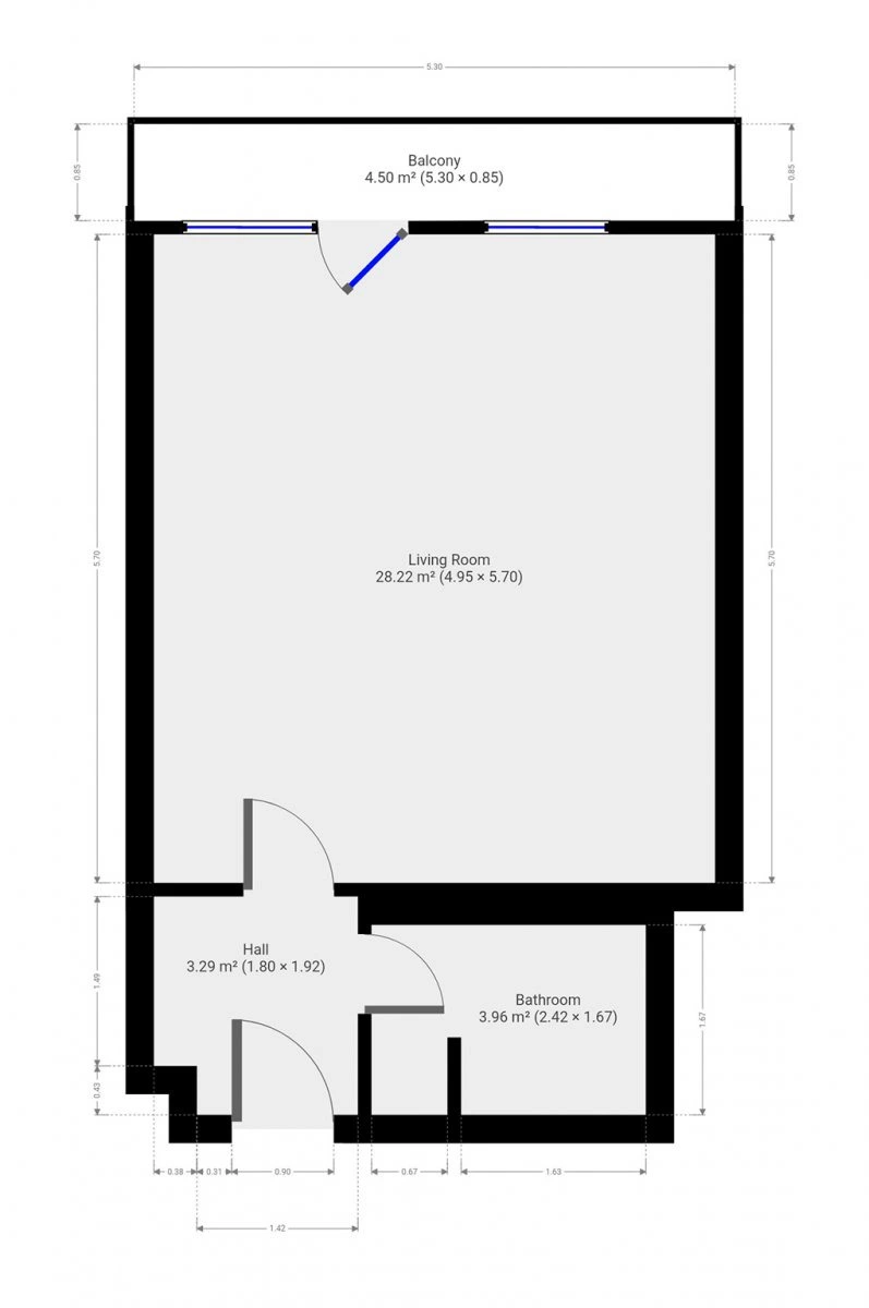
K dlouhodobému podnájmu nabízíme kompletně nový byt o dispozici 1+kk v oblíbené lokalitě Praha - Modřany. Jedná se o součástí projektu Riviéra Modřany. Byt o celkové výměře 38 m2 se nachází ve třetím patře cihlové novostavby s výtahem. K bytu patří i balkón, sklep a garážové parkovací stání.

Byt se nabízí nevybavený. Kuchyně disponuje lednicí, elektrickou troubou, varnou deskou a digestoří. Obývací část je nezařízená. V koupelně najdeme vanu, umyvadlo a toaletu. Součástí předsíně je šatní skříň.

V docházkové vzdálenosti jsou restaurace, supermarket Albert, základní škola atd. Přímo za domem je cyklostezka, která vede podél Vltavy. Tramvajová zastávka Belárie je přímo před domem - vynikající spojení do centra Prahy. Výborné spojení je také díky železniční stanici.

Byt je volný k nastěhování od 1.4.2026. Majitel preferuje zájemce bez domácích mazlíčků.

Uvedena energetická kategorie G, jelikož nemáme k dispozici PENB.

Byt pronajímá Ideální nájemce - služba, se kterou budete bydlet bezstarostně a za férových podmínek. Když se něco přihodí, k dispozici jsou správci, kteří s vámi vše vyřeší. Pomůžeme s veškerou administrativou, s nastavením plateb a zajistíme vám speciální pojištění. Pojďte bydlet s námi!

Cena
18 500 Kč /za měsíc
Poznámka k ceně
vratná jistota, náklady na bydlení 4.679 Kč, poplatek za podnájem
Aktualizováno
29. 12. 2025
Adresa
Vrátnická, Modřany - Praha 12
ID
N2718
Stavba
Cihlová
Stav objektu
Novostavba
Patro
3. z 5
Vybaveno
Ne
Typ objektu
Patrový
Lokalita objektu
Klidná část obce
Vlastnictví
Osobní
Užitná plocha
38 m2
Podlahová plocha
38 m2
Elektřina
230V
Topení
Ústřední dálkové
Balkon
Garáž
Sklep
Výtah
Bezbarierový přístup

Máte zájem o tuto nemovitost?

Tímto, v souladu s nařízením Evropského parlamentu a Rady (EU) 2016/679, v platném znění, prohlašuji, že mi je alespoň 16 let a uděluji tak svůj souhlas se zpracováním zadaných údajů (jméno, telefon, e-mail, ip adresa) společnosti B3 Technology, s.r.o., IČ: 07330600, se sídlem Novostavby 126/23, 435 11 Lom (správce dat), za účelem předání dotazu z tohoto formuláře Vámi vybranému inzerentovi a zpětného kontaktování mé osoby. Osobní údaje bude správce zpracovávat manuálně i automaticky přímo prostřednictvím svých zaměstnanců. Informace předané tímto formulářem budou uloženy v databázi správce maximálně po dobu 10 let. Odvolání souhlasu s uložením a zpracováním poskytnutých dat lze e-mailem na info@realitymat.cz. V případě podezření na neoprávněné použití Vámi poskytnutých údajů máte právo předat podnět k šetření Úřadu pro ochranu osobních údajů. Více informací
Chystáte se prodat nemovitost?
Pomůžeme Vám!

Kontakt

Miloslava Kačerová

Miloslava Kačerová

Přihlášení k odběru

Nenechte si ujít nejnovější nabídky pronájmu bytů 1+kk v Praze 4.

Podobné nabídky