Pronájem bytu 1+kk, Praha - Nové Město, Lodecká, 75 m2

Lodecká, Praha, Nové Město


35 000 Kč /za měsíc
Získejte výhodnou HYPOTÉKU

(bez poplatků, + provize RK, včetně právního servisu)


Regionální dodavatelé v Praze 1

Stěhovací služby

Výkup a prodej starého nábytku

Popis

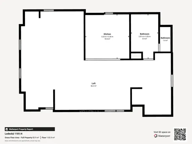
Nabízíme k pronájmu nadstandardně koncipovaný a plně vybavený byt o celkové výměře 75 m², který se nachází na prestižní adrese Lodecká, Praha – Nové Město. Jedná se o výjimečné bydlení v samotném srdci metropole, vhodné pro nájemce hledající komfort, styl a výbornou dostupnost.

Byt je řešen s důrazem na moderní design a funkčnost. Dispozice zahrnuje vstupní předsíň, plně vybavenou kuchyni, prostornou obytnou část s jídelním koutem a ložnici umístěnou v mezonetovém patře, která zajišťuje dostatek soukromí. Interiér je designově zařízený, s kvalitním vybavením a promyšlenými detaily, které vytvářejí příjemnou a reprezentativní atmosféru. Velkým benefitem bytu je šatna a dostatek úložných prostor.

Měsíční nájemné činí 35 000 Kč, poplatky za služby jsou stanoveny ve výši 6 000 Kč měsíčně a zahrnují veškeré náklady spojené s provozem bytu. Teplo, vodu, elektřinu i internet.

Lokalita Nové Město patří k nejžádanějším částem Prahy – v bezprostřední blízkosti se nachází historické centrum, náplavka, restaurace, kavárny, obchody i kulturní vyžití. Samozřejmostí je výborná dopravní dostupnost a kompletní občanská vybavenost.

Byt je ideální volbou pro jednotlivce či pár, kteří hledají výjimečné bydlení v centru Prahy.

V případě zájmu o více informací nebo sjednání prohlídky mě neváhejte kontaktovat.

Cena
35 000 Kč /za měsíc
Poznámka k ceně
bez poplatků, + provize RK, včetně právního servisu
Aktualizováno
20. 12. 2025
Adresa
Lodecká, Praha, Nové Město
ID
28893
Stavba
Cihlová
Stav objektu
Velmi dobrý
Patro
3. z 3
Vlastnictví
Osobní
Užitná plocha
75 m2
Třída energetické náročnosti
G - Mimořádně nehospodárná
Elektřina
230V
Odpad
Veřejná kanalizace
Komunikace
Betonová
Telekomunikace
Telefon, Internet, Satelit, Kabelová televize, Kabelové rozvody, Ostatní
Doprava
Vlak, Dálnice, Silnice, MHD, Autobus
Voda
Místní zdroj vody
Topné těleso
Radiátory

Máte zájem o tuto nemovitost?

Tímto, v souladu s nařízením Evropského parlamentu a Rady (EU) 2016/679, v platném znění, prohlašuji, že mi je alespoň 16 let a uděluji tak svůj souhlas se zpracováním zadaných údajů (jméno, telefon, e-mail, ip adresa) společnosti B3 Technology, s.r.o., IČ: 07330600, se sídlem Novostavby 126/23, 435 11 Lom (správce dat), za účelem předání dotazu z tohoto formuláře Vámi vybranému inzerentovi a zpětného kontaktování mé osoby. Osobní údaje bude správce zpracovávat manuálně i automaticky přímo prostřednictvím svých zaměstnanců. Informace předané tímto formulářem budou uloženy v databázi správce maximálně po dobu 10 let. Odvolání souhlasu s uložením a zpracováním poskytnutých dat lze e-mailem na info@realitymat.cz. V případě podezření na neoprávněné použití Vámi poskytnutých údajů máte právo předat podnět k šetření Úřadu pro ochranu osobních údajů. Více informací
Chystáte se prodat nemovitost?
Pomůžeme Vám!

Kontakt

Pavel Jaroš

Pavel Jaroš

Přihlášení k odběru

Nenechte si ujít nejnovější nabídky pronájmu bytů 1+kk v Praze 1.

Podobné nabídky