Prodej bytu 3+kk, Praha - Libeň, Krejčího, 73 m2

Krejčího, Praha, Libeň


13 800 000 Kč /za nemovitost
HYPOTÉKA od 61 678 Kč /měs.
Regionální dodavatelé v Praze 8

Stěhovací služby

Výkup a prodej starého nábytku

Popis

Představujeme prostorný byt 3+kk s nádherným panoramatickým výhledem na město, který vás nikdy neomrzí, a navíc zde pocítíte cenné soukromí. Unikátní poloha bytového domu přímo u parku je garancí výjimečnosti ve spojení s posledním podlažím.

Menší bytový dům Sára s adresou Prahy 8 se nachází pár metru od Sportcentra Koráb se snadnou dostupností do centra a s dosahem tramvajové zastávky doslova pár minut od domu.

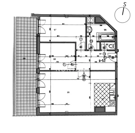
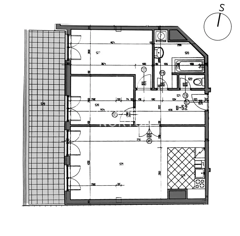
Byt o celkové ploše 73,1 m² nabízí velký obývací pokoj s moderní a kvalitně zařízenou kuchyní a vstupem na terasu. Vstup do bytu je řešený centrální halou s vestavěným nábytkem a dvoukřídlými dveřmi do obývacího pokoje, odkud se otevírá výhled na město. Z haly je dále vstup do hlavní ložnice a druhé, menší ložnice. Všechny místnosti mají francouzská okna se západní orientací a výstupem na terasu. Zbývající část bytu tvoří koupelna s vanou a samostatná toaleta.


Byt je vybaven elektricky ovládanými venkovními žaluziemi, kuchyňskou linkou se spotřebiči Miele, obytné místnosti mají kvalitní koberec. Vytápění je řešené centrálně dálkovým připojením domu.

Součástí nabídky je parkování pro dva vozy v samostatně uzavíratelném prostoru v suterénu domu s velkým skladem 15 m².


Bytový dům Sára byl dokončený v roce 2003, má centrální schodiště s výtahem a denním světlem díky prosklenému atriu. Dům i byt mají průběžnou provozní péči a jsou ve velmi dobrém stavu.

Místo je velmi klidné a nabízí dokonalou rovnováhu mezi městským životem a dosahem přírody, pak Pod Korábem za domem a snadno se napojíte také na cyklostezky podél Vltavy.

Cena
13 800 000 Kč /za nemovitost Spočítat hypotéku
Aktualizováno
16. 12. 2025
Adresa
Krejčího, Praha, Libeň
ID
532932
Stavba
Smíšená
Stav objektu
Dobrý
Patro
5. z 5
Vybaveno
Částečně
Vlastnictví
Osobní
Užitná plocha
73 m2
Třída energetické náročnosti
B - Velmi úsporná
Sklep
Terasa
Výtah
Převod do OV
Parkování

Máte zájem o tuto nemovitost?

Tímto, v souladu s nařízením Evropského parlamentu a Rady (EU) 2016/679, v platném znění, prohlašuji, že mi je alespoň 16 let a uděluji tak svůj souhlas se zpracováním zadaných údajů (jméno, telefon, e-mail, ip adresa) společnosti B3 Technology, s.r.o., IČ: 07330600, se sídlem Novostavby 126/23, 435 11 Lom (správce dat), za účelem předání dotazu z tohoto formuláře Vámi vybranému inzerentovi a zpětného kontaktování mé osoby. Osobní údaje bude správce zpracovávat manuálně i automaticky přímo prostřednictvím svých zaměstnanců. Informace předané tímto formulářem budou uloženy v databázi správce maximálně po dobu 10 let. Odvolání souhlasu s uložením a zpracováním poskytnutých dat lze e-mailem na info@realitymat.cz. V případě podezření na neoprávněné použití Vámi poskytnutých údajů máte právo předat podnět k šetření Úřadu pro ochranu osobních údajů. Více informací
Chystáte se prodat nemovitost?
Pomůžeme Vám!

Kontakt

Adéla Bukovská - recepce

Adéla Bukovská - recepce

Přihlášení k odběru

Nenechte si ujít nejnovější nabídky prodeje bytů 3+kk v Praze 8.

Tipy Realitymatu

Podobné nabídky