Pronájem bytu 1+kk, Praha - Uhříněves, Salačova, 24 m2

Salačova, Uhříněves - Praha 22


17 600 Kč /za měsíc
Získejte výhodnou HYPOTÉKU

(vratná jistota, náklady na bydlení 2.500,-Kč, poplatek za podnájem)


Regionální dodavatelé v Praze 10

Stěhovací služby

Výkup a prodej starého nábytku

Pojištění a finance

Popis

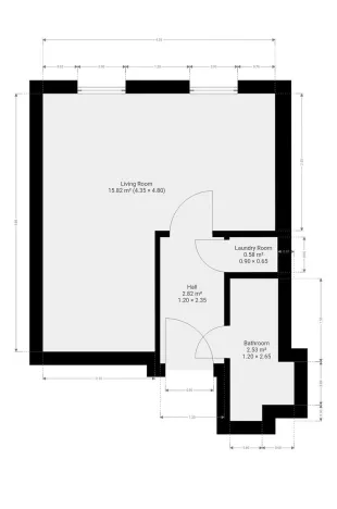
K dlouhodobému podnájmu nabízíme světlý a útulný byt 1+kk v klidné lokalitě Praha 22 – Uhříněves. Byt o celkové výměře 24 m² se nachází ve 2. patře udržovaného bytového domu. K bytu náleží i praktický sklep.

Byt je částečně vybavený, což umožňuje doladit si interiér podle vlastního vkusu. Kuchyně je vybavena elektrickou troubou, varnou deskou, digestoří a dostatečným úložným prostorem. Obytná část je připravena k vybavení dle představ podnájemníka. Koupelna disponuje sprchovým koutem, umyvadlem a toaletou, součástí bytu je i komora s pračkou.

V okolí domu je kompletní občanská vybavenost – obchody s potravinami, supermarket Billa, restaurace, kavárny, lékařská péče, pošta i sportovní hřiště. Pro volný čas a odpočinek je ideální Obora v Uhříněvsi. Výbornou dopravní dostupnost zajišťuje autobusová a vlaková doprava, která pohodlně spojuje Uhříněves s centrem Prahy.

Byt je volný k nastěhování 15.06.2026

Energetická třída: G (průkaz nedodán).

Cena
17 600 Kč /za měsíc
Poznámka k ceně
vratná jistota, náklady na bydlení 2.500,-Kč, poplatek za podnájem
Aktualizováno
7. 5. 2026
Adresa
Salačova, Uhříněves - Praha 22
ID
N7040
Stavba
Cihlová
Stav objektu
Velmi dobrý
Patro
2. z 2
Vybaveno
Částečně
Typ objektu
Patrový
Vlastnictví
Osobní
Užitná plocha
24 m2
Podlahová plocha
24 m2
Třída energetické náročnosti
G - Mimořádně nehospodárná
Elektřina
230V
Topení
Ústřední dálkové
Sklep
Výtah

Máte zájem o tuto nemovitost?

Tímto, v souladu s nařízením Evropského parlamentu a Rady (EU) 2016/679, v platném znění, prohlašuji, že mi je alespoň 16 let a uděluji tak svůj souhlas se zpracováním zadaných údajů (jméno, telefon, e-mail, ip adresa) společnosti B3 Technology, s.r.o., IČ: 07330600, se sídlem Novostavby 126/23, 435 11 Lom (správce dat), za účelem předání dotazu z tohoto formuláře Vámi vybranému inzerentovi a zpětného kontaktování mé osoby. Osobní údaje bude správce zpracovávat manuálně i automaticky přímo prostřednictvím svých zaměstnanců. Informace předané tímto formulářem budou uloženy v databázi správce maximálně po dobu 10 let. Odvolání souhlasu s uložením a zpracováním poskytnutých dat lze e-mailem na info@realitymat.cz. V případě podezření na neoprávněné použití Vámi poskytnutých údajů máte právo předat podnět k šetření Úřadu pro ochranu osobních údajů. Více informací
Chystáte se prodat nemovitost?
Pomůžeme Vám!
Theleadway banner

Kontakt

Dana Oralová

Dana Oralová

Přihlášení k odběru

Nenechte si ujít nejnovější nabídky pronájmu bytů 1+kk v Praze 10.

Podobné nabídky