Prodej rodinného domu, Pětihosty, 163 m2 (ID: 2028213)

Pětihosty


17 500 000 Kč /za nemovitost
HYPOTÉKA od 78 214 Kč /měs.
Regionální dodavatelé v Pětihostech

Popis

RD Pětihosty moderní domy s garáží a terasou v přírodě kousek od Prahy
Více informací o projektu a jednotlivých domech najdete na rd-petihosty.cz
Toužíte po bydlení, kde se spojí klid venkova, moderní architektura a výborná dostupnost do Prahy?
Projekt RD Pětihosty nabízí deset stylových rodinných domů 4+kk s garáží a terasou, které přinášejí komfort moderního života v klidném prostředí.
Domy jsou již vystavěny do fáze hrubé stavby a výstavba celého projektu plynule pokračuje podle plánu.
V této fázi mají zájemci možnost vybírat z nabízených standardů či upravit finální materiály a vybavení interiéru podle vlastního vkusu.

O projektu RD Pětihosty
10 moderních domů 4+kk s garáží a terasou
Obytná plocha cca 130 m
Pozemky od 500 m
Kompletní inženýrské sítě
Nadstandardní vybavení v ceně

Nadstandardní detaily, které tvoří rozdíl
Hliníkový HS portál, dřevěné podlahy, velkoformátová dlažba, podomítkové baterie, skryté zárubně i dveře do stropu.
Celý projekt je tvořen v úzké spolupráci s předním interiérovým designérem Ivo Prokelem, což zaručuje precizní provedení a harmonii detailů.
Každý dům je promyšlen tak, aby nabídl prostor, světlo a styl v interiéru i v zahradě.

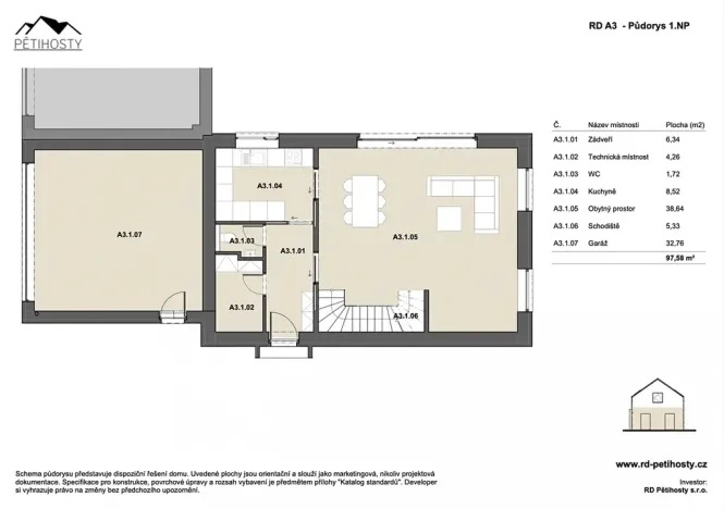
Modelový dům A3
Dispozice: 4+kk s garáží a terasou
Obytná plocha: 130 m
Pozemek: 512 m
Cena: 17 500 000 Kč

Více informací, fotek a detailní popis tohoto domu najdete na webu projektu:
www.rd-petihosty.cz

Lokalita
Pětihosty se nacházejí v klidném prostředí obklopeném zelení, s výbornou dostupností do Prahy i Benešova.
Obec nabízí ideální kombinaci soukromí, čistého prostředí a venkovského klidu s pohodlným napojením na město.
Díky dálnici D1 jste v Praze za 20 minut.

Přijďte se přesvědčit sami, že RD Pětihosty jsou místem, kde může růst váš nový domov.
Ráda vám projekt osobně ukážu.

Cena
17 500 000 Kč /za nemovitost Spočítat hypotéku
Aktualizováno
14. 12. 2025
Adresa
Pětihosty
ID
141
Stavba
Skeletová
Stav objektu
Novostavba
Druh objektu
Samostatný
Užitná plocha
163 m2
Zastavěná plocha
124 m2
Podlahová plocha
197 m2
Plocha pozemku
512 m2
Plocha zahrady
387 m2
Třída energetické náročnosti
B - Velmi úsporná
Ukazatel energetické náročnosti
67 kWh/m2 za rok
Topení
Ústřední elektrické
Zdroj topení
Tepelné čerpadlo
Garáž
Bezbarierový přístup
Parkování

Máte zájem o tuto nemovitost?

Tímto, v souladu s nařízením Evropského parlamentu a Rady (EU) 2016/679, v platném znění, prohlašuji, že mi je alespoň 16 let a uděluji tak svůj souhlas se zpracováním zadaných údajů (jméno, telefon, e-mail, ip adresa) společnosti B3 Technology, s.r.o., IČ: 07330600, se sídlem Novostavby 126/23, 435 11 Lom (správce dat), za účelem předání dotazu z tohoto formuláře Vámi vybranému inzerentovi a zpětného kontaktování mé osoby. Osobní údaje bude správce zpracovávat manuálně i automaticky přímo prostřednictvím svých zaměstnanců. Informace předané tímto formulářem budou uloženy v databázi správce maximálně po dobu 10 let. Odvolání souhlasu s uložením a zpracováním poskytnutých dat lze e-mailem na info@realitymat.cz. V případě podezření na neoprávněné použití Vámi poskytnutých údajů máte právo předat podnět k šetření Úřadu pro ochranu osobních údajů. Více informací
Chystáte se prodat nemovitost?
Pomůžeme Vám!

Kontakt

Irena  Trojanová

Irena Trojanová

Přihlášení k odběru

Nenechte si ujít nejnovější nabídky prodeje rodinných domů v Pětihostech.

Podobné nabídky