Prodej rodinného domu, Vrdy, U Sokolovny, 210 m2 (ID: 2027554)

U Sokolovny, Vrdy


9 300 000 Kč /za nemovitost
HYPOTÉKA od 41 565 Kč /měs.
Regionální dodavatelé v Vrdech

Popis

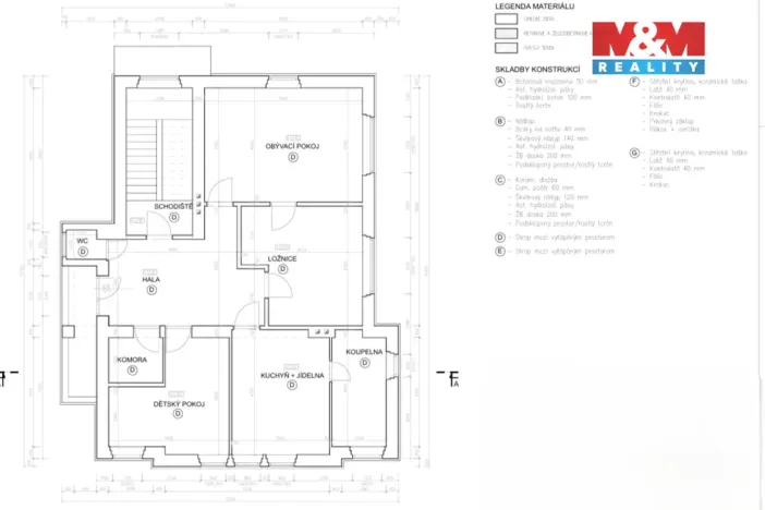
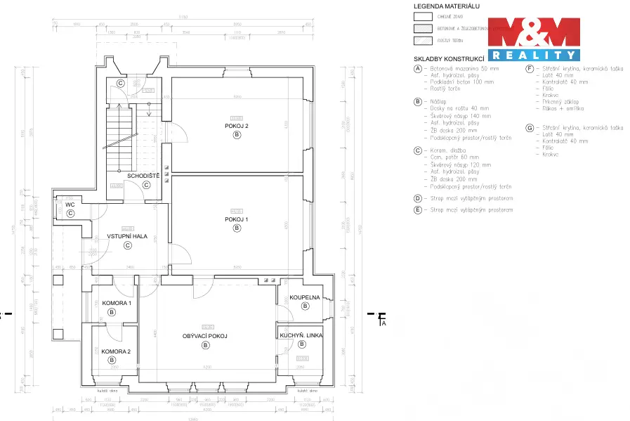
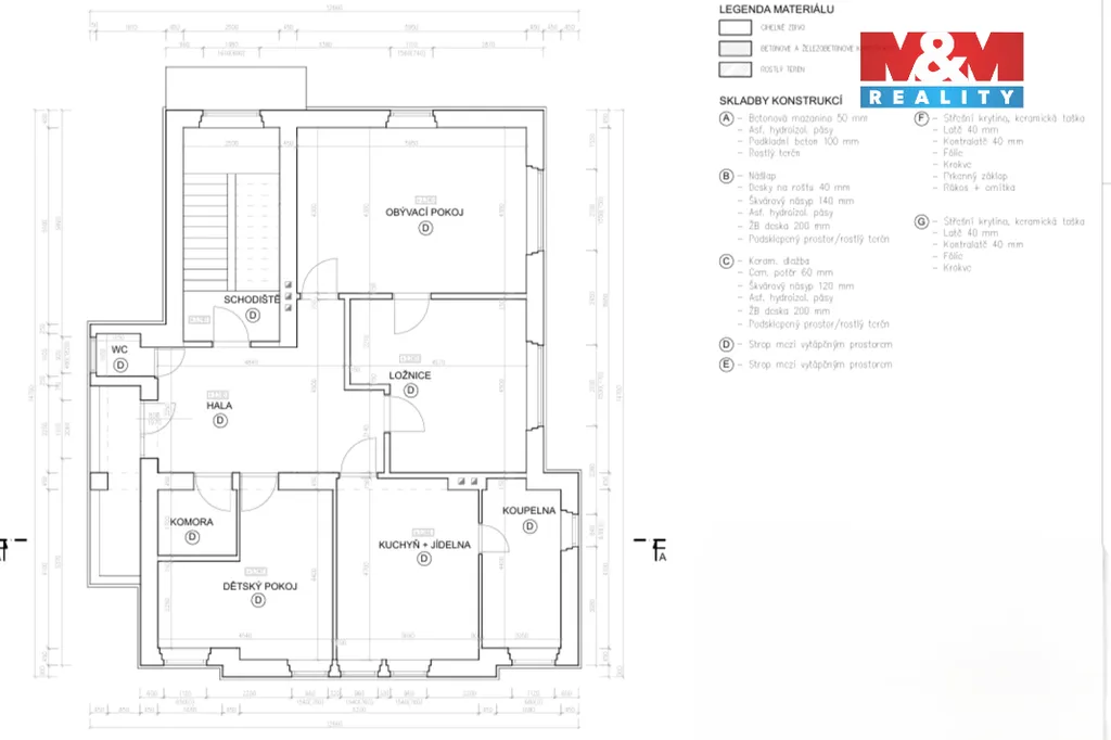
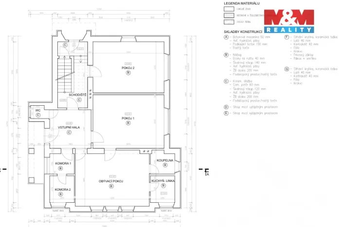
Nabízíme k prodeji prostorný rodinný dům v klidné části obce Vrdy. Dům má tři nadzemní a jedno podzemní podlaží, což nabízí široké možnosti využití – od vícegeneračního bydlení až po kombinaci s podnikáním. Užitná plocha činí 210 m² a plocha pozemku 639 m².
K dispozici máte garáž pro pohodlné parkování, dílnu pro kutilské i pracovní účely, rozlehlý sklep, půdu s možností dalšího využití a balkon pro chvíle klidu. Interiér je částečně zařízen. Dům se solárními panely a v kombinaci s tepelným čerpadlem dosahuje nízké provozní náklady. Veškeré dostupné sítě napojeny, elektřina, veřejný vodovod, kanalizaci a zároveň je využívána studna s domácí vodárnou.
Nemovitost se nachází v klidné části obce Vrdy, v zástavbě rodinných domů s minimálním provozem a příjemnou atmosférou. Lokalita je ideální pro rodinný život v dosahu města, ale s výhodami venkovského klidu a prostoru. Udělejte první krok k novému bydlení právě teď. Pro více informací o nemovitosti a prohlídkách kontaktujte makléře.

Cena
9 300 000 Kč /za nemovitost Spočítat hypotéku
Aktualizováno
12. 1. 2026
Adresa
U Sokolovny, Vrdy
ID
912874
Stavba
Smíšená
Stav objektu
Dobrý
Vybaveno
Částečně
Druh objektu
Samostatný
Lokalita objektu
Klidná část obce
Vlastnictví
Osobní
Užitná plocha
210 m2
Plocha pozemku
639 m2
Balkon

Máte zájem o tuto nemovitost?

Tímto, v souladu s nařízením Evropského parlamentu a Rady (EU) 2016/679, v platném znění, prohlašuji, že mi je alespoň 16 let a uděluji tak svůj souhlas se zpracováním zadaných údajů (jméno, telefon, e-mail, ip adresa) společnosti B3 Technology, s.r.o., IČ: 07330600, se sídlem Novostavby 126/23, 435 11 Lom (správce dat), za účelem předání dotazu z tohoto formuláře Vámi vybranému inzerentovi a zpětného kontaktování mé osoby. Osobní údaje bude správce zpracovávat manuálně i automaticky přímo prostřednictvím svých zaměstnanců. Informace předané tímto formulářem budou uloženy v databázi správce maximálně po dobu 10 let. Odvolání souhlasu s uložením a zpracováním poskytnutých dat lze e-mailem na info@realitymat.cz. V případě podezření na neoprávněné použití Vámi poskytnutých údajů máte právo předat podnět k šetření Úřadu pro ochranu osobních údajů. Více informací
Chystáte se prodat nemovitost?
Pomůžeme Vám!

Kontakt

David Vašků

David Vašků

Přihlášení k odběru

Nenechte si ujít nejnovější nabídky prodeje rodinných domů v Vrdech.

Tipy Realitymatu

Podobné nabídky