Prodej bytu 2+kk, Praha - Vinohrady, V Horní Stromce, 48 m2

V Horní Stromce, Praha, Vinohrady


10 980 000 Kč /za nemovitost
HYPOTÉKA od 49 074 Kč /měs.
Regionální dodavatelé v Praze 3

Stěhovací služby

Výkup a prodej starého nábytku

Popis

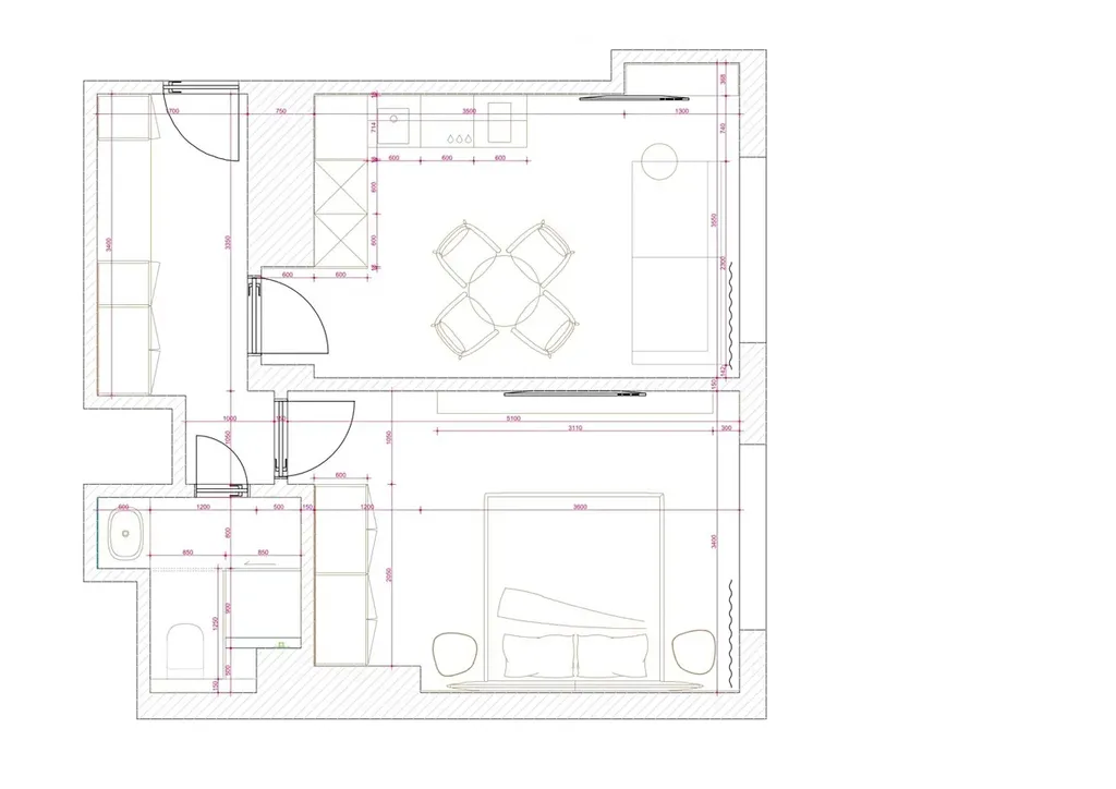
Nabízíme k prodeji moderní a světlý byt 2+kk o celkové výměře 48,8 m, který se nachází ve druhém patře kompletně zrenovované rezidence Horní Stromka na pomezí vyhledávaných pražských čtvrtí Vinohrady a Vršovice. Součástí jednotky je také sklepní kóje. Prakticky řešený byt nabízí komfortní oddělení denní a noční části. Vstupní chodba vede přímo do prostorného obývacího pokoje s kuchyňským koutem a jídelním stolem. Kuchyň je situovaná podél stěny, čímž vytváří dostatek pracovního prostoru a volně navazuje na obývací část. Z obývacího pokoje je přístupná ložnice orientovaná do klidné části bytu. Místo působí útulně, s dostatkem prostoru pro manželskou postel i úložné řešení.

Koupelna je vybavena sprchovým koutem, umyvadlem a toaletou. V bytě nechybí ani další praktické úložné prvky.

Celkově půdorys působí vzdušně, s důrazem na funkčnost a pohodlí, ideální pro jednotlivce či pár.

Lokalita nabízí ideální spojení klidného bydlení a městského komfortu. V bezprostředním okolí se nachází množství oblíbených kaváren, restaurací a obchodů, stejně jako několik parků Havlíčkovy sady, Riegrovy sady či Parukářka. Oceníte také výbornou dopravní dostupnost, stanice metra Jiřího z Poděbrad, tramvajové i autobusové linky jsou vzdálené jen pár minut chůze a cesta do centra trvá několik málo minut.

Byt je vhodný jak pro vlastní bydlení, tak jako výborná investiční příležitost. Pro více informací nebo domluvení osobní prohlídky nás neváhejte kontaktovat.

Byt k nastěhování od 15.2.2026

Cena
10 980 000 Kč /za nemovitost Spočítat hypotéku
Aktualizováno
10. 12. 2025
Adresa
V Horní Stromce, Praha, Vinohrady
ID
215
Stavba
Cihlová
Stav objektu
Před rekonstrukcí
Patro
2. z 4
Vlastnictví
Osobní
Užitná plocha
48 m2
Podlahová plocha
48 m2
Třída energetické náročnosti
D - Méně úsporná
Plyn
Plynovod
Odpad
Veřejná kanalizace
Topení
Ústřední dálkové
Komunikace
Asfaltová
Telekomunikace
Telefon, Internet, Kabelová televize
Doprava
Silnice, MHD, Autobus
Voda
Vodovod
Topné těleso
Radiátory
Výtah
Bezbarierový přístup

Máte zájem o tuto nemovitost?

Tímto, v souladu s nařízením Evropského parlamentu a Rady (EU) 2016/679, v platném znění, prohlašuji, že mi je alespoň 16 let a uděluji tak svůj souhlas se zpracováním zadaných údajů (jméno, telefon, e-mail, ip adresa) společnosti B3 Technology, s.r.o., IČ: 07330600, se sídlem Novostavby 126/23, 435 11 Lom (správce dat), za účelem předání dotazu z tohoto formuláře Vámi vybranému inzerentovi a zpětného kontaktování mé osoby. Osobní údaje bude správce zpracovávat manuálně i automaticky přímo prostřednictvím svých zaměstnanců. Informace předané tímto formulářem budou uloženy v databázi správce maximálně po dobu 10 let. Odvolání souhlasu s uložením a zpracováním poskytnutých dat lze e-mailem na info@realitymat.cz. V případě podezření na neoprávněné použití Vámi poskytnutých údajů máte právo předat podnět k šetření Úřadu pro ochranu osobních údajů. Více informací
Chystáte se prodat nemovitost?
Pomůžeme Vám!

Kontakt

Roman Antošík

Roman Antošík

Přihlášení k odběru

Nenechte si ujít nejnovější nabídky prodeje bytů 2+kk v Praze 3.

Podobné nabídky