Prodej pozemku pro bydlení, Ostrava - Svinov, 2312 m2

Ostrava, Svinov


6 990 000 Kč /za nemovitost
HYPOTÉKA od 31 241 Kč /měs.

(V případě rychlého a seriózního jednání dohoda o ceně., včetně provize, včetně právního servisu)


Regionální dodavatelé v Ostravě

Popis

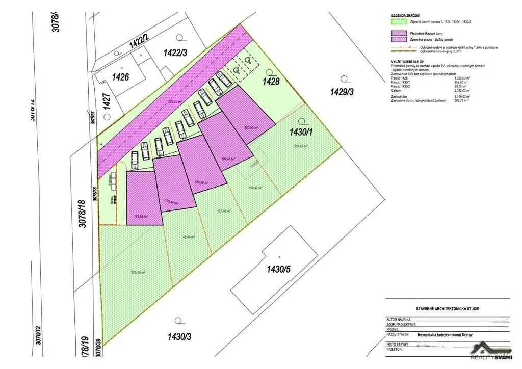
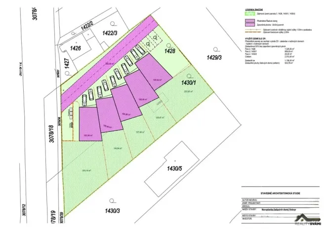
Prodej souboru stavebních pozemků s architektonickou studií – Řadové domy Svinov.

Nabízíme k prodeji soubor stavebních pozemků o celkové výměře 2 312 m² v atraktivní a stabilně se rozvíjející lokalitě Ostrava–Svinov. Součástí nabídky je také kompletní architektonická studie na výstavbu moderních řadových domů, konzultovaná se stavebním úřadem. Projekt je tedy připraven k okamžitému rozpracování nebo využití jako podklad pro vlastní developerský záměr.

Strategická investiční příležitost.

Území je dle územního plánu vedeno jako ZV – plocha pro bydlení v rodinných domech, s povolenou zastavěností až 50 %. Na pozemcích lze zastavět přibližně 1 156 m², přičemž současná studie počítá se zastavěnou plochou 503,76 m².

Nabídka tak dává investorům mimořádný prostor:
- pokračovat v již navrženém projektu řadových rodinných domů,
- případně vytvořit vlastní architektonické řešení,
- nebo rozprodat pozemky jednotlivým zájemcům o samostatnou výstavbu.
- Hotová architektonická studie

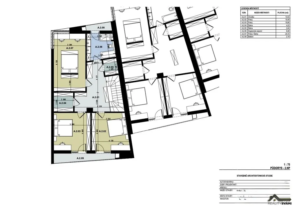
K dispozici je zpracovaná stavebně-architektonická studie, zahrnující:
- půdorysy 1. a 2. nadzemního podlaží,
- dispoziční řešení jednotlivých domů (obytné části, garáže, technické místnosti, šatny, hygienické zázemí),
- pohledy na objekt ze všech světových stran,
- vizualizace projektu.

Součástí návrhu jsou moderní, prostorově efektivní domy s promyšlenou dispozicí. Studie pracuje s garážemi, obývacími prostory s možností instalace krbu, komfortním zázemím i balkony v druhém nadzemním podlaží.

Lokalita

Svinov patří mezi nejvyhledávanější části Ostravy díky:
- vynikající dopravní dostupnosti (MHD, vlak, dálnice),
- občanské vybavenosti v docházkové vzdálenosti,
- klidovému charakteru okolní zástavby,
- vysoké poptávce po rezidenčním bydlení.

Lokalita je ideální pro rodinné domy a dlouhodobě zde roste zájem jak koncových klientů, tak developerů.

Pro koho je nabídka ideální?
- pro developerské společnosti hledající projekt s jasným investičním potenciálem,
- pro stavební firmy s možností okamžité realizace,
- pro investory, kteří chtějí pozemky rozdělit a prodat jednotlivým stavebníkům,
- pro soukromé zájemce, kteří chtějí vybudovat vlastní projekt v žádané lokalitě.

Klíčové parametry
- Celková plocha pozemků: 2 312 m²
- Zastavitelná plocha: 1 156 m²
- Studie: Řadové domy Svinov
- Územní plán: ZV – zástavba rodinných domů
- Projekt ověřen konzultací se stavebním úřadem

Líbí se Vám tento projekt, nebo pozemky? Neváhejte mě kontaktovat pro více informací.

Pomoc s financováním je u nás samozřejmostí.

Cena
6 990 000 Kč /za nemovitost Spočítat hypotéku
Poznámka k ceně
V případě rychlého a seriózního jednání dohoda o ceně., včetně provize, včetně právního servisu
Aktualizováno
9. 12. 2025
Adresa
Ostrava, Svinov
ID
00616
Plocha pozemku
2312 m2
Elektřina
230V, 400V
Plyn
Plynovod
Odpad
Veřejná kanalizace
Komunikace
Asfaltová
Telekomunikace
Kabelové rozvody
Doprava
Vlak, Dálnice, Silnice, MHD, Autobus
Voda
Vodovod

Máte zájem o tuto nemovitost?

Tímto, v souladu s nařízením Evropského parlamentu a Rady (EU) 2016/679, v platném znění, prohlašuji, že mi je alespoň 16 let a uděluji tak svůj souhlas se zpracováním zadaných údajů (jméno, telefon, e-mail, ip adresa) společnosti B3 Technology, s.r.o., IČ: 07330600, se sídlem Novostavby 126/23, 435 11 Lom (správce dat), za účelem předání dotazu z tohoto formuláře Vámi vybranému inzerentovi a zpětného kontaktování mé osoby. Osobní údaje bude správce zpracovávat manuálně i automaticky přímo prostřednictvím svých zaměstnanců. Informace předané tímto formulářem budou uloženy v databázi správce maximálně po dobu 10 let. Odvolání souhlasu s uložením a zpracováním poskytnutých dat lze e-mailem na info@realitymat.cz. V případě podezření na neoprávněné použití Vámi poskytnutých údajů máte právo předat podnět k šetření Úřadu pro ochranu osobních údajů. Více informací
Chystáte se prodat nemovitost?
Pomůžeme Vám!

Kontakt

Jiří Sváček

Jiří Sváček

Přihlášení k odběru

Nenechte si ujít nejnovější nabídky prodeje pozemků pro bydlení v Ostravě.

Podobné nabídky