Prodej pozemku pro bydlení, Moravské Budějovice, 1610 m2

Moravské Budějovice


2 390 000 Kč /za nemovitost
HYPOTÉKA od 10 682 Kč /měs.

(Cena včetně provize RK a právního servisu)


Regionální dodavatelé v Moravských Budějovicích

Popis

Hledáte ideální místo pro nový domov, kde se spojí klid menšího města a klidnější předměstí, kompletní občanská vybavenost a příjemná atmosféra historické lokality? Tak právě tento stavební pozemek v Moravských Budějovicích je přesně pro vás.

Pozemek je připravený k okamžité výstavbě:
• Stavební povolení je již vydáno,
• Projekt rodinného domu je zpracovaný architektem
• Terén i tvar pozemku umožňují komfortní umístění moderního domu, zahrady i parkování.

Lokalita:
Moravské Budějovice jsou město s plnou občanskou vybaveností – školy, zdravotní středisko, obchody i služby budete mít doslova na dosah.
Místní prostředí je jako dělané pro pohodový život: centrum má krásné historické jádro, které je městskou památkovou zónou, a život tu příjemně plyne bez stresu velkoměsta.
Kulturní a historické bohatství
Jen pár minut autem nebo 15 minut chůzi od pozemku najdete dominanty města – Zámek Moravské Budějovice nebo Kostel sv. Jiljí s vyhlídkovou věží, odkud je nádherný výhled na okolí. Tyto prvky dodávají městu charakter a činí ho atraktivní lokalitou nejen k bydlení, ale i k investici.
Příroda a možnosti volného času
Okolí města nabízí spoustu tras pro procházky, cyklistiku i běhání. Ideální místo, pokud chcete žít aktivně a mít přírodu pár kroků od domu.
Skvělá dostupnost
Moravské Budějovice leží v okrese Třebíč, v kraji Vysočina – díky tomu máte výborné spojení do regionálních center, ale zároveň si užíváte klid menšího města.

Technické informace
• Velikost pozemku: 1610 m²
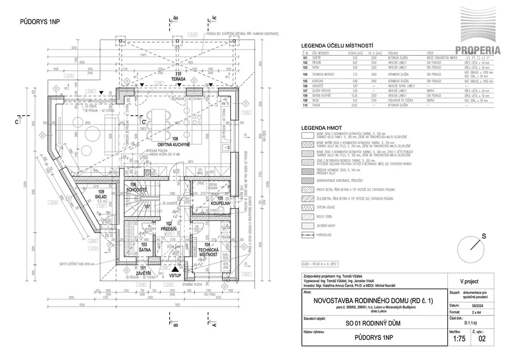
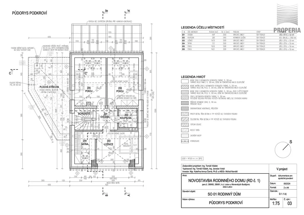
• Dispozice navrženého domu: 4+kk
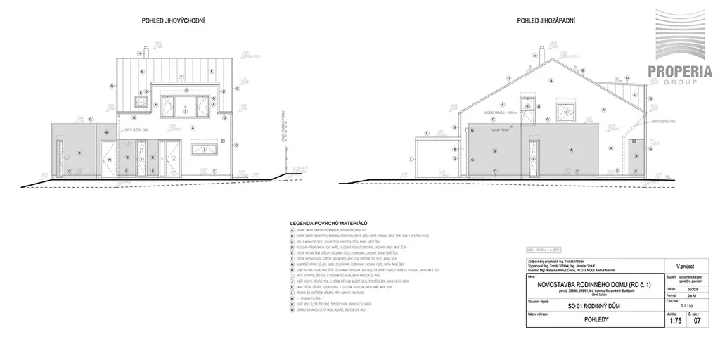
• Zastavěná plocha 120 m² / podlahová plocha: 129,41 m² (1NP = 89,13 m², podkroví = 62,82 m²)
• Technologie a provedení domu: zděný polořadový dům, tepelné čerpadlo vzduch-voda, šikmá sedlová střecha)
• Inženýrské sítě: dům bude napojen na vodovodní řád, kanalizace napojena na splaškovou stoku, elektřina napojena na distribuční soustavu el. energie NN.
• Vytápění domu: teplovodní otopná soustava, zdroj jednotka tepelného čerpadla, podlahové teplovodní vytápění. Sekundární zdroj vytápění bude krbová vložka na tuhá paliva (dřevo)
• Ohřev teplé vody: jednotka tepelného čerpadla vzduch-voda
• Větrání domu: v domě bude instalována větrací jednotka se zpětným ziskem tepla (rekuperační jednotka)
• Orientace pozemku: SZ, přední část domu JV

Pro koho je pozemek ideální?
• Pro rodinu, která chce stavět bez zbytečného čekání.
• Pro investora, který hledá rozvíjející se a stabilní lokalitu.
• Pro každého, kdo chce spojit pohodové bydlení, přírodu, historii a dostupnost služeb.

Zaujala vás nabídka?


Rád vám poskytnu kompletní dokumentaci, projektovou dokumentaci k domu a domluvím osobní prohlídku pozemku.

Cena
2 390 000 Kč /za nemovitost Spočítat hypotéku
Poznámka k ceně
Cena včetně provize RK a právního servisu
Aktualizováno
12. 12. 2025
Adresa
Moravské Budějovice
ID
03723
Plocha pozemku
1610 m2

Máte zájem o tuto nemovitost?

Tímto, v souladu s nařízením Evropského parlamentu a Rady (EU) 2016/679, v platném znění, prohlašuji, že mi je alespoň 16 let a uděluji tak svůj souhlas se zpracováním zadaných údajů (jméno, telefon, e-mail, ip adresa) společnosti B3 Technology, s.r.o., IČ: 07330600, se sídlem Novostavby 126/23, 435 11 Lom (správce dat), za účelem předání dotazu z tohoto formuláře Vámi vybranému inzerentovi a zpětného kontaktování mé osoby. Osobní údaje bude správce zpracovávat manuálně i automaticky přímo prostřednictvím svých zaměstnanců. Informace předané tímto formulářem budou uloženy v databázi správce maximálně po dobu 10 let. Odvolání souhlasu s uložením a zpracováním poskytnutých dat lze e-mailem na info@realitymat.cz. V případě podezření na neoprávněné použití Vámi poskytnutých údajů máte právo předat podnět k šetření Úřadu pro ochranu osobních údajů. Více informací
Chystáte se prodat nemovitost?
Pomůžeme Vám!

Kontakt

Martin Schuppler

Martin Schuppler

Přihlášení k odběru

Nenechte si ujít nejnovější nabídky prodeje pozemků pro bydlení v Moravských Budějovicích.

Podobné nabídky