Pronájem bytu 2+1, Říčany - Radošovice, Sokolovská, 71 m2

Sokolovská, Říčany, Radošovice


23 000 Kč /za měsíc
Získejte výhodnou HYPOTÉKU

(+ poplatky (5.000,- Kč) + kauce 46.000,- Kč + poplatek RK (23.000,- Kč))


Regionální dodavatelé v Říčanech

Popis

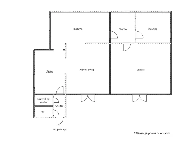
Nabízíme k pronájmu krásný, kompletně zrekonstruovaný byt o dispozici 2+1 (71 m²) s vlastní zahradou a soukromým vstupem – ideální pro ty, kteří hledají klid, soukromí a kvalitní bydlení.

Byt se nachází v rodinném domě, avšak má svůj zcela oddělený vstup i samostatný vjezd na zahradu, takže poskytuje maximální míru soukromí a komfortu. Využívat můžete také vlastní zahradu o velikosti cca 100 m², která je ideální pro posezení, odpočinek či drobné zahradničení.

Interiér bytu prošel kompletní rekonstrukcí před 3 lety. Součástí vybavení je moderní a nadstandardně řešená kuchyňská linka. Vytápění zajišťuje plynový kotel, přičemž byt má podružná měření plynu i elektřiny, díky čemuž si nájemník řídí spotřebu dle vlastních potřeb.

Měsíční poplatky činí 5.000,- Kč a zahrnují vše potřebné: plyn, elektřinu, vodné a stočné, svoz odpadu, internet a TV. Poplatky tedy pokryjí kompletní chod domácnosti bez nutnosti dalších smluv s dodavateli.

Měsíční nájemné činí 23.000,- Kč + poplatky (5.000,- Kč). Kauce je ve výši 46.000,- Kč a poplatek realitní kanceláři je ve výši 23.000,- Kč.

Byt je vhodný pro jednotlivce, pár či klidnou osobu, která ocení soukromí, pořádek a pohodové bydlení. Majitel preferuje slušné a spolehlivé nájemníky s dlouhodobým záměrem.

První prohlídky proběhnou již 6. prosince.

V případě zájmu o rezervaci termínu prohlídky či doplnění informací mě neváhejte kontaktovat.

Průkaz energetické náročnosti budovy bude dodán, a tak momentálně uvádíme energetickou třídu G.

Cena
23 000 Kč /za měsíc
Poznámka k ceně
+ poplatky (5.000,- Kč) + kauce 46.000,- Kč + poplatek RK (23.000,- Kč)
Aktualizováno
8. 12. 2025
Adresa
Sokolovská, Říčany, Radošovice
ID
18131
Stavba
Smíšená
Stav objektu
Velmi dobrý
Patro
1. z 2
Vybaveno
Částečně
Lokalita objektu
Klidná část obce
Vlastnictví
Osobní
Užitná plocha
71 m2
Plocha zahrady
100 m2
Třída energetické náročnosti
G - Mimořádně nehospodárná
Plyn
Plynovod
Odpad
Veřejná kanalizace
Komunikace
Asfaltová
Telekomunikace
Internet
Doprava
Vlak, Dálnice, Silnice, MHD, Autobus
Voda
Místní zdroj vody

Máte zájem o tuto nemovitost?

Tímto, v souladu s nařízením Evropského parlamentu a Rady (EU) 2016/679, v platném znění, prohlašuji, že mi je alespoň 16 let a uděluji tak svůj souhlas se zpracováním zadaných údajů (jméno, telefon, e-mail, ip adresa) společnosti B3 Technology, s.r.o., IČ: 07330600, se sídlem Novostavby 126/23, 435 11 Lom (správce dat), za účelem předání dotazu z tohoto formuláře Vámi vybranému inzerentovi a zpětného kontaktování mé osoby. Osobní údaje bude správce zpracovávat manuálně i automaticky přímo prostřednictvím svých zaměstnanců. Informace předané tímto formulářem budou uloženy v databázi správce maximálně po dobu 10 let. Odvolání souhlasu s uložením a zpracováním poskytnutých dat lze e-mailem na info@realitymat.cz. V případě podezření na neoprávněné použití Vámi poskytnutých údajů máte právo předat podnět k šetření Úřadu pro ochranu osobních údajů. Více informací
Chystáte se prodat nemovitost?
Pomůžeme Vám!

Kontakt

Bc. Helena Pinďáková

Bc. Helena Pinďáková

Přihlášení k odběru

Nenechte si ujít nejnovější nabídky pronájmu bytů 2+1 v Říčanech (okr. Praha-východ).

Podobné nabídky