Prodej rodinného domu, Nečtiny - Březín, 115 m2

Nečtiny, Březín


1 870 000 Kč /za nemovitost
HYPOTÉKA od 8 358 Kč /měs.
Regionální dodavatelé v Nečtinách

Stěhovací služby

Popis

Hledáte klidné a cenově dostupné bydlení? Pak je tohle příležitost pro vás.
Po dokončení rekonstrukce získáte výhody bezstarostného bydlení v bytě a zároveň soukromí a nezávislost vlastního domu.

Ve vesnici Březín u Nečtin je na prodej řadový rodinný dům.
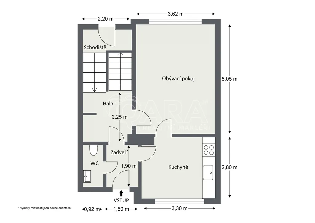
Dům je dispozičně řešený jako 3+1. Na každém patře jsou 2 obytné místnosti, dole je WC s umyvadlem, v patře koupelna s vanou a WC. Součástí domu je balkon a nadstandardně velké a praktické sklepní prostory. Dům má přední i zadní vchod a má vlastní biologickou čističku odpadních vod zprovozněnou před 3 lety. Do domu je zavedený obecní vodovod.

Dům je určený k rekonstrukci. Potřebuje celkovou modernizaci včetně všech sítí a rozvodů. Výhodou je, že víte, do čeho jdete. Dům je ve stavu před rekonstrukcí a v inzerci žádná závada není zakrývána. Všechno, co vidíte v inzerci, odpovídá skutečnosti. Nečekají vás další kostlivci ve skříni.

Přes dvůr najdete zahradu (cca 250 m2), která byla původně pronajata od obecního úřadu. Nájemní smlouvu můžete opět obnovit, nebo si zahradu odkoupit za cenu 100 Kč za m2.

Dům najdete v klidné vesnici Březín, která spadá pod obec Nečtiny (2,5 km). Nečtiny nabízí dobrou občanskou vybavenost - obecní úřad, základní a mateřskou školu, zdravotní středisko, prodejnu potravin a restauraci. Nejbližší města jsou Manětín (9 km) a Plasy (26 km), krajské město Plzeň je vzdáleno 40 km.
Okolí je charakteristické krásnou přírodou, která přitahuje mnoho výletníků a turistů.
Pokud milujete venkov a hledáte klidné a cenově dostupné bydlení, je tohle příležitost pro vás. Zavolejte mi a zajedeme se spolu do Březína podívat.

Cena
1 870 000 Kč /za nemovitost Spočítat hypotéku
Aktualizováno
3. 3. 2026
Adresa
Nečtiny, Březín
ID
18155
Stavba
Smíšená
Stav objektu
Před rekonstrukcí
Vybaveno
Ne
Typ objektu
Patrový
Druh objektu
Řadový
Lokalita objektu
Klidná část obce
Užitná plocha
115 m2
Plocha pozemku
63 m2
Třída energetické náročnosti
G - Mimořádně nehospodárná
Elektřina
230V
Odpad
ČOV pro celý objekt
Voda
Vodovod
Sklep
Převod do OV

Máte zájem o tuto nemovitost?

Tímto, v souladu s nařízením Evropského parlamentu a Rady (EU) 2016/679, v platném znění, prohlašuji, že mi je alespoň 16 let a uděluji tak svůj souhlas se zpracováním zadaných údajů (jméno, telefon, e-mail, ip adresa) společnosti B3 Technology, s.r.o., IČ: 07330600, se sídlem Novostavby 126/23, 435 11 Lom (správce dat), za účelem předání dotazu z tohoto formuláře Vámi vybranému inzerentovi a zpětného kontaktování mé osoby. Osobní údaje bude správce zpracovávat manuálně i automaticky přímo prostřednictvím svých zaměstnanců. Informace předané tímto formulářem budou uloženy v databázi správce maximálně po dobu 10 let. Odvolání souhlasu s uložením a zpracováním poskytnutých dat lze e-mailem na info@realitymat.cz. V případě podezření na neoprávněné použití Vámi poskytnutých údajů máte právo předat podnět k šetření Úřadu pro ochranu osobních údajů. Více informací
Chystáte se prodat nemovitost?
Pomůžeme Vám!

Kontakt

Mgr. Romana Trešlová

Mgr. Romana Trešlová

Přihlášení k odběru

Nenechte si ujít nejnovější nabídky prodeje rodinných domů v Nečtinách.

Tipy Realitymatu

Podobné nabídky