Prodej bytu 3+1, Poděbrady, Dr. Horákové, 86 m2

Dr. Horákové, Poděbrady II


7 957 325 Kč /za nemovitost
HYPOTÉKA od 35 564 Kč /měs.
Regionální dodavatelé v Poděbradech

Popis

S tímhle bytem vám nebude ani trošku vadit, že za okny sněží. Strávit v něm celý den není za trest, ale za odměnu.

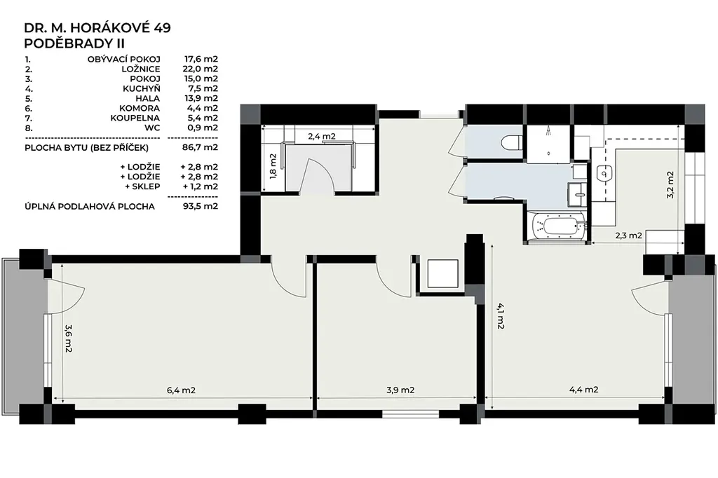
Jsme v Poděbradech, v bytě 3+1 o užitné ploše přes 86 metrů, s příslušenstvím dokonce 94. Po kompletní moderní rekonstrukci, v jedenáctém - předposledním - patře zatepleného panelového domu. V praxi to znamená: spousta světla, výhledy, ticho – a žádné starosti.

Hned za vstupem vás přivítá velkorysá hala. Ne stísněný tunel, ale prostor, kde se dá žít – převléct děti, složit tašky, postavit botník i lavici. Praktická nika na pračku a sušičku drží technické věci mimo obytnou část.

A teď do ložnice, kde rána začínají a večery končí. Na více než 22 metrech se sem vejde velká postel, skříň i pracovní stůl a pořád tu zůstane místo, aby místnost dýchala. Velká okna, vstup na lodžii. Místo, kde si člověk neukopne palec o postel a klidně si zacvičí jógu.

Přesuňme se rovnou do kuchyně. Ne malá, ne obří – tak akorát. Čisté linie, úložné prostory, vestavné spotřebiče AEG, indukce, mikrovlnka, trouba, a k tomu americká lednice s výrobníkem ledu. Velké okno poskytne světlo pro všechna vaše kulinářská kouzla – a když kouzlo selže, snadno vyvětráte.

Obývací pokoj - velký světlý prostor, kam se vejde sedačka, konferenční stolek, televize i pracovní nebo herní koutek. Podlaha s ořechovým dekorem a stěna z luxfer dodávají místnosti útulnost a moderní čistotu. Místnost, která neurazí žádný vkus a snadno se doladí do vašeho stylu.

Součástí obýváku je jídelní kout u oken – světlo, prostor na velký stůl a místo, kde se sedí dobře ráno i večer. A hned vedle vstup na druhou lodžii.

Další pokoj může být čímkoliv – dětský, studentský, pracovna nebo místnost pro virtuální realitu. Tak akorát velký, uprostřed bytu.

Z haly se dostanete do místnosti, která spoustě lidí splní velký sen – šatnu. Skutečnou walk-in šatnu se systémem polic, zásuvek a věšáků, kam schováte sezónní oblečení, kufry i sportovní vybavení, a byt přesto působí uklizeně.

Domácí wellness, nebo, chcete-li, koupelna. Dominantní červenobílé obklady, skleněná stěna z luxfer, skříňka s umyvadlem a hlavně masážní vana s podsvícenou vodou. Stačí napustit, zapálit svíčku a máte večerní spa. Pokud není čas na dlouhý relax, je tu velký sprchový kout a žebříkový radiátor.

Samostatné WC je samozřejmostí.

Byt má dvě lodžie – západní z obýváku, východní z ložnice. Ranní káva nad Poděbrady, večerní sklenka při západu slunce. Z 11. patra je vidět pěkně daleko.

Dům je zateplený, má dva výtahy, dva vchody, zadní bez bariér díky rampě. Udržovaný vstup, kolem domu zeleň, parkování v okolí relativně snadné.

Sportoviště, školy, nákupy, náměstí i vlak máte na dohled. A když chcete vyměnit panel za kolonádu, lázeňský park a řeku, jste tam za pár minut. Večer se vrátíte nahoru, zavřete byt – a klid nad městem je zase váš.

Jestli hledáte hotový, funkční rodinný byt 3+1 bez dalších investic, kde všechno dává smysl a dobře se žije, může to být váš nový domov.

Vůbec na nic nečekejte, vemte telefon a zavolejte.

Cena
7 957 325 Kč /za nemovitost Spočítat hypotéku
Aktualizováno
5. 12. 2025
Adresa
Dr. Horákové, Poděbrady II
ID
0076
Stavba
Panelová
Stav objektu
Po rekonstrukci
Patro
11. z 12
Vybaveno
Částečně
Lokalita objektu
Sídliště
Vlastnictví
Osobní
Užitná plocha
86 m2
Zastavěná plocha
429 m2
Podlahová plocha
94 m2
Třída energetické náročnosti
C - Úsporná
Ukazatel energetické náročnosti
80 kWh/m2 za rok
Elektřina
230V
Plyn
Plynovod
Odpad
Veřejná kanalizace
Komunikace
Asfaltová
Telekomunikace
Internet, Kabelové rozvody
Doprava
Vlak, Dálnice, Silnice, Autobus
Voda
Vodovod
Topné těleso
Radiátory
Zdroj topení
Centrální dálkové
Sklep
Lodžie
Výtah

Máte zájem o tuto nemovitost?

Tímto, v souladu s nařízením Evropského parlamentu a Rady (EU) 2016/679, v platném znění, prohlašuji, že mi je alespoň 16 let a uděluji tak svůj souhlas se zpracováním zadaných údajů (jméno, telefon, e-mail, ip adresa) společnosti B3 Technology, s.r.o., IČ: 07330600, se sídlem Novostavby 126/23, 435 11 Lom (správce dat), za účelem předání dotazu z tohoto formuláře Vámi vybranému inzerentovi a zpětného kontaktování mé osoby. Osobní údaje bude správce zpracovávat manuálně i automaticky přímo prostřednictvím svých zaměstnanců. Informace předané tímto formulářem budou uloženy v databázi správce maximálně po dobu 10 let. Odvolání souhlasu s uložením a zpracováním poskytnutých dat lze e-mailem na info@realitymat.cz. V případě podezření na neoprávněné použití Vámi poskytnutých údajů máte právo předat podnět k šetření Úřadu pro ochranu osobních údajů. Více informací
Chystáte se prodat nemovitost?
Pomůžeme Vám!

Kontakt

Martin Lípa

Martin Lípa

Přihlášení k odběru

Nenechte si ujít nejnovější nabídky prodeje bytů 3+1 v Poděbradech.

Podobné nabídky