Prodej rodinného domu, Mořkov, U kaple, 88 m2

U kaple, Mořkov, okres nový jičín


5 999 000 Kč /za nemovitost
HYPOTÉKA od 26 812 Kč /měs.
Regionální dodavatelé v Mořkově

Popis

*** PROHLÍDKOVÝ DEN v PÁTEK 12.12.2025 ***

Novostavba velmi pěkného a útulného RD s vnitřní dispozicí 3+kk, který se nachází na krásném místě na okraji obce Mořkov, kousíček města Nový Jičín.

Přímo z prostorné terasy domu, případně ze zahrady máte krásný výhled na Beskydské vrcholy Huštýn, Hodorf, Krátká a hlavně na blízký Velký Javorník (6,6 km vzdušnou čarou), kam přes zmíněné vrcholy vede krásná turistická hřebenová cesta E3.

Dům je dřevostavbou systému NovaTOP, je koncipován jako rostoucí, možnost rozšíření v případě potřeby. Okna jsou plastová trojskla, podlahy dřevo + dlažby. Střecha valbová, krytina plechová, stropy zateplené.

Vytápění je ústřední podlahové (systém Rehau) ve všech místnostech, ohřev vody do podlahy i pro ÚV zajišťuje plynový kondenzační kotel zn. Baxi. Dále je možné vytápění tuhými palivy v obýváku se nachází krbová kamna, která bez problémů vytopí za okamžik celý dům. Dům je energeticky úsporný, energ. náročnost budovy třídy "B". Kompletní stavební dokumentace k dispozici, bude předána s domem novému majiteli.

Dům je napojený na inženýrské sítě plynovod, vodovod obecní, elektřina, odpad čistička odpadních vod (ČOV) na pozemku, dešťová kanalizace do retenční nádrže 3 m3.

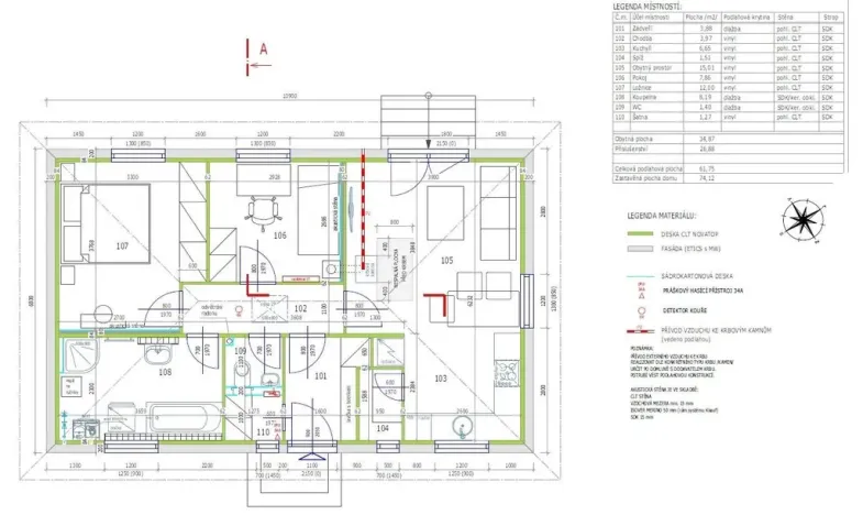
Dispozice domu: zádveří chodba obytný prostor / obývák kuchyně spižírna pokoj 2 (ložnice) pokoj 3 (dětský pokoj) koupelna samostatné WC šatna. Z každého ze tří pokojů je samostatný výstup na dřevěnou terasu.

Pozemek je oplocený, výměra pozemků celkem 901 m2 (tj. 741 m2 zahrada a zpevněné plochy, dále 74m2 zastavěná plocha a přístupová cesta 86 m2).

Mořkov je obec v Moravskoslezském kraji v okrese Nový Jičín, ležící jihovýchodně od Nového Jičína, žije zde přibližně 2 400 obyvatel, nachází se severně od Moravskoslezských Beskyd na úbočí vrchu Huštýna a svažuje se až k říčce Jičínce tekoucí na jejím severním okraji. Prochází jí silnice II/483 a také železniční trať číslo 323. V obci je dobrá občanská vybavenost (pošta, úřad, školka i škola, Sokol, hřiště, hasiči, atp.).

Dopravní dostupnost Nový Jičín vzdálený 7km, Kopřivnice a Štramberk 11 km, Valašské Meziříčí 13km, Frenštát p. R. 13km, Frýdek Místek vzdálený 35km. Do obce je vlakové i autobusové spojení, dostupná dálnice D1 a D48, cyklostezky.


Velmi vřele doporučuji, volné od léta 2026, případně dle dohody. Prohlídky provádíme pouze s vážnými zájemci.

Cena
5 999 000 Kč /za nemovitost Spočítat hypotéku
Aktualizováno
3. 12. 2025
Adresa
U kaple, Mořkov, okres nový jičín
ID
971051
Stavba
Dřevěná
Stav objektu
Novostavba
Typ objektu
Přízemní
Druh objektu
Samostatný
Vlastnictví
Osobní
Užitná plocha
88 m2
Zastavěná plocha
74 m2
Podlahová plocha
88 m2
Plocha pozemku
901 m2
Třída energetické náročnosti
B - Velmi úsporná
Ukazatel energetické náročnosti
158 kWh/m2 za rok
Elektřina
230V
Plyn
Plynovod
Odpad
ČOV pro celý objekt
Topení
Ústřední plynové, Ústřední tuhá paliva
Telekomunikace
Internet
Doprava
Vlak, Silnice, Autobus
Voda
Vodovod
Terasa
Výtah
Parkování

Máte zájem o tuto nemovitost?

Tímto, v souladu s nařízením Evropského parlamentu a Rady (EU) 2016/679, v platném znění, prohlašuji, že mi je alespoň 16 let a uděluji tak svůj souhlas se zpracováním zadaných údajů (jméno, telefon, e-mail, ip adresa) společnosti B3 Technology, s.r.o., IČ: 07330600, se sídlem Novostavby 126/23, 435 11 Lom (správce dat), za účelem předání dotazu z tohoto formuláře Vámi vybranému inzerentovi a zpětného kontaktování mé osoby. Osobní údaje bude správce zpracovávat manuálně i automaticky přímo prostřednictvím svých zaměstnanců. Informace předané tímto formulářem budou uloženy v databázi správce maximálně po dobu 10 let. Odvolání souhlasu s uložením a zpracováním poskytnutých dat lze e-mailem na info@realitymat.cz. V případě podezření na neoprávněné použití Vámi poskytnutých údajů máte právo předat podnět k šetření Úřadu pro ochranu osobních údajů. Více informací
Chystáte se prodat nemovitost?
Pomůžeme Vám!

Kontakt

Bc. Pavel Beregsázi

Bc. Pavel Beregsázi

Přihlášení k odběru

Nenechte si ujít nejnovější nabídky prodeje rodinných domů v Mořkově.

Podobné nabídky