Prodej bytu 2+kk, Praha, Pod turnovskou tratí, 58 m2 (ID: 2019232)

Pod turnovskou tratí, Praha


10 800 000 Kč /za nemovitost
HYPOTÉKA od 48 269 Kč /měs.

(vč. advokátního servisu a úschovy, neplatíte provizi RK.)


Regionální dodavatelé v Praze

Stěhovací služby

Výkup a prodej starého nábytku

Popis

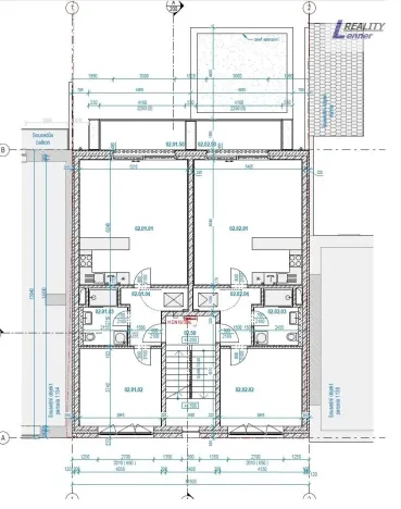
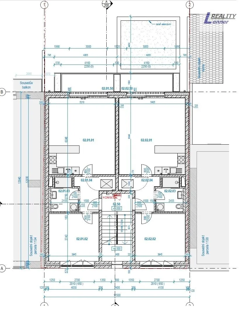
Nabízíme Vám novostavbu moderního bytu o výměře 52 m² s balkonem 6 m² se skleněným zábradlím a garážovým stáním v bytovém domě, v klidné a velmi žádané lokalitě Prahy 9 – Hloubětín, v ulici Pod Turnovskou tratí. Tento byt je součástí nově vybudovaného, komorního projektu o třech bytových jednotkách – BD Vila dům Libuše, který je těsně před dokončením.

Tento moderní byt se nachází v 1. patře novostavby rezidenčního projektu Vila dům Libuše, bytového domu postaveného z monolitického pohledového betonu. Dům je ve finální fázi dokončení a kolaudace (předpoklad 1Q/2026).

V bytovém domě Vila dům Libuše jsou k dispozici sklepní kóje, kočárkárna a kolárna včetně místa pro mytí kol a psů, a také prostorné lobby. Projekt je navržen v jednoduchém a nadčasovém moderním stylu – uliční fasáda je z pohledového betonu, dvorní fasáda je bílá, doplněná o hliníkovou střechu.

Bytová jednotka je vybavena kvalitními hliníkovými okny až ke stropu s izolačním trojsklem. Ze dvora je instalován hliníkový HS portál s elektricky ovládanými žaluziemi. Součástí bytu bude také tzv. indoor monitor – chytrý videotelefon pro ovládání vstupních dveří. Vstup do domu je zabezpečen alarmem a kamerovým systémem. Vytápění je řešeno podlahovým topením prostřednictvím tepelného čerpadla. Každý byt je vybaven chytrou rekuperací s možností chlazení.

Koupelna je obložena velkoformátovou dlažbou 60×120 cm a osazena kvalitní sanitou. Podlahy v bytě tvoří třívrstvá dřevěná podlaha ve vzoru světlého dubu o tloušťce 14 mm.

Lokalita Prahy 9 je dynamicky se rozvíjející oblastí s výborným dopravním spojením a snadnou dostupností MHD. Tramvajová zastávka i metro se nacházejí přibližně 3 minuty od domu. Velkým benefitem projektu je možnost užívání soukromé zahrady s altánem určeným pro grilování a odpočinek.

V blízkém okolí se nachází říčka Rokytka, Park podél Rokytky a oblíbená cyklostezka, které nabízí mnoho možností pro volnočasové aktivity.

PENB: energetická třída B.

V případě zájmu Vám rádi zajistíme výhodné financování hypotečním úvěrem.

Prodávající si vyhrazuje právo vybrat si zájemce a vyhovět případné nejvyšší nabídce.

V případě zájmu se platí rez. poplatek 20%. Neplatíte provizi RK. Prodej přímo od developera.

Cena
10 800 000 Kč /za nemovitost Spočítat hypotéku
Poznámka k ceně
vč. advokátního servisu a úschovy, neplatíte provizi RK.
Aktualizováno
2. 12. 2025
Adresa
Pod turnovskou tratí, Praha
ID
N04070
Stavba
Skeletová
Stav objektu
Novostavba
Patro
2. z 3
Vybaveno
Ne
Vlastnictví
Osobní
Užitná plocha
58 m2
Podlahová plocha
58 m2
Třída energetické náročnosti
C - Úsporná
Ukazatel energetické náročnosti
113 kWh/m2 za rok
Elektřina
230V
Odpad
Veřejná kanalizace
Topení
Ústřední elektrické
Telekomunikace
Telefon, Internet, Ostatní
Doprava
Vlak, MHD, Autobus
Voda
Vodovod
Balkon
Garáž
Sklep
Bezbarierový přístup
Parkování

Máte zájem o tuto nemovitost?

Tímto, v souladu s nařízením Evropského parlamentu a Rady (EU) 2016/679, v platném znění, prohlašuji, že mi je alespoň 16 let a uděluji tak svůj souhlas se zpracováním zadaných údajů (jméno, telefon, e-mail, ip adresa) společnosti B3 Technology, s.r.o., IČ: 07330600, se sídlem Novostavby 126/23, 435 11 Lom (správce dat), za účelem předání dotazu z tohoto formuláře Vámi vybranému inzerentovi a zpětného kontaktování mé osoby. Osobní údaje bude správce zpracovávat manuálně i automaticky přímo prostřednictvím svých zaměstnanců. Informace předané tímto formulářem budou uloženy v databázi správce maximálně po dobu 10 let. Odvolání souhlasu s uložením a zpracováním poskytnutých dat lze e-mailem na info@realitymat.cz. V případě podezření na neoprávněné použití Vámi poskytnutých údajů máte právo předat podnět k šetření Úřadu pro ochranu osobních údajů. Více informací
Chystáte se prodat nemovitost?
Pomůžeme Vám!

Kontakt

Tomáš Lenner

Tomáš Lenner

Přihlášení k odběru

Nenechte si ujít nejnovější nabídky prodeje bytů 2+kk v Praze.

Podobné nabídky