Pronájem bytu 3+kk, Praha - Zbraslav, Paškova, 59 m2

Paškova, Zbraslav - Praha-Zbraslav


22 900 Kč /za měsíc
Získejte výhodnou HYPOTÉKU

(vratná jistota, náklady na bydlení 8.152,-Kč za 4 osoby, poplatek za podnájem)


Regionální dodavatelé v Praze 5

Stěhovací služby

Výkup a prodej starého nábytku

Popis

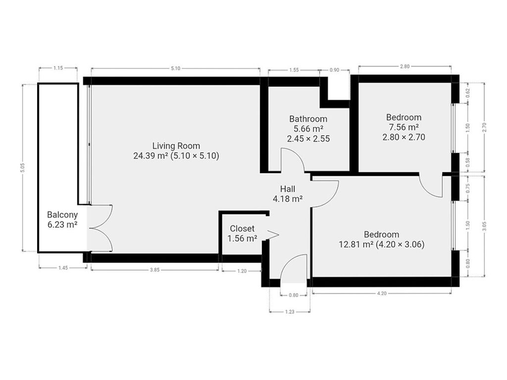
K dlouhodobému podnájmu Vám nabízíme velmi světlý byt o dispozici 3+kk, 59m2 v klidné, přesto dobře dopravně dostupné lokalitě s kompletní občanskou vybaveností v pražské Zbraslavi.

Byt se nachází ve 4. patře panelového domu s výtahem.

Skládá se ze vstupní chodby, na kterou navazuje prostorná komora. Dvou průchozích pokojů, koupelny s velkou rohovou vanou, umyvadlem a toaletou. Obývací pokoj je společný s kuchyňským koutem.

Z obývacího pokoje lze vejít na prostornou lodžii.

Dům se nachází v lokalitě s veškerou občanskou vybaveností - ihned u domu se nachází hypermarket Albert, LIDL je cca 5 minut chůze. Dále pošta, několik základních i mateřských škol a ostatní služby. Autobusová zastávka s přímým spojením na Smíchovské nádraží je od domu cca 2 minuty chůze. Na Smíchově jste autobusem za 15 minut minut.

Byt je k dispozici od 1.3.2026 nebo po domluvě i dřív.

Zálohové platby už obsahují zálohy na elektřinu a pojištění domácnosti.

Cena
22 900 Kč /za měsíc
Poznámka k ceně
vratná jistota, náklady na bydlení 8.152,-Kč za 4 osoby, poplatek za podnájem
Aktualizováno
28. 11. 2025
Adresa
Paškova, Zbraslav - Praha-Zbraslav
ID
N6178
Stavba
Panelová
Stav objektu
Velmi dobrý
Patro
4. z 6
Vybaveno
Částečně
Typ objektu
Patrový
Vlastnictví
Osobní
Užitná plocha
59 m2
Podlahová plocha
59 m2
Třída energetické náročnosti
G - Mimořádně nehospodárná
Elektřina
230V
Topení
Ústřední plynové
Doprava
Vlak, Dálnice, Silnice, MHD, Autobus
Balkon
Sklep
Lodžie
Výtah
Bezbarierový přístup

Máte zájem o tuto nemovitost?

Tímto, v souladu s nařízením Evropského parlamentu a Rady (EU) 2016/679, v platném znění, prohlašuji, že mi je alespoň 16 let a uděluji tak svůj souhlas se zpracováním zadaných údajů (jméno, telefon, e-mail, ip adresa) společnosti B3 Technology, s.r.o., IČ: 07330600, se sídlem Novostavby 126/23, 435 11 Lom (správce dat), za účelem předání dotazu z tohoto formuláře Vámi vybranému inzerentovi a zpětného kontaktování mé osoby. Osobní údaje bude správce zpracovávat manuálně i automaticky přímo prostřednictvím svých zaměstnanců. Informace předané tímto formulářem budou uloženy v databázi správce maximálně po dobu 10 let. Odvolání souhlasu s uložením a zpracováním poskytnutých dat lze e-mailem na info@realitymat.cz. V případě podezření na neoprávněné použití Vámi poskytnutých údajů máte právo předat podnět k šetření Úřadu pro ochranu osobních údajů. Více informací
Chystáte se prodat nemovitost?
Pomůžeme Vám!

Kontakt

Miloslava Kačerová

Miloslava Kačerová

Přihlášení k odběru

Nenechte si ujít nejnovější nabídky pronájmu bytů 3+kk v Praze 5.

Podobné nabídky