Soccer reality

Prodej bytu 2+kk, Říčany, Rooseveltova, 39 m2 (ID: 2016035)

Rooseveltova, Říčany


3 490 000 Kč /za nemovitost
HYPOTÉKA od 15 598 Kč /měs.
Regionální dodavatelé v Říčanech

Popis

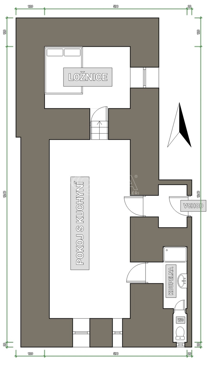
V centru Říčan v klidné ulici hned vedle náměstí nabízíme přízemní byt. Ideální poloha pro rychlý přístup do centra. Prostorný obývací pokoj s kuchyní a samostatnou ložnicí, který můžete mít včetně zařízení.
Vytápění je řešeno klimatizací, nebo el. přímotopy. Ohřev vody elektrickým bojlerem.
V bytě je potřeba provést určité stavební úpravy v koupelně a elektroinstalaci.
Neváhejte zavolat pro více podrobností.

Cena
3 490 000 Kč /za nemovitost Spočítat hypotéku
Aktualizováno
27. 11. 2025
Adresa
Rooseveltova, Říčany
ID
18097
Stavba
Smíšená
Stav objektu
Velmi dobrý
Patro
1. z 4
Vybaveno
Ano
Lokalita objektu
Centrum obce
Vlastnictví
Osobní
Užitná plocha
39 m2
Zastavěná plocha
154 m2
Podlahová plocha
39 m2
Třída energetické náročnosti
G - Mimořádně nehospodárná
Elektřina
230V
Plyn
Plynovod
Odpad
Veřejná kanalizace
Komunikace
Asfaltová
Doprava
Vlak, Dálnice, Silnice, Autobus
Voda
Vodovod
Bezbarierový přístup

Máte zájem o tuto nemovitost?

Tímto, v souladu s nařízením Evropského parlamentu a Rady (EU) 2016/679, v platném znění, prohlašuji, že mi je alespoň 16 let a uděluji tak svůj souhlas se zpracováním zadaných údajů (jméno, telefon, e-mail, ip adresa) společnosti B3 Technology, s.r.o., IČ: 07330600, se sídlem Novostavby 126/23, 435 11 Lom (správce dat), za účelem předání dotazu z tohoto formuláře Vámi vybranému inzerentovi a zpětného kontaktování mé osoby. Osobní údaje bude správce zpracovávat manuálně i automaticky přímo prostřednictvím svých zaměstnanců. Informace předané tímto formulářem budou uloženy v databázi správce maximálně po dobu 10 let. Odvolání souhlasu s uložením a zpracováním poskytnutých dat lze e-mailem na info@realitymat.cz. V případě podezření na neoprávněné použití Vámi poskytnutých údajů máte právo předat podnět k šetření Úřadu pro ochranu osobních údajů. Více informací
Chystáte se prodat nemovitost?
Pomůžeme Vám!

Kontakt

Rostislav Čermák

Rostislav Čermák

Přihlášení k odběru

Nenechte si ujít nejnovější nabídky prodeje bytů 2+kk v Říčanech (okr. Praha-východ).

Tipy Realitymatu

Podobné nabídky