Prodej rodinného domu, Praha - Michle, Na lánech, 80 m2 (ID: 2015422)

Na lánech, Praha, Michle


15 499 000 Kč /za nemovitost
HYPOTÉKA od 69 271 Kč /měs.

(cena včetně provoze a právního servisu.)


Regionální dodavatelé v Praze 4

Stěhovací služby

Výkup a prodej starého nábytku

Popis

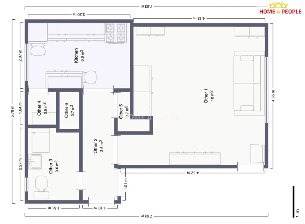
Nabízíme k prodeji rodinný dům v klidné a žádané lokalitě Praha 4 – Michle, v ulici Na Lánech. Dům stojí na pozemku o velikosti 478 m² a nabízí dvě samostatné bytové jednotky, ideální jak pro vícegenerační bydlení, tak pro spojení bydlení s investicí.

Celková obytná plocha činí přibližně 80 m². Dům je napojen na kanalizaci a vytápění zajišťuje nový plynový kotel. Komín je nově vyvložkovaný a má platnou revizi. Střecha prošla rekonstrukcí přibližně před 15 lety, okna jsou původní dřevěná. Součástí domu je suchý sklep o velikosti 40 m², který nabízí dostatek úložného prostoru a je zde umístěn plynový kotel.

Vrchní bytová jednotka prošla kompletní rekonstrukcí před půl rokem – nové rozvody, koupelna, kuchyně i podlahy. V rámci rekonstrukce byly v patře vybudovány kompletně nové sádrokartonové stropy i zdi a nové obložení schodů do patra. Instalovány byly také nové radiátory.

Spodní byt má rekonstruovanou koupelnu a nové podlahy v obývacím pokoji a chodbě (cca 3 roky zpět). Elektřina je v mědi.

Na pozemku i samotné stavbě je možné provést stavební úpravy a dům rozšířit o další bytovou jednotku a tři menší apartmány. Tato varianta nabízí zajímavý investiční potenciál – možnost rozšíření obytné plochy a zvýšení výnosu z pronájmu.

Na zahradě se nachází vybetonovaný vestavěný gril, ideální pro letní posezení a odpočinek.

Michle je velmi oblíbená část Prahy díky výborné dopravní dostupnosti a kompletní občanské vybavenosti. Dům se nachází pouhých 5 minut chůze od luxusního centra Brumlovka, kde najdete restaurace, kavárny, obchody i sportovní zařízení. Autobusová zastávka je vzdálena přibližně 2 minuty chůze. V okolí jsou mateřské i základní školy, parky Jezerka a Tyršův vrch a množství zeleně pro volnočasové aktivity.

Tento dům představuje skvělou příležitost pro ty, kteří hledají klidné bydlení v Praze s možností dalšího rozšíření či investičního využití.
Pro více informací či sjednání prohlídky nás neváhejte kontaktovat. Ev. číslo: 31982.

Cena
15 499 000 Kč /za nemovitost Spočítat hypotéku
Poznámka k ceně
cena včetně provoze a právního servisu.
Aktualizováno
29. 1. 2026
Adresa
Na lánech, Praha, Michle
ID
31982
Stavba
Smíšená
Stav objektu
Velmi dobrý
Druh objektu
Řadový
Lokalita objektu
Centrum obce
Užitná plocha
80 m2
Zastavěná plocha
80 m2
Plocha pozemku
478 m2
Třída energetické náročnosti
G - Mimořádně nehospodárná
Elektřina
230V
Plyn
Plynovod
Odpad
Veřejná kanalizace
Topení
Ústřední plynové
Telekomunikace
Telefon, Internet, Kabelová televize
Voda
Vodovod
Garáž
Sklep
Výtah
Bazén

Máte zájem o tuto nemovitost?

Tímto, v souladu s nařízením Evropského parlamentu a Rady (EU) 2016/679, v platném znění, prohlašuji, že mi je alespoň 16 let a uděluji tak svůj souhlas se zpracováním zadaných údajů (jméno, telefon, e-mail, ip adresa) společnosti B3 Technology, s.r.o., IČ: 07330600, se sídlem Novostavby 126/23, 435 11 Lom (správce dat), za účelem předání dotazu z tohoto formuláře Vámi vybranému inzerentovi a zpětného kontaktování mé osoby. Osobní údaje bude správce zpracovávat manuálně i automaticky přímo prostřednictvím svých zaměstnanců. Informace předané tímto formulářem budou uloženy v databázi správce maximálně po dobu 10 let. Odvolání souhlasu s uložením a zpracováním poskytnutých dat lze e-mailem na info@realitymat.cz. V případě podezření na neoprávněné použití Vámi poskytnutých údajů máte právo předat podnět k šetření Úřadu pro ochranu osobních údajů. Více informací
Chystáte se prodat nemovitost?
Pomůžeme Vám!

Kontakt

František Zbahna

František Zbahna

Přihlášení k odběru

Nenechte si ujít nejnovější nabídky prodeje rodinných domů v Praze 4.

Tipy Realitymatu

Podobné nabídky