Pronájem bytu 3+kk, Praha - Krč, Kukučínova, 67 m2

Kukučínova, Krč - Praha 4


24 400 Kč /za měsíc
Získejte výhodnou HYPOTÉKU

(vratná jistota, zálohové platby 7.500,-Kč poplatek za podnájem)


Regionální dodavatelé v Praze 4

Stěhovací služby

Výkup a prodej starého nábytku

Popis

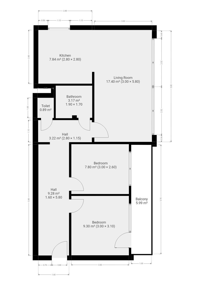
K dlouhodobému podnájmu Vám nabízíme krásný, světlý byt o dispozici 3+kk s podlahovou plochou 67m2.

Byt se nachází v 5.patře panelového domu s výtahem, ve velmi klidné, přesto dobře dopravně dostupné lokalitě pražské Krče.

Skládá se z velké, centrální vstupní chodby, zařízené velkou vestavnou šatní skříní, která Vám poskytne nadstandartní množství úložných prostor. Dále je zde velmi světlý obývací pokoj s krásným výhledem do přilehlé zahrady a nedaleký les, který navazuje na kuchyňský kout. Ten je zařízen sklokeramickou varnou deskou, digestoří, mikrovlnnou troubou, troubou a pračkou.

Toaleta je umístěna samostatně. Koupelna je zařízena vanou a koupelnovou skříňkou.

Z ložnice lze vejít na velmi prostornou, zcela novou lodžii s orientací do zahrad.

Nachází se v lokalitě s kompletní občanskou vybaveností - pár kroků od od domu je supermarket Albert, několik základních i mateřských škol, dětská hřiště a autobusová zastávka "Zálesí". Pro sportovní a volnočasové aktivity můžete využít blízký "Kunratický a Michelský les".

Nedaleko je také Fakultní Thomayerova nemocnice a do lokality bude přivedena nová linka metra D. Stanice metra C "Kačerov" je od domu 1 zastávku autobusem. Zde se také nachází stejnojmenná vlaková stanice.

Zálohové platby, které jsou nyní odhadované pro 4 osoby už obsahují zálohy na elektřinu a pojištění domácnosti.

Byt je k dispozici ihned.

Cena
24 400 Kč /za měsíc
Poznámka k ceně
vratná jistota, zálohové platby 7.500,-Kč poplatek za podnájem
Aktualizováno
27. 11. 2025
Adresa
Kukučínova, Krč - Praha 4
ID
N6975
Stavba
Panelová
Stav objektu
Velmi dobrý
Patro
5. z 12
Vybaveno
Částečně
Typ objektu
Patrový
Lokalita objektu
Sídliště
Vlastnictví
Osobní
Užitná plocha
67 m2
Podlahová plocha
67 m2
Třída energetické náročnosti
C - Úsporná
Elektřina
230V
Topení
Ústřední dálkové
Doprava
Vlak, Dálnice, Silnice, MHD, Autobus
Balkon
Výtah
Bezbarierový přístup

Máte zájem o tuto nemovitost?

Tímto, v souladu s nařízením Evropského parlamentu a Rady (EU) 2016/679, v platném znění, prohlašuji, že mi je alespoň 16 let a uděluji tak svůj souhlas se zpracováním zadaných údajů (jméno, telefon, e-mail, ip adresa) společnosti B3 Technology, s.r.o., IČ: 07330600, se sídlem Novostavby 126/23, 435 11 Lom (správce dat), za účelem předání dotazu z tohoto formuláře Vámi vybranému inzerentovi a zpětného kontaktování mé osoby. Osobní údaje bude správce zpracovávat manuálně i automaticky přímo prostřednictvím svých zaměstnanců. Informace předané tímto formulářem budou uloženy v databázi správce maximálně po dobu 10 let. Odvolání souhlasu s uložením a zpracováním poskytnutých dat lze e-mailem na info@realitymat.cz. V případě podezření na neoprávněné použití Vámi poskytnutých údajů máte právo předat podnět k šetření Úřadu pro ochranu osobních údajů. Více informací
Chystáte se prodat nemovitost?
Pomůžeme Vám!

Kontakt

Miloslava Kačerová

Miloslava Kačerová

Přihlášení k odběru

Nenechte si ujít nejnovější nabídky pronájmu bytů 3+kk v Praze 4.

Podobné nabídky