Prodej bytu 2+kk, Třešť, Nádražní, 51 m2

Nádražní, Třešť


3 690 000 Kč /za nemovitost
HYPOTÉKA od 16 492 Kč /měs.
Regionální dodavatelé v Třešti

Popis

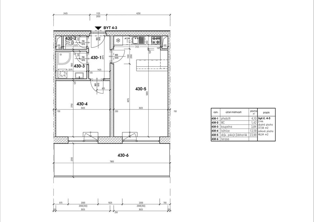
Prodej nadstandardního bytu 2+kk s terasou 14m² v Třešti u Jihlavy. Přímo od developera bez provize RK.

Hledáte moderní bydlení s pocitem soukromí a komfortem rodinného domu?
Máme pro vás jedinečnou příležitost: nový byt 2+kk v nejvyšším podlaží s pěknou terasou, odkud si vychutnáte slunce i klidné výhledy do zeleně.
V nabídce také poslední byty 3+kk a 4+kk s terasami.

Byt 2+kk disponuje podlahovou plochou 50,6m² a terasou 14m².
Terasa je prostor pro relax, grilování, rodinné oslavy a z části zastupuje zahradu u domu ale bez práce fin. nákladů na údržbu rodinného domu. Ušetřený čas a peníze můžete strávit s rodinou na výletech a dalších volnočasových aktivitách.

Vzhledem k tomu, že byty ještě jsou ve výstavbě, může si budoucí vlastník vybrat dekory podlah, dveří, obkladů, dlažby a zařizovacích předmětů tak, aby si byt přizpůsobil svému vkusu a potřebám.

Dokončení bytů plánujeme na přelom roku 25 a 26. K nastěhování budou po kolaudaci 1.4.2026.

Parkovat je možné zdarma před domem nebo lze koupit parkovací stání ve vnitrobloku za 190tis.Kč či garáž za 800tis.Kč

Třešť je město, které kombinuje pohodlí většího města s klidem menší obce.
Autem se dostanete do Jihlavy pohodovou jízdou za 20–25 min, do Telče za 15min.
V Třešti je kompletní občanská vybavenost – škola, školka, poliklinika, obchody, restaurace, kavárny, kino, knihovna...


Proč právě tento byt?

✔ terasa 14m² s výhledem do okolní zeleně
✔ možnost přizpůsobení interiéru na míru
✔ dostupná cena
✔ klidná lokalita s perfektní dostupností

Domluvte si nezávaznou prohlídku a přijďte se podívat, jak může vypadat váš nový domov v Třešti.

Cena
3 690 000 Kč /za nemovitost Spočítat hypotéku
Aktualizováno
21. 11. 2025
Adresa
Nádražní, Třešť
Stavba
Cihlová
Stav objektu
Novostavba
Patro
4. z 4
Vlastnictví
Osobní
Užitná plocha
51 m2
Třída energetické náročnosti
E - Nehospodárná
Elektřina
230V
Odpad
Veřejná kanalizace
Komunikace
Dlážděná
Telekomunikace
Internet
Doprava
Vlak, Autobus
Voda
Vodovod
Topné těleso
Infrapanel
Zdroj topení
Infrapanel
Zdroj teplé vody
Bojler - elektro
Terasa
Výtah

Máte zájem o tuto nemovitost?

Tímto, v souladu s nařízením Evropského parlamentu a Rady (EU) 2016/679, v platném znění, prohlašuji, že mi je alespoň 16 let a uděluji tak svůj souhlas se zpracováním zadaných údajů (jméno, telefon, e-mail, ip adresa) společnosti B3 Technology, s.r.o., IČ: 07330600, se sídlem Novostavby 126/23, 435 11 Lom (správce dat), za účelem předání dotazu z tohoto formuláře Vámi vybranému inzerentovi a zpětného kontaktování mé osoby. Osobní údaje bude správce zpracovávat manuálně i automaticky přímo prostřednictvím svých zaměstnanců. Informace předané tímto formulářem budou uloženy v databázi správce maximálně po dobu 10 let. Odvolání souhlasu s uložením a zpracováním poskytnutých dat lze e-mailem na info@realitymat.cz. V případě podezření na neoprávněné použití Vámi poskytnutých údajů máte právo předat podnět k šetření Úřadu pro ochranu osobních údajů. Více informací
Chystáte se prodat nemovitost?
Pomůžeme Vám!

Kontakt

Pavla Semrádová

Pavla Semrádová

Přihlášení k odběru

Nenechte si ujít nejnovější nabídky prodeje bytů 2+kk v Třešti.

Podobné nabídky